EasyManua.ls Logo

2LS Tools Vega - Page 176

2LS Tools Vega
Print Icon
To Next Page IconTo Next Page
To Next Page IconTo Next Page
To Previous Page IconTo Previous Page
To Previous Page IconTo Previous Page
Loading...
176 | Slovensky 2 609 140 906 16.2.12
S výnimkou nastavenia Permanentný laserový lúč
zostávajú pri vypnutí všetky základné nastavenia
zachované.
Permanentný laserový lúč
f Nesmerujte laserový lúč na osoby ani na
zvieratá, ani sa sami nepozerajte do lasero-
vého lúča, dokonca ani z vačšej vzdialenosti.
Pri tomto nastavení zostáva laserovú lúč zapnutý aj
medzi jednotlivými meraniami a na uskutočnenie
merania je potrebné iba jednorazové krátke
stlačenie tlačidla Meranie 2.
Meracie funkcie
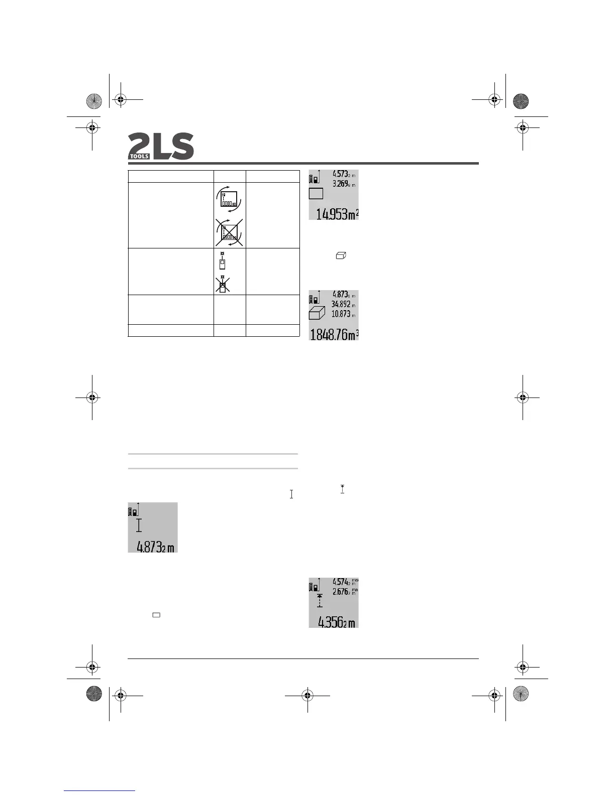
Jednoduché meranie dĺžky
Na meranie dĺžky stláčajte tlačidlo 12 dovtedy, kým
sa na displeji objaví indikácia pre meranie dĺžky .
Ak chcete zapnú laser a vykona
meranie, stlačte každý raz
jedenkrát krátko tlačidlo Meranie
2.
Nameraná hodnota sa zobrazí v
riadku pre výsledok c.
V prípade viacnásobného merania dĺžky za sebou
sa výsledky posledných meraní zobrazia v riadkoch
pre namerané hodnoty a.
Meranie plochy
Na meranie plochy stláčajte tlačidlo 12 dovtedy,
kým sa na displeji objaví indikácia pre meranie
plochy .
Potom postupne premerajte za sebou dĺžku a šírku
ako pri meraní vzdialenosti. Laserový lúč zostáva
medzi oboma meraniami zapnutý.
Po skončení druhého merania sa
plocha automaticky prepočíta a
zobrazí sa na displeji v riadku pre
výsledok c. Jednotlivé namerané
hodnoty sú zobrazené v riadkoch
pre namerané hodnoty a.
Meranie objemu
Na meranie objemu stláčajte tlačidlo 12 dovtedy,
kým sa na displeji objaví indikácia pre meranie
objemu .
Potom postupne premerajte za sebou dĺžku, šírku
a výšku ako pri meraní vzdialenosti. Laserový lúč
zostáva medzi týmito troma meraniami zapnutý.
Po skončení tretieho merania sa
objem automaticky prepočíta a
zobrazí sa na displeji v riadku pre
výsledok c. Jednotlivé namerané
hodnoty sú zobrazené v riadkoch
pre namerané hodnoty a.
Hodnoty vyššie ako 999999 m
3
sa nadajú zobrazi,
v takom prípade sa na displeji zobrazí indikácia
ERROR. Rozdete objem, ktorý potrebujete
odmera, na jednotlivé merania, ktorých hodnoty
vypočítate osobitne a potom ich zhrniete
(spočítate) dohromady.
Trvalé meranie / Meranie minima/maxima
(pozri obrázok B)
Pri trvalom meraní sa môže merací prístroj relatívne
pohybova k cieu, pričom nameraná hodnota sa
aktualizuje každých 0,5 sek. Môžete sa napríklad
vzaova od nejakej steny až do požadovanej
vzdialenosti, na prístroji sa dá v každom okamihu
odčíta aktuálna vzdialenos.
Na zapnutie trvalého merania stláčajte tlačidlo
Zmena funkcie 4 dovtedy, kým sa na displeji obja
indikácia pre trvalé meranie. Na spustenie
trvalého merania stlačte tlačidlo Meranie 2.
Meranie minimálnej hodnoty slúži na meranie
najkratšej vzdialenosti od nejakého pevného bodu.
Pomáha napríklad pri zameriavaní zvislíc alebo
vodorovných čiar.
Meranie maximálnej hodnoty slúži na meranie
najväčšej vzdialenosti od nejakého pevného
vzažného bodu. Pomáha napríklad pri zameriavaní
diagonál.
V riadku pre výsledok c sa
zobrazuje aktuálna namerané
hodnota. V riadkoch pre namerané
hodnoty a sa zobrazuje maximálna
nameraná hodnota (max) sa
zobrazuje minimálna nameraná
hodnota (min). Táto hodnota sa
prepíše vždy vtedy, ke bude aktuálna nameraná
Rotácia displeja
Zap
Vyp
Permanentný lasero
lúč
Zap
Vyp
Jednotka vzdialenosti
(poda verzie pre
konkrétnu krajinu)
m, ft, inch, ...
Jednotka uhla °, %, mm/m
Základné nastavenia
OBJ_BUCH-1618-001.book Page 176 Thursday, February 16, 2012 2:01 PM