EasyManua.ls Logo

ABB ACQ580-34 - Installing the Air Baffles and Removing the Cardboard Covers

ABB ACQ580-34
244 pages
To Next Page IconTo Next Page
To Next Page IconTo Next Page
To Previous Page IconTo Previous Page
To Previous Page IconTo Previous Page
Loading...
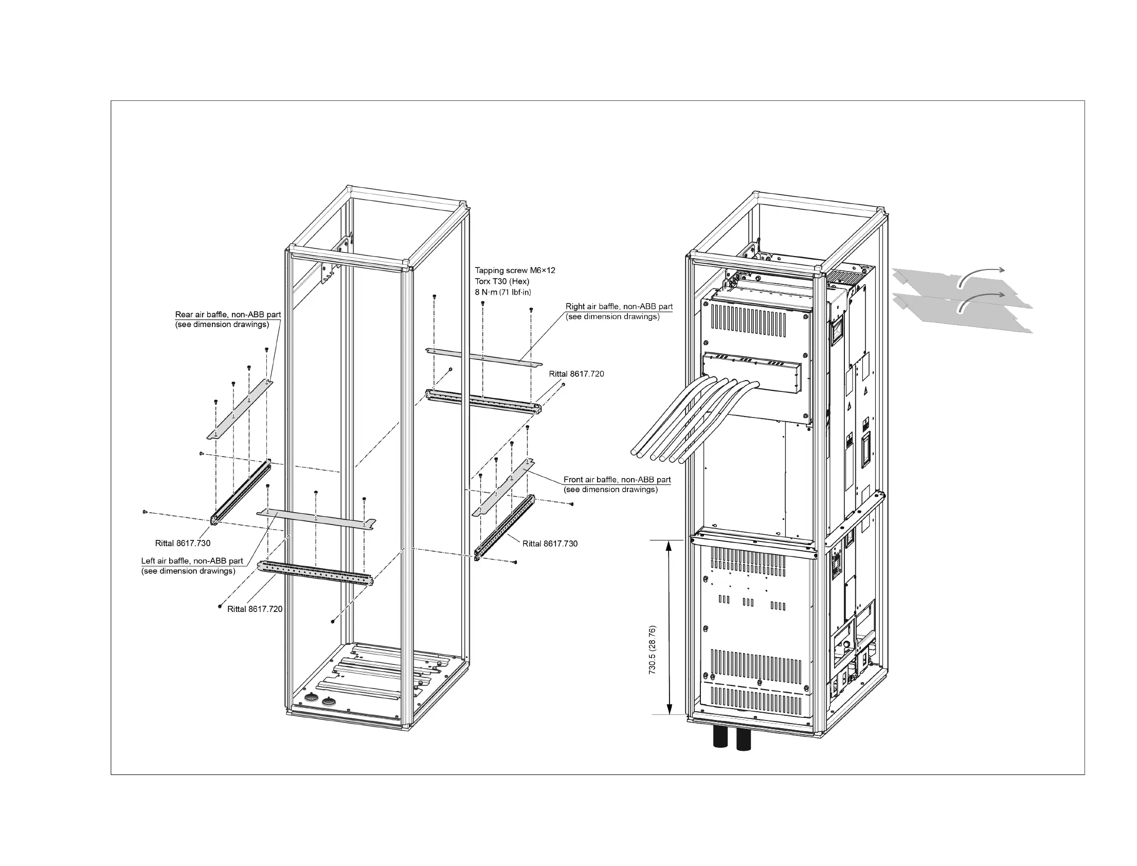
Installing the air baffles and removing the cardboard covers
See instructions in section Installing the air baffles (page 137)
Step-by-step drawings for an installation example of standard drive configuration in Rittal VX25 800 mm wide enclosure 241

Table of Contents

Other manuals for ABB ACQ580-34

Related product manuals