EasyManua.ls Logo

ABB ACS800-01-0040-3 - Frame Size R4 (UL Type 12, IP55)

ABB ACS800-01-0040-3
174 pages
To Next Page IconTo Next Page
To Next Page IconTo Next Page
To Previous Page IconTo Previous Page
To Previous Page IconTo Previous Page
Loading...
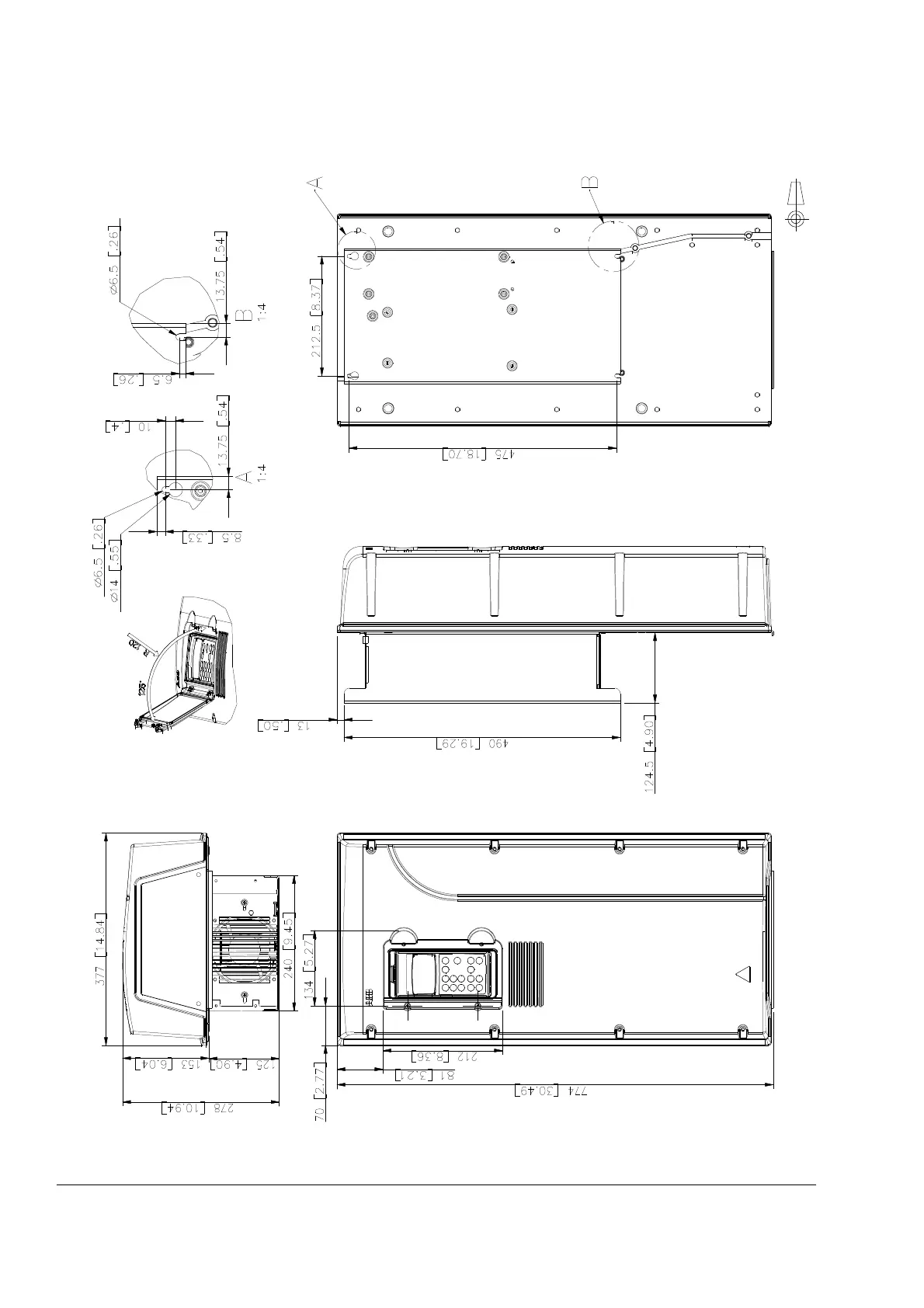
Dimensional drawings
150
Frame size R4 (UL type 12, IP55)
64788086-A

Table of Contents

Related product manuals