EasyManua.ls Logo

ABB CT-MVS - Page 4

ABB CT-MVS
25 pages
Go to English
To Next Page IconTo Next Page
To Next Page IconTo Next Page
To Previous Page IconTo Previous Page
To Previous Page IconTo Previous Page
Loading...
L(+)
N(-)
A1 Y1
Z2
X1
A2
2CDC 252 101 F0b06
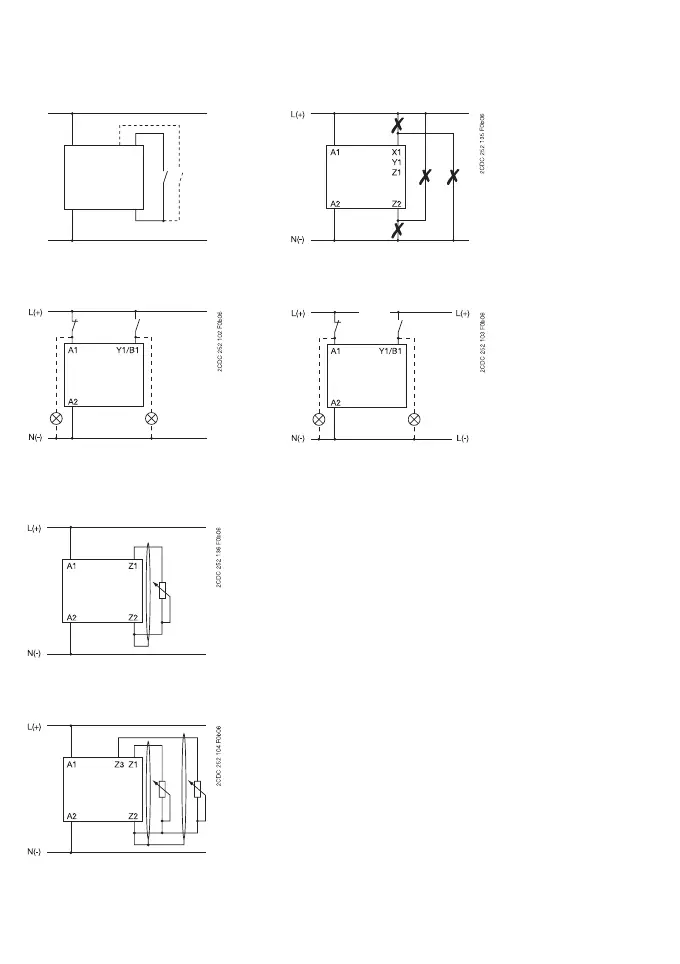
II Electrical connection
Remote potentiometer on CT-MBS / CT-MFS / CT-MVS.21
CT-APS / CT-MVS / CT-MXS
CT-AHS / CT-MBS / CT-MFS
Remote potentiometers on CT-MXS
Page 4/25

Related product manuals