EasyManua.ls Logo

Acorto 2000s - Page 199

Acorto 2000s
237 pages
Print Icon
To Next Page IconTo Next Page
To Next Page IconTo Next Page
To Previous Page IconTo Previous Page
To Previous Page IconTo Previous Page
Loading...
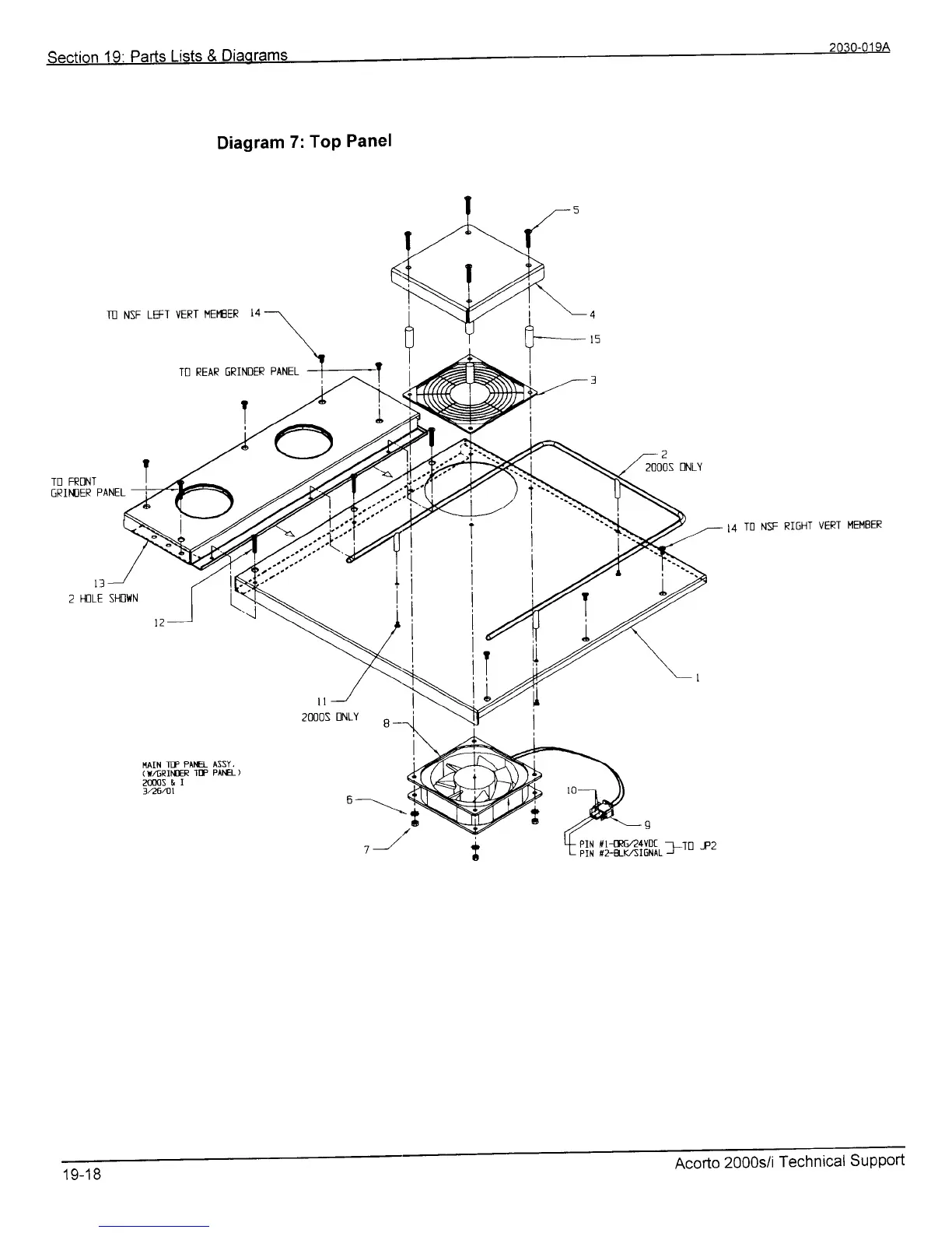
TT NSF LEFT
VERT
HEI,€ER
TO REAR GRINDER
PANEL
Diagram
7:
ToP
Panel
ll
4
t5
3
T! FRONT
GRII'trER
PANEI,
IJ
2
HOLE
SIII]XN
I
-2
2[]OOS
ONLY
PIN
fl{RG,/24VDt
--L,rn
P2
PIN ilH-K/SIGNALJ
'"
''
.
14 TO NS'F
RI6HT
VERT
MEI'IBER
!
2OOOS
INLY
I{ATN
TTP
PATEL
ASSY.
(|ARII.TER]IP
PAiA)
2ms&I
)/2fml
6-----:_
\
\rlr
d
,J,
19-18
Acorto
2000s/i
Technical
SuPPort