EasyManua.ls Logo

Acson AWM 20G - Controller Specifications; Heating Cycle Operations

Acson AWM 20G
165 pages
To Next Page IconTo Next Page
To Next Page IconTo Next Page
To Previous Page IconTo Previous Page
To Previous Page IconTo Previous Page
Loading...
15
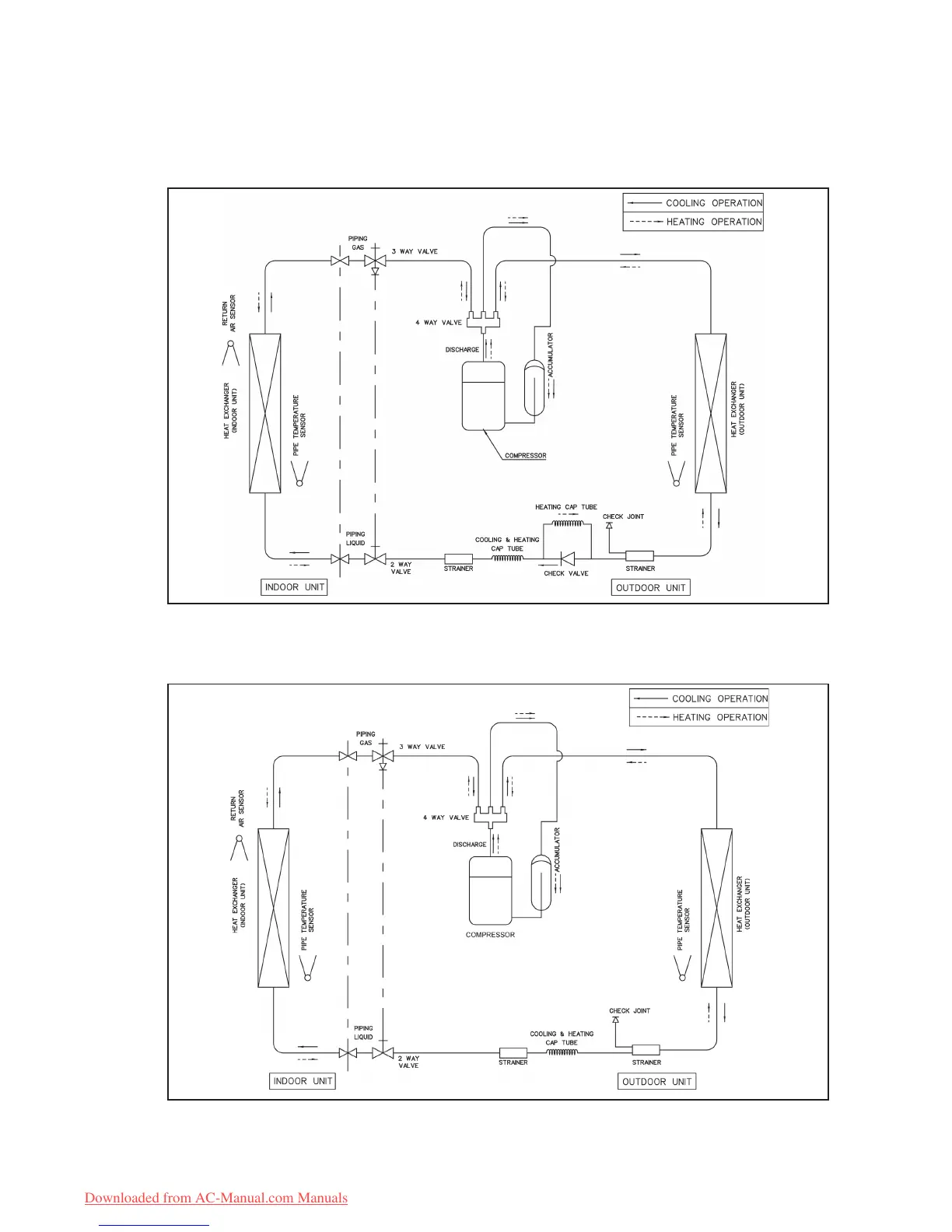
Heatpump Models
MODEL : AWM 20GR - ALC 20CR A5WM 20GR - A5LC 20CR
A5WM 25GR - A5LC 25CR
MODEL : AWM 25GR - ALC 25CR
Downloaded from AC-Manual.com Manuals

Other manuals for Acson AWM 20G

Related product manuals