EasyManua.ls Logo

AERMEC FCX 22 U - Page 82

AERMEC FCX 22 U
Print Icon
To Next Page IconTo Next Page
To Next Page IconTo Next Page
To Previous Page IconTo Previous Page
To Previous Page IconTo Previous Page
Loading...

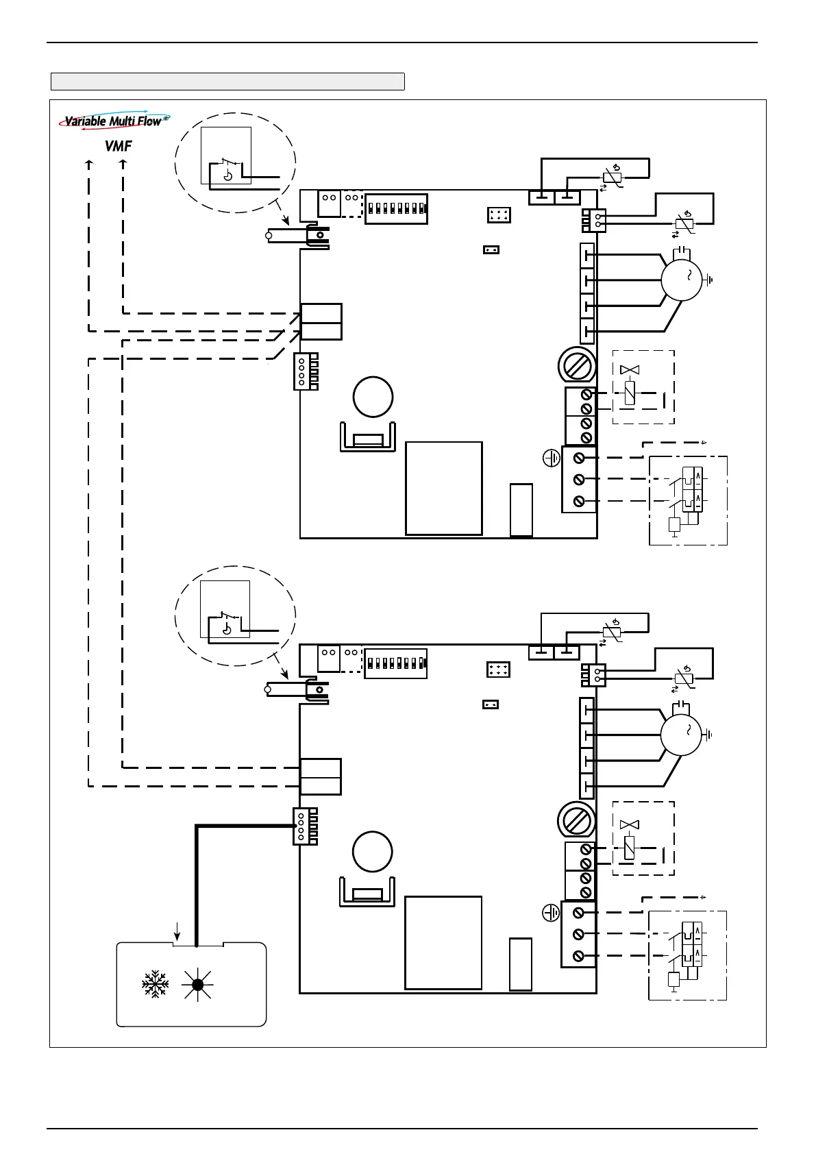
FCX B-U-UA-UE
IFCXBULJ 1412 - 6456062_01
230V 50Hz
10k
PE
SA
SW
MV
M
1
MAX
MED
MIN
BL
NE
MA RO
+
CN9
JP1
CN11
PF2
C1
T1
C7
CN1
CN7-B CN7-A
CN10-B CN10-A
CN17
CN27
1-TX-RX
2- GND
SW
SA
N V3 V2 V1
L N
Y2
N
Y1
N
ON
1 2 3 4 5 6 7 8
DIP
1
1
CE
1
(SP)
1
10k
VC/F
L N
IG
CN8
Dis. 5152700_00
E0 Master
TTL
Only master
(---------------------------------------------------------------------------------------------------------- 30 m MAX ------------------------------------------------------------------------------------------------------)
Slave 1Master
VMF-E2
VMF-E2H
VMF-E4
VMF-E0
230V 50Hz
10k
PE
SA
SW
MV
M
1
MAX
MED
MIN
BL
NE
MA RO
+
CN9
JP1
CN11
PF2
C1
T1
C7
CN1
CN7-B CN7-A
CN10-B CN10-A
CN17
CN27
1-TX-RX
2- GND
SW
SA
N V3 V2 V1
L N
Y2
N
Y1
N
ON
1 2 3 4 5 6 7 8
DIP
1
1
CE
1
(SP)
1
10k
VC/F
L N
IG
CN8
Dis. 5152700_00
E0 Master
TTL
E0/1 Slave
÷
5
VMF-E0
MS
MS
VMF-E0 + VMF-E0

Related product manuals