EasyManua.ls Logo

AIRSYS UniCool 7V1T2 - Page 110

Default Icon
121 pages
Print Icon
To Next Page IconTo Next Page
To Next Page IconTo Next Page
To Previous Page IconTo Previous Page
To Previous Page IconTo Previous Page
Loading...
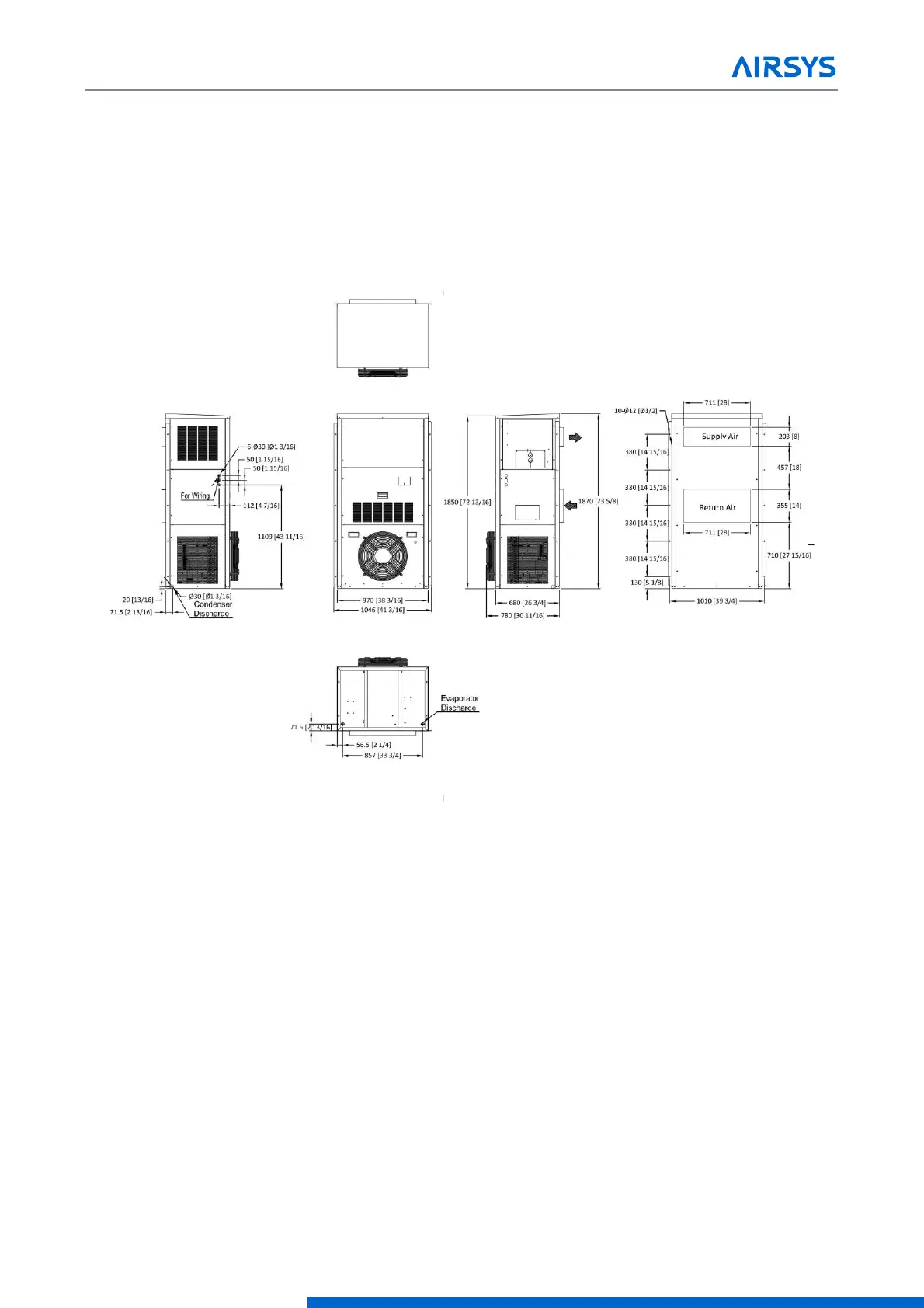
Appendix C: Mechanical Drawings
110
Appendix C: Mechanical Drawings
NOTE: To assist in the installation process, the following figures provide the unit dimensions to a tolerance of
± 1/16” (2 mm).
7V1T2

Related product manuals