EasyManua.ls Logo

AIRSYS UniCool 7V1T2 - Page 113

Default Icon
121 pages
Print Icon
To Next Page IconTo Next Page
To Next Page IconTo Next Page
To Previous Page IconTo Previous Page
To Previous Page IconTo Previous Page
Loading...
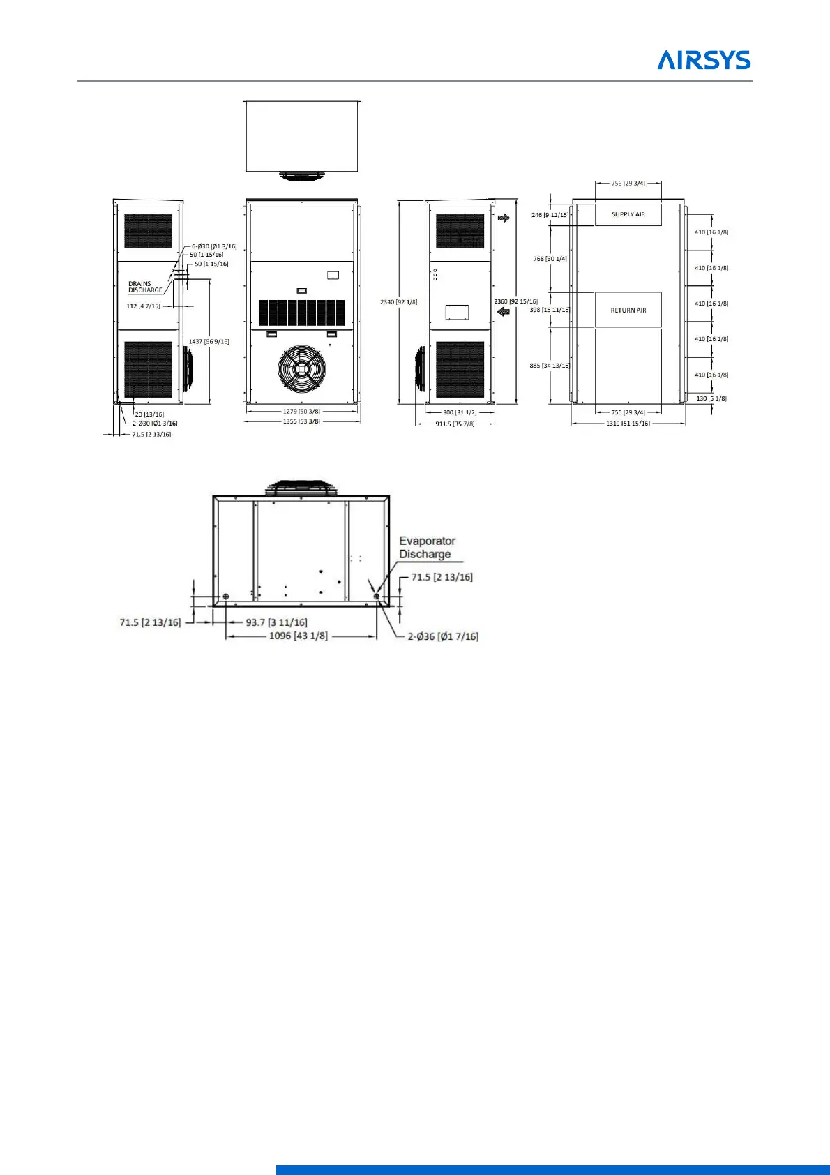
Appendix C: Mechanical Drawings
113
15V1T4

Related product manuals