EasyManua.ls Logo

Akron STYLE 3600 - Page 2

Default Icon
4 pages
Print Icon
To Next Page IconTo Next Page
To Next Page IconTo Next Page
To Previous Page IconTo Previous Page
To Previous Page IconTo Previous Page
Loading...
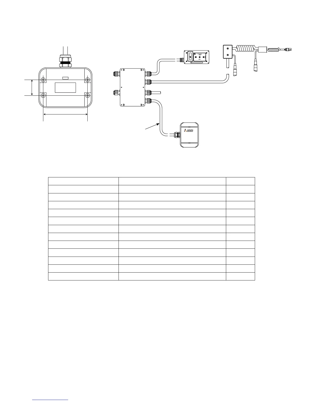
MECHANICAL ATTACHMENT OF RECEIVER
Belowarethemountingholedimensionsforthereceiver.Mountthereceivertoallowenoughcableforproper
installationtotheLogicBox(SeeElectricalLayout).Thereceiverwillcomewitha10ft.cable.
ELECTRICAL INSTALLATION OF RECEIVER
The following is the wiring chart for the Receiver to the Logic Box. These color-coded wires should be wired into the
inputsideoftheLogicBox(TB1).The+V(power)and-V(ground)canbewiredintoTB2.
*TheAuxbuttoncanbeusedforStow,DeployorOscillationifavailableonthemonitor.Wirethewhite/redwireintothe
correspondingterminalrequestedbycustomerfortheappropriatefunction.Seemonitoroperatinginstructions(orLogic
BoxLid)forwiringdiagramandterminallocation.**RunjumperwirefromTB3#7toTB3#3tohavetheAuxLEDonthe
handheld controller indicate if the monitor is stowed or deployed.
•AuxLEDON-Deployed
•AuxLEDOFF-Stowed
SYNCHRONIZE HANDHELD CONTROLLER WITH RECEIVER
•Beforeinitialoperationcanoccur,theHandheldControllermustbesynchronizedwiththeReceiver.
This allows proper communication between the two and ensures that the handheld Controller will only
controltheoperationofoneReceiver.Synchronizationisperformedonlyoncewhenthesystemisput
intooperationforthersttimeorifitbecomesdesirabletosynchronizetheHandheldControllerwitha
differentReceiver.AnunsynchronizedHandheldwillashallLED’sinunisonwhenitisturnedon.This
willcontinueforapproximately20secondsatwhichtimetheunitwillpowerdown.NewHandheld
controllersareshippedunsynchronized.
RECEIVER WIRE COLORS TERMINAL POSITION IN LOGIC BOX
WHITE +V12/24VPOWER TB1#10
WHITE/BLACK -VGROUND TB3#15
GRAY LED TB3#8**
WHITE/RED AUX *
BLACK RIGHT TB1#6
RED LEFT TB1#5
BLUE DOWN TB1#4
GREEN UP TB1#3
YELLOW STREAM TB1#2
BROWN FOG TB1#1
ORANGE STOW(USEDONLYFORSIT) TB1#21
PURPLE DEPLOY(USEDONLYFORSIT) TB1#22
FOGLEFTLOWER
RAISERIGHT
STOW
DEPLOY
SS
WARNING
FOGLEFTLOWER
RAISERIGHT
STOW
DEPLOY
SS
WARNING
1.33"
3.89"
10ft.
Cable
Logic
Box
Receiver
ELECTRICAL LAYOUT
2