EasyManua.ls Logo

Assa Abloy EL366 - Page 8

Assa Abloy EL366
40 pages
Print Icon
To Next Page IconTo Next Page
To Next Page IconTo Next Page
To Previous Page IconTo Previous Page
To Previous Page IconTo Previous Page
Loading...
8
R
ÎÏÐÅÄÅËÅÍÈÅ ÝËÅÊÒÐÈ×ÅÑÊÎÃÎ
ÔÓÍÊÖÈÎÍÈÐÎÂÀÍÈß: ÇÀÊÐÛÒ ÁÅÇ ÏÈÒÀÍÈß ->
ÎÒÊÐÛÒ ÁÅÇ ÏÈÒÀÍÈß Í ............................................... 35
ÑÍßÒÈÅ ÇÀÙÈÒÍÎÉ ÊÐÛØÊÈ I .................................... 36
ÓÑÒÀÍÎÂÊÀ ÑÒÎÐÎÍÛ ÄËß ÂÛÕÎÄÀ (EL560) J ......... 36
ÈÇÌÅÍÅÍÈÅ ÑÒÎÐÎÍÍÎÑÒÈ ßÇÛ×ÊÀ K ..................... 37
ÏÎÄÊËÞ×ÅÍÈÅ ÊÀÁÅËß L ............................................ 37
ÓÑÒÀÍÎÂÊÀ ÀÄÀÏÒÅÐÀ ØÒÎÊÀ 8/9 Ì ......................... 37
ÑÕÅÌÀ ÌÎÍÒÀÆÀ ......................................................... 37 - 39
技术参数 ......................................... 8 - 11
把手孔尺寸 ........................................... 12
技术标准 ............................................. 13
根据EN179标准做为紧急逃生装置的安装 ............. 14 - 15
根据EN1125与逃生推杠的安装 ...................... 14 - 15
接线说明 ............................................. 18
安装环境 ............................................. 20
锁体安装开孔示意图 .............................. 21 - 31
EL466的工作方式设置
换面板 图A ....................................... 32
拆下锁体背面的护板 B .......................... 32
设置里面把手的位置(EL460) C ................... 32
通电开/通电关的转换 D ......................... 33
改变附舌方向的操作 E .......................... 34
连接并固定线缆 F .............................. 34
安装8/9的垫片 M .............................. 37
EL566的工作方式设置
换面板 G ...................................... 34
通电开/通电关的转换 H ......................... 35
拆下锁体背面的护板 I .......................... 36
设置里面把手的位置(EL560) J ................... 36
改变附舌方向的操作 K .......................... 37
连接并固定线缆 L .............................. 37
安装8/9的垫片 M .............................. 37
锁体调节示意图 .................................. 37 - 39
U*) **): 12 – 24 V DC STAB (-10%, +15%)
I**) : Max. Idle
Anlaufspitzenstrom Ruhestrom
Maxi. Repos
maximaal. in rust
Max. con cerradura inactiva
Max. riposo
max. klidu
Maksymalny Spoczynkowy
Ìàêñ. Õîëîñòîãî õîäà
动态最大 静态
12 VDC 550 mA 240 mA
24 VDC 300 mA 13 0 mA
*) Not micro switch locks
**) Not mechanical locks
*) keine Schlösser mit elektronischer
Überwachung
**) keine rein mechanischen Panikschlösser
*) Sauf serrure microswitch
**) Sauf serrures mécaniques
*) Niet in microschakelaar sloten
**) Niet in mechanische sloten
*) No valido para cerraduras con
micro
**) No valido para cerraduras
mecanicas
*) No serrature con microswitch
**) No serrature meccaniche
*) Netýká se zámků s mikrospínačem
**) Netýká se mechanických zámků
*) Nie wystêpuje w zamkach mechanicznych z
mikroprze³±cznikami
**) Nie wystêpuje w zamkach mechanicznych
*) Êðîìå çàìêîâ ñ
ìèêðîïåðåêëþ÷àòåëåì
**) Êðîìå ìåõàíè÷åñêèå çàìêîâ
*) 非微开关锁
*)
PE460,
PE462,
PE260,
PE262,
PE060,
PE062
EL460 - EL463, EL560 - EL563,
PE460, PE462, PE260, PE262,
PE060,PE062, PE560, PE562,
PE360, PE362, PE160, PE162
EL564, EL565
EL466 - EL469, EL566 - EL569,
MP564, MP565
EA218 (6 m) /
EA219 (10 m)
18 x 0.14 mm2
UK
RU
FR
DE
NL
ES
IT
CZ PL
UK
CN
Micro switches **) Max. 0.5 A 30 V AC/DC resist.10 W
Ausgänge Mikroschalter **)
Microswitch **)
Micro schakelaar **)
Microswitch **)
Microswitch **)
Monitorovací kontakty**)
Mikroprze³±czniki **)
Ìèêðîïåðåêëþ÷àòåëü **)
微动开关 最大 0.5 A,30 V AC / DC resist.10 W
UK
RU
FR
DE
NL
ES
IT
CZ
PL
CN
CN
RU
FR
DE
NL
ES
IT
CZ
PL
EL460-EL463, EL260, EL262, EL060, EL062,
PE460, PE462, PE260, PE262, PE060, PE062
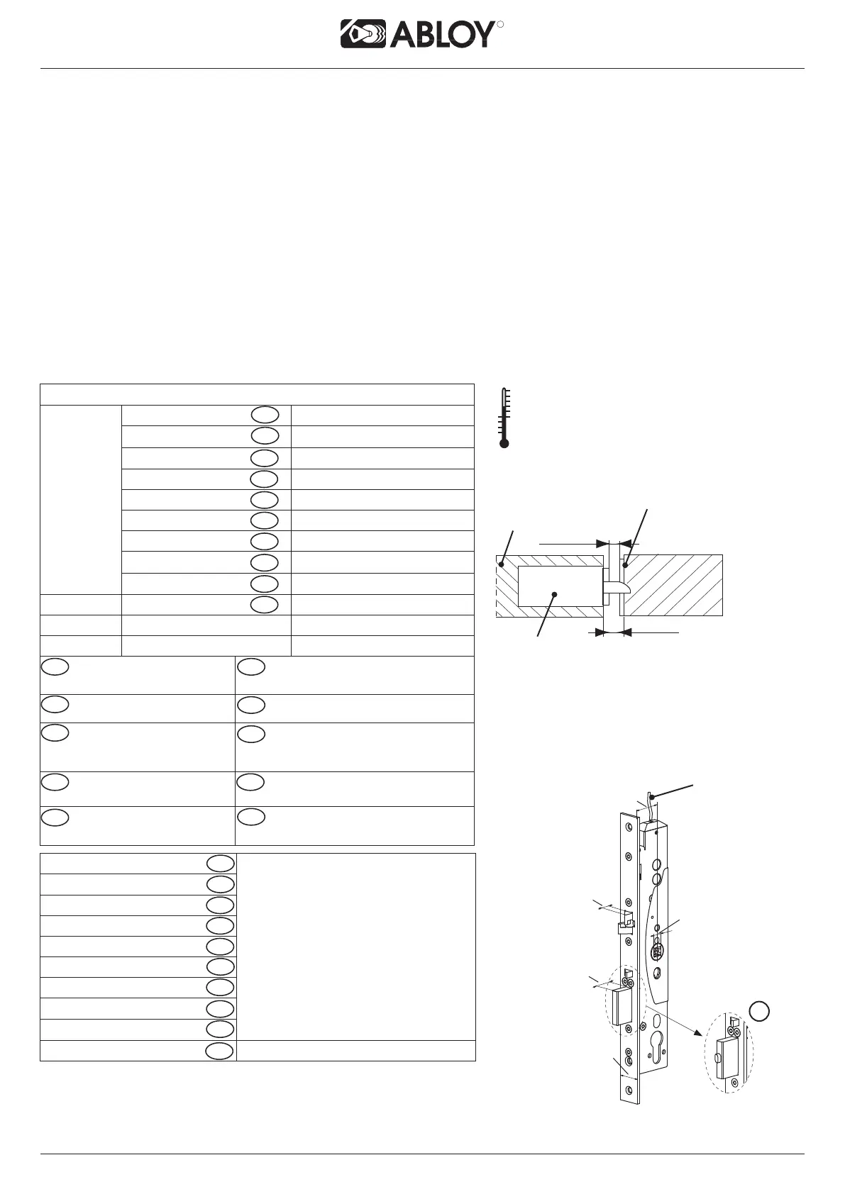
30/35/40/45 mm
24/28 mm
8 x 8 mm/
9 x 9 mm
10 mm
20 mm
EA321, EA322, EA323,
EA324, EA325, EA326,
EA327, EA328, EA329,
EA330, EA331, EA332
LP780, LP781, EA306
A
A
B
EN 14846
-25 °C - +70 °C
Door weight
m=200 kg
!
*) 35 / 40 (PE460, PE462, PE260,
PE262, PE060,PE062)
2 - 5.5 mm
> 6 mm

Related product manuals