EasyManua.ls Logo

Assa Abloy EL461 - Page 4

Assa Abloy EL461
40 pages
Print Icon
To Next Page IconTo Next Page
To Next Page IconTo Next Page
To Previous Page IconTo Previous Page
To Previous Page IconTo Previous Page
Loading...
4
R
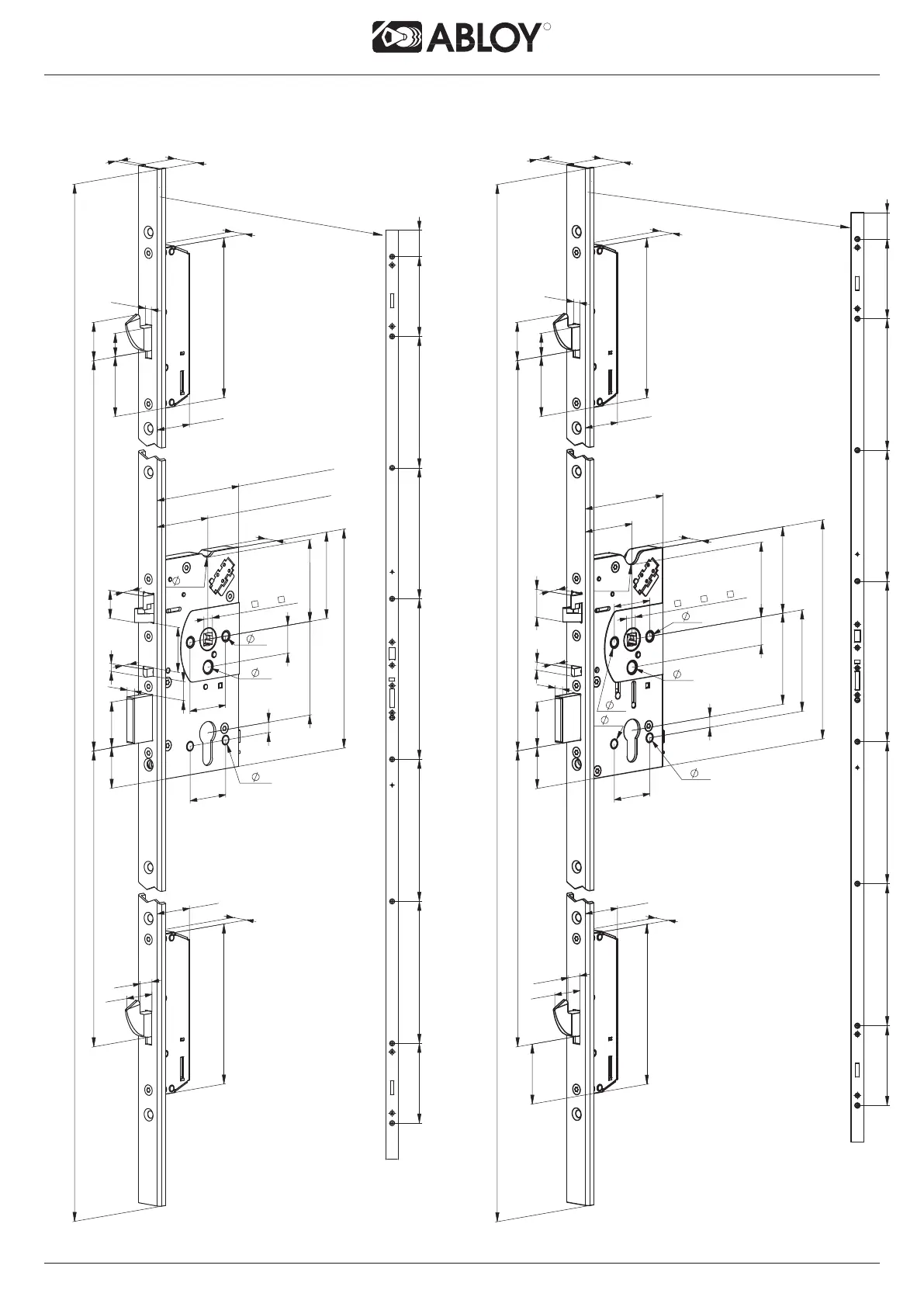
EL566 - EL569
EL366, EL368
MP564
MP565
1760 / 2000
6.5
88,93,98,113,133
168.5
66.5
38
14
35
22
10
6
8
8
8
6
55,60,65,80,100
21.5
PZ 72 / RZ 74
3
6
38
24
12
8
24
6.5
35
15
8 /
9
37.5
123
37.5
123
30
763 / 1003727
44.5
19.5
29.5
14.5
14.5
6
16.5
50151249 / 368248 / 369304269269151
35
8
8
22
10
6.5
6
24
6.5
83
50
168.5
38
7 /
8 /
9
6
8
38
6
6
6
16.5
30
66.570
8
57.521.5
1760 / 2000
44.5
727
44.5 19.5
29.5
763 / 1003
24
12
123
123
37.5
14.5
14.5
37.5
R
7.5
78
50151249 / 368248 / 369304269269151

Related product manuals