EasyManua.ls Logo

Atlas Copco GVS 25A - Page 31

Atlas Copco GVS 25A
84 pages
To Next Page IconTo Next Page
To Next Page IconTo Next Page
To Previous Page IconTo Previous Page
To Previous Page IconTo Previous Page
Loading...
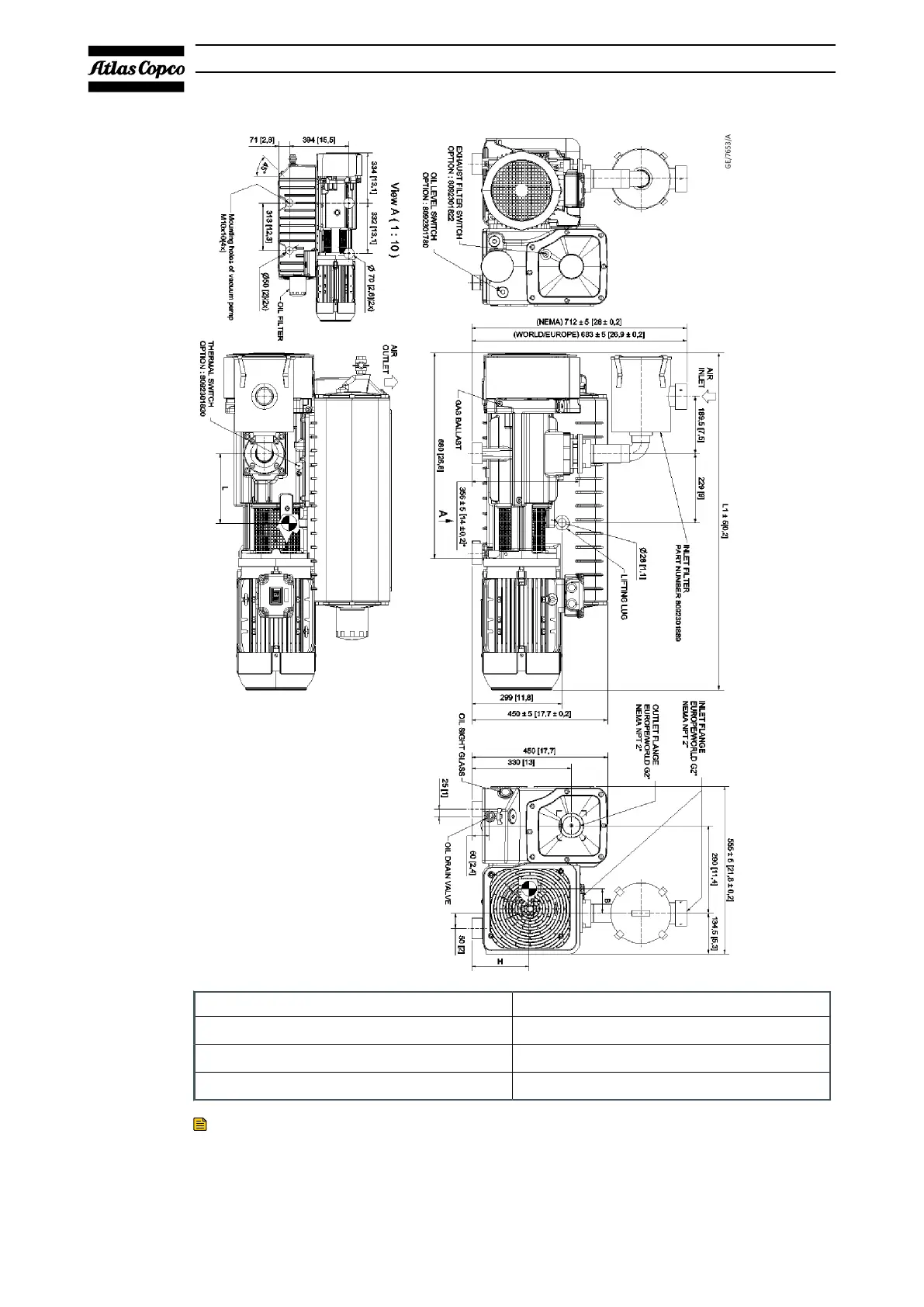
Figure 16 Dimension drawing - GVS 300A
Pump L1 mm (inch)
NEMA 1100 (43.3)
Europe 1160 (45.7)
World 1120 (44.1)
Note:
Approximate weight - 485 lbs
Height without inlet filter.
12/2021 - ©Atlas CopcoPage 316996022430_C
Technical data

Other manuals for Atlas Copco GVS 25A

Related product manuals