EasyManua.ls Logo

Automatic Cobra - Steps Thirteen and Fourteen

Automatic Cobra
28 pages
Print Icon
To Next Page IconTo Next Page
To Next Page IconTo Next Page
To Previous Page IconTo Previous Page
To Previous Page IconTo Previous Page
Loading...
Page 14
INSTALLATION (continued)
STEP THIRTEEN:
Place the drive unit on the garage fl oor with corrugated cardboard or old carpet underneath to prevent damage.
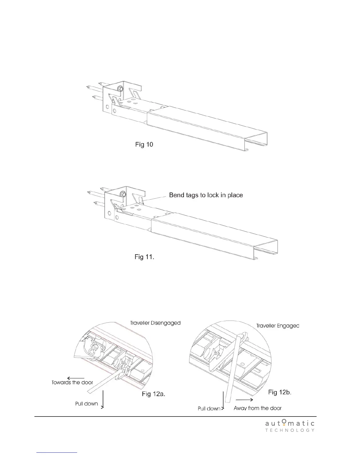
Lift up the assembled rail and motor unit. Slide the idler bracket over the header bracket tags. Pull the rail back
and down so the header bracket tags engage in the slots in the idler bracket as shown in Fig. 10. If required, rest
the motor end on a ladder.
Raise the motor end up and fi x to the ceiling as in Fig 9a to Fig 9d, keeping the rail level. Once the motor end is
mounted, bend the header bracket tags slightly so the idler bracket can’t jump off, as shown in Fig. 11. For exam-
ple, use pliers to bend the tags out a few millimetres.
STEP FOURTEEN
Attach release cord to the disengage lever, Fig 12b. To keep the traveller disengaged, pull down the cord on an
small angle towards the door. The lever will latch in the disengaged position as shown in Fig 12a. To re-engage the
traveller, pull the cord down on an angle away from the door, then release straight up as shown in Fig 12b.
2.
1.

Related product manuals