EasyManua.ls Logo

Backyard Discovery 1905016B - Setup Dimensions and Safe Play Zones

Backyard Discovery 1905016B
57 pages
Print Icon
To Next Page IconTo Next Page
To Next Page IconTo Next Page
To Previous Page IconTo Previous Page
To Previous Page IconTo Previous Page
Loading...
Important Assembly Notes
1) While assembling unit, take time before and after each phase to make sure fort is level. If fort is not level, assembly will be difficult and
improper assembly may result. Extra care must be taken to ensure the fort is square.
2) Tighten bolts securely, tighten nuts on bolts flush to the tube or member.
3) Pay close attention to the ITEMS NEEDED FOR EACH PHASE. They can be a valuable aid when sorting your wood and hardware. Assembly
will be made easier if items are sorted by phase.
4) Pay close attention to make sure you are using the correct hardware in the correct phases. Using incorrect hardware may result in improper
assembly.
5) Whenever a T-nut is used, follow these directions. Place T-nut in pre-drilled hole. Tap in with hammer. Place bolt with washers in the opposite
side. Hand tighten to make sure the bolt is in the T-nut. DO NOT over tighten.
6) Read the steps of each phase thoroughly. The written steps may include important information not shown in the illustrations.
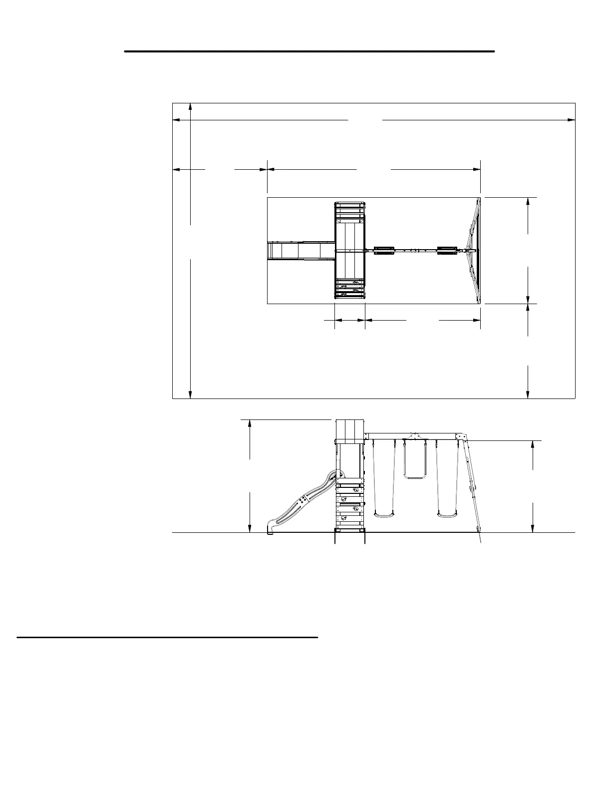
Basic Setup Dimensions
Place the set on level ground, not less than 6' - 7" [2 m] from any structure or obstruction such
as a fence, garage, house, overhanging branches, laundry lines, or electrical wires.
Safe Play Zone
Safe play height: 14.5' [4.4 m]
Maximum fall height: 6.36' [1.9 m]
General Information:
Your set has been designed and
engineered for children only and
for residential use only.
A maximum of 150 lbs. per child
is recommended for play
activities designed for individual
use.
A maximum of 120 lbs. per child
is recommended for play
activities designed for multiple
child use.
A maximum of 6 children is
recommended for this swing set.
«
S
P
A
N
I
S
H
28.01 ft
[8.5 m]
20.52 ft
[6.3 m]
6.58 ft
[2 m]
7.36 ft
[2.2 m]
14.85 ft
[4.5 m]
6.58 ft
[2 m]
2.09 ft
[.6 m]
8.05 ft
[2.5 m]
7.82 ft
[2.4 m]
6.36 ft
[1.9 m]
12

Related product manuals