EasyManua.ls Logo

Baldor Dodge - Pillow Block Assemblies with Accelerometer; Connection to a PLC; Connection to Data Acquisition System

Baldor Dodge
8 pages
Print Icon
To Next Page IconTo Next Page
To Next Page IconTo Next Page
To Previous Page IconTo Previous Page
To Previous Page IconTo Previous Page
Loading...
3
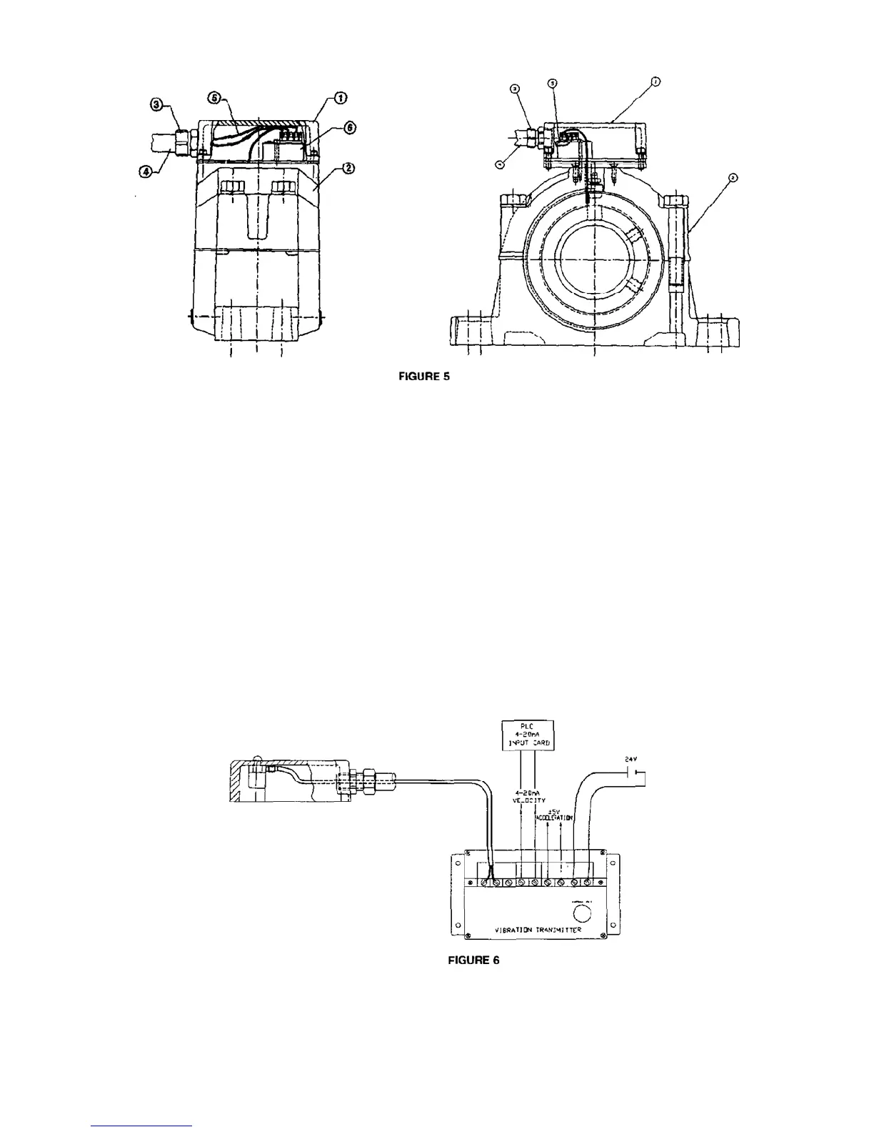
Pillow Block Assemblies with Accelerometer
A. Connection to a PLC:
In order to connect the accelerometer to a PLC, a
vibration transmitter is needed to power the
accelerometer and to transmit the signal in a suitable
form.
The vibration transmitter produces 4 to 20 mA
proportional to the vibration velocity and ±5 volts
signal proportional to acceleration. The transmitter
needs 20 to 30 DC voltage supply. The transmitter is
available from DODGE, Part No. 055222.
The output of the transmitter can then be connected
to Allen Bradley 1746-NI4 card.
B. Connection to a Data Acquisition System:
A data acquisition system is normally composed of a
PC with analog input cards plus the required software.
In order to interface the accelerometer to the analog
input card, the above transmitter can be used. A lower
cost power conditioner module can also be used. The
power conditioner module will produce plus or minus
5 volts when powered by a 24 volts DC power supply.
The module is available from DODGE, Part No.
055223.
The output of the transmitter or module should then
be connected to the input analog card in the PC. It is
important that the vibration be sampled at 10,000 Hz.
1. Remove the top cover from the housing very carefully by
removing the four screws. Note that the accelerometer is
attached to the cover (1).
2. Install a
1
/
2
inch liquid tight electrical fitting to the cover
using the hole on the side.
3. Use a flex conduit (2) between the cover and the
accelerometer power supply or the data acquisition
system if the system has a built-in power supply.
4. Insert the accelerometer cable through the conduit and
secure the nuts to the accelerometer and the power
supply (3) and (4).
5. Use a DC power supply 18 to 28 volts with current
capability of 2 to 20 mA. Attached is the specifications for
the accelerometer and its power supply.
ACCELEROMETER CHARACTERISTICS
DYNAMICS ENGLISH S.I.
Sensitivity (±10%)
(A)
100 mV/g 10,2 mV/m/s
2
Measurement Range ±50 g ±490 m/s
2
Resolution 0.0002 g 0,0019 m/s
2
Frequency Range: (±10%)
(B)
66–300,000 cpm (1.1–5,000 Hz) 66–300 000 cpm (1,1–5 000 Hz)
(±3 dB) 30–600,000 cpm (0.5–10,000 Hz)30–600 000 cpm (0,5–10 000 Hz)
Resonant Frequency
(C)
1,080 kcpm (18 kHz) 1 080 kcpm (18 kHz)

Related product manuals