EasyManua.ls Logo

Barrett 2022 - Page 9

Barrett 2022
13 pages
Print Icon
To Next Page IconTo Next Page
To Next Page IconTo Next Page
To Previous Page IconTo Previous Page
To Previous Page IconTo Previous Page
Loading...
1 2 34
A
B
C
D
4
321
D
C
B
A
A1
A2
1
2
3
4
5
P1
7W2 Male
A1
A2
1
2
3
4
5
P2
7W2 Female
A1
A2
1
2
3
4
5
P3
7W2 Female
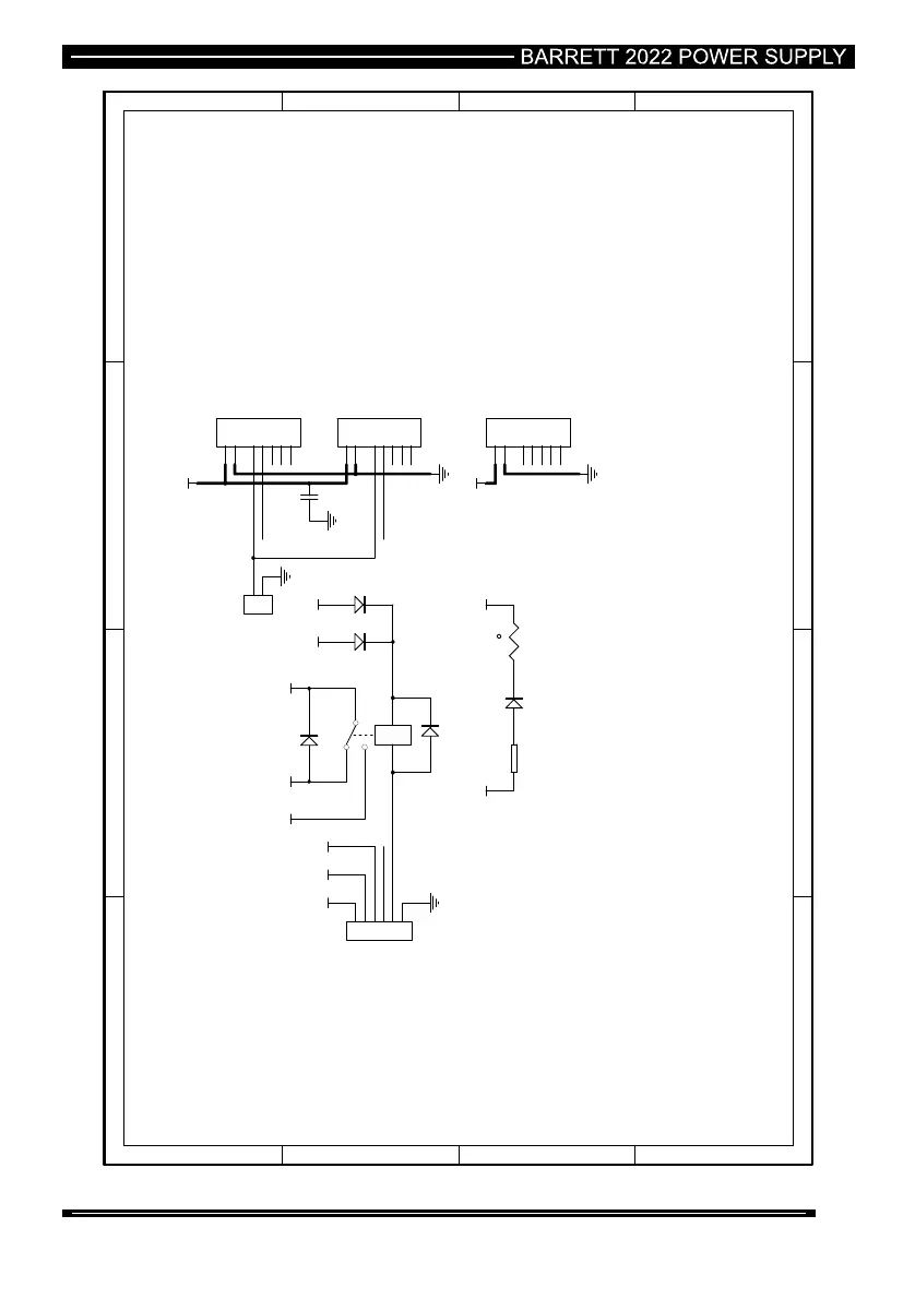
Speaker
Speaker
Battery
13V8 out
13V8 out
Fan
Fan
VBattVPSU
RL1
REL EP1-3L1S-SPDT
R9
0.1R/5W
D3
1N5821
RT1
THERMISTOR
1
2
P5
CON2
Fan
D4
1N5404
+13V8VBatt VPSU
VPSUVBatt
+13V8
VBatt
Battery Charging circuit
1
2
3
4
5
6
P4
CON6
Control Board
C5
0U1
VBatt VPSU +13V8
Speaker
Control
D1
1N4148
D2
1N4148
D5
1N4148
Barrett 2022 Power Supply Rear Panel Schematic
Drawing No: 2022D1-A5
9