EasyManua.ls Logo

BeiJer E150 - Page 131

Default Icon
153 pages
Print Icon
To Next Page IconTo Next Page
To Next Page IconTo Next Page
To Previous Page IconTo Previous Page
To Previous Page IconTo Previous Page
Loading...
E-28
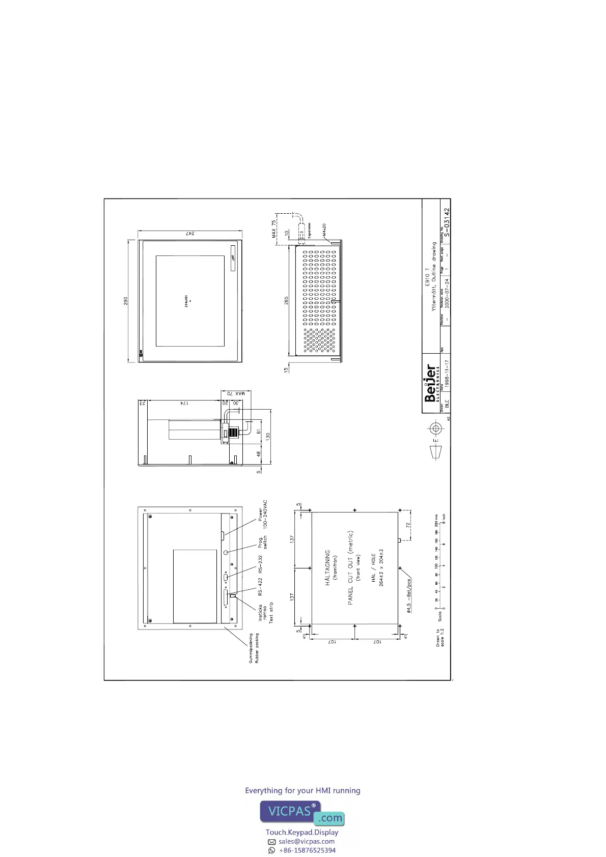
E910T Outline

Related product manuals