EasyManua.ls Logo

BeiJer E200 - Page 133

Default Icon
153 pages
Print Icon
To Next Page IconTo Next Page
To Next Page IconTo Next Page
To Previous Page IconTo Previous Page
To Previous Page IconTo Previous Page
Loading...
E-30
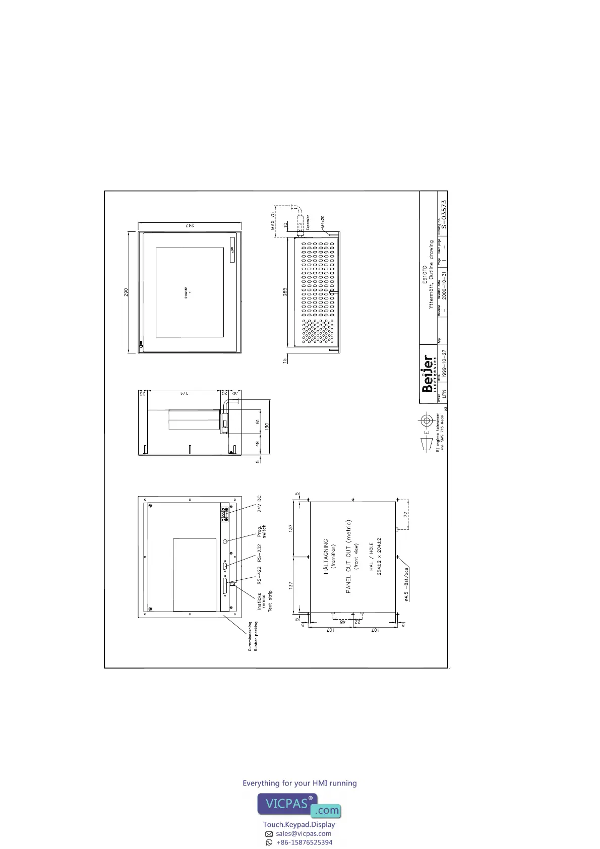
E910TD Outline

Related product manuals