EasyManua.ls Logo

Benninca SAM - Page 7

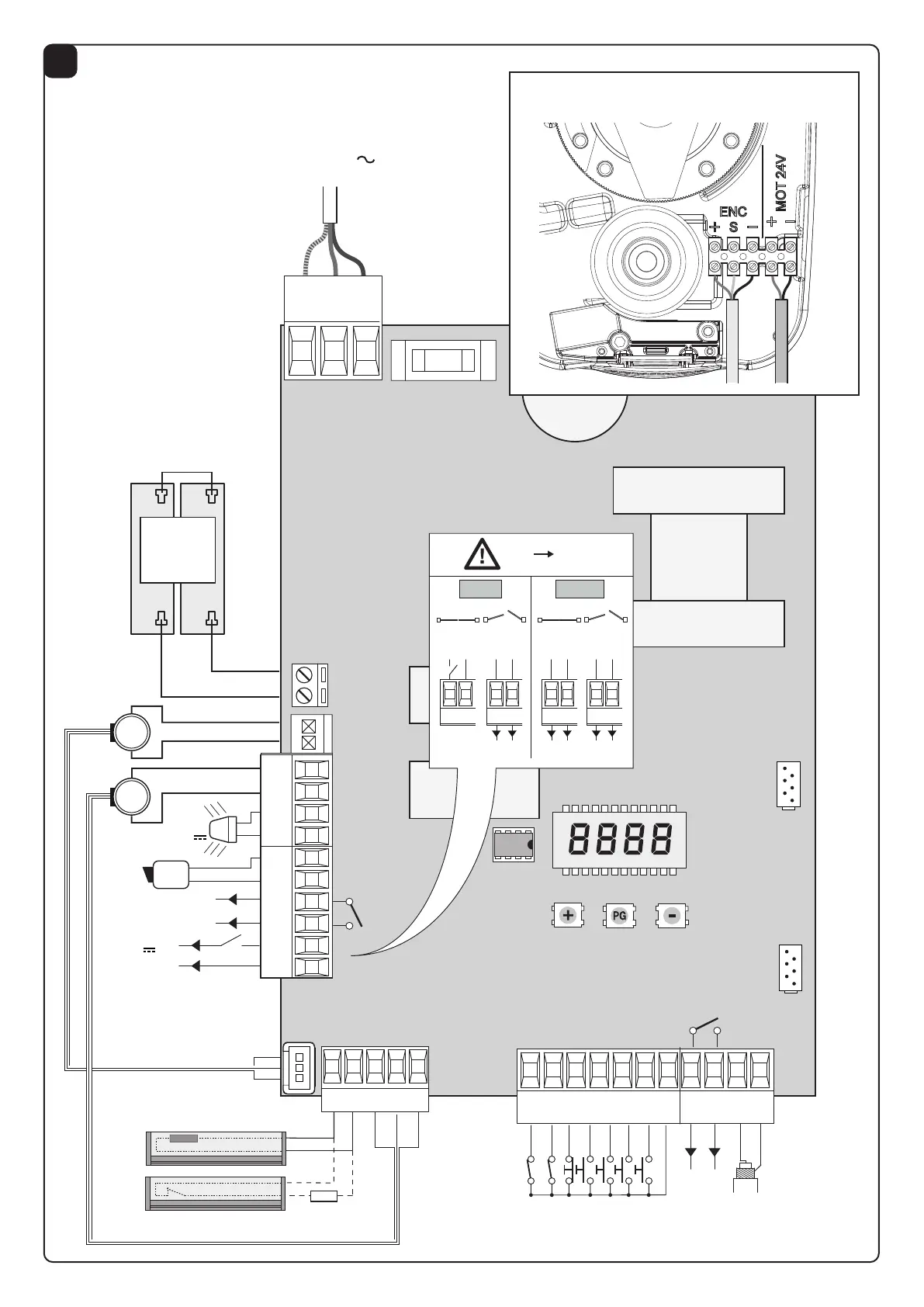
Benninca SAM
Print Icon
To Next Page IconTo Next Page
To Next Page IconTo Next Page
To Previous Page IconTo Previous Page
To Previous Page IconTo Previous Page
Loading...
7
12
GND
LN
F1
T4A
U5
EXP.1
EXP.2
ENC.1
+ -
-
+
2x12V
Battery
(Optional)
LAMP
24V
LOCK
MOT2 BLINK LOCK AUX1 + 24V -
115-230V
50/60Hz
M1
M2
+ -
AUX1
AUX2
ENC.2
+
S
BAR
BAR
8K2
BAR
N.C.
-
SHIELD
ANT
ANT
PHOT OP
PHOT CL
STOP
OPEN
CLOSE
PED
COM
P. P.
CP.SAM
STAND-BY
ESA:on
24V
󰀮
24V
󰀮
OUT
24V
󰀮
OUT
24V
󰀮
OUT
24V
󰀮
OUT
0V
ESA:off
LOG ESA
+ - + -
24V
󰀮
+ -
24V
󰀮
+ -
24V
500 mA
8K2
R
R
8K2
SAM.24 (M2)