EasyManua.ls Logo

Bernina aurora 430 - Thread the Upper Thread

Bernina aurora 430
86 pages
Print Icon
To Next Page IconTo Next Page
To Next Page IconTo Next Page
To Previous Page IconTo Previous Page
To Previous Page IconTo Previous Page
Loading...

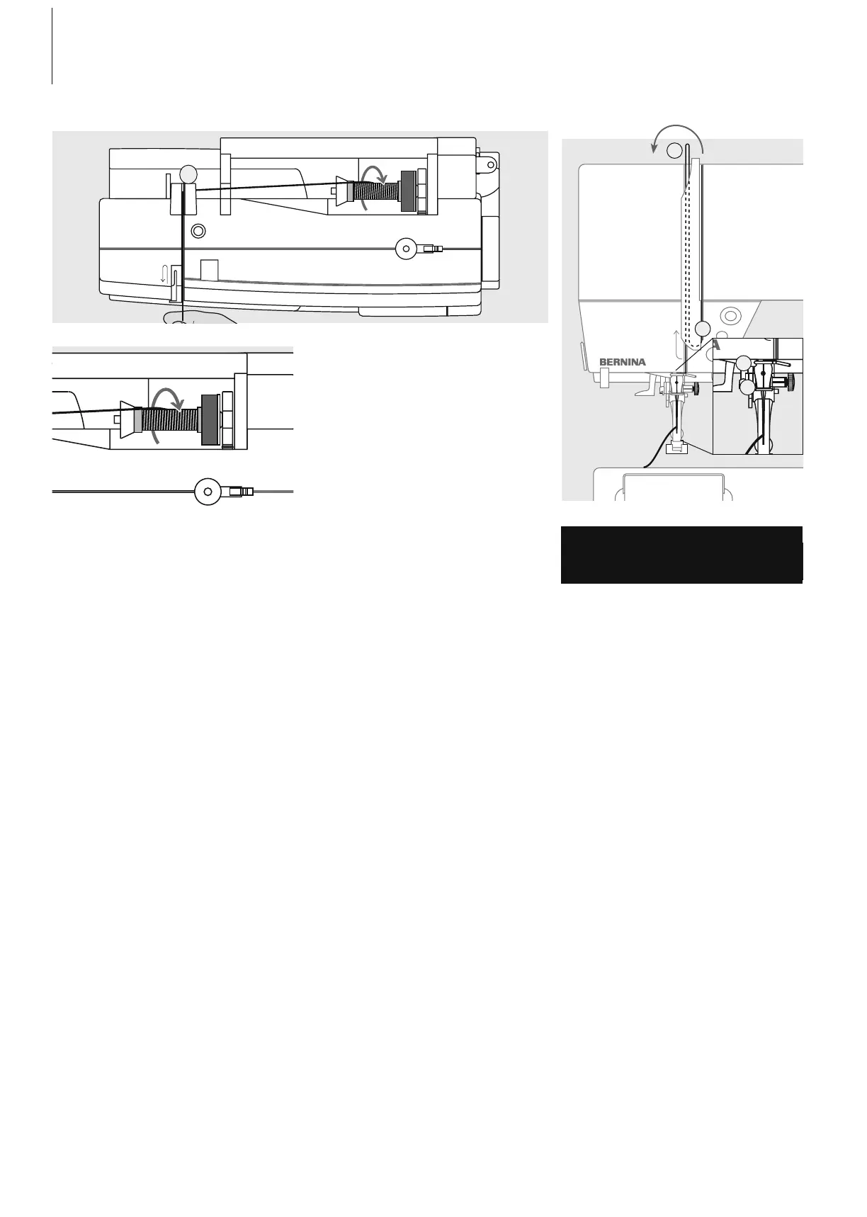
*OEJDB[JPOJQFSM࣐VTP
*OGJMBUVSBEFMGJMPTVQFSJPSF
*OTFSJSFMBTQPMB
ࣙ BM[BSFM࣐BHPFJMQJFEJOP
ࣙ NFUUFSFM࣐JOUFSSVUUPSFQSJODJQBMFTVk{
ࣙ NPOUBSFJMTVQQPSUPEJHPNNBQJVNB
ࣙ NFUUFSFJMGJMPTVMQFSOPQPSUBGJMPJONPEP
DIFJMGJMPTJTWPMHFJOTFOTPPSBSJP
ࣙ JOTFSJSFJEJTDIJTWPMHJGJMPBEBUUJEJBNFUSP
EFMMBTQPMBHSBOEF[[BEFMEJTDPUSBMB
TQPMBFEJMEJTDPOPODJEFWFSJNBOFSF
EFMMPTQB[JPBQFSUP
ࣙ UFOFSFGFSNPJMGJMPFGBSMPQBTTBSFOFM
HVJEBGJMPQPTUFSJPSF"
ࣙ UJSBSMPJOBWBOUJGBDFOEPMPQBTTBSFOFMMB
GFTTVSBEFMMBUFOTJPOFTVQFSJPSF
ࣙ HVJEBSFJMGJMPBEFTUSBMVOHPJMDPQFSDIJP
EFMMBMFWBWFSTPJMCBTTPBUUPSOPBM
QVOUP#
ࣙ SJQPSUBSFJMGJMPJOBMUPTVMMBTJOJTUSBEFM
DPQFSDIJPBUUPSOPBMQVOUP$MFWB
UFOEJGJMPJOEJSF[JPOFEFMMBGSFDDJB
ࣙ SJQPSUBSFJMGJMPWFSTPJMCBTTPGBDFOEPMP
QBTTBSFOFJHVJEBGJMJ%FE&
-FHHFSFBUUFOUBNFOUFMF
JOGPSNB[JPOJTVMMBTJDVSF[[B
$
#
&
%
"

Other manuals for Bernina aurora 430