EasyManua.ls Logo

BFT LEO MV D - Page 11

BFT LEO MV D
13 pages
Print Icon
To Next Page IconTo Next Page
To Next Page IconTo Next Page
To Previous Page IconTo Previous Page
To Previous Page IconTo Previous Page
Loading...
38 - LEO MV D - Ver. 03
D811512_03
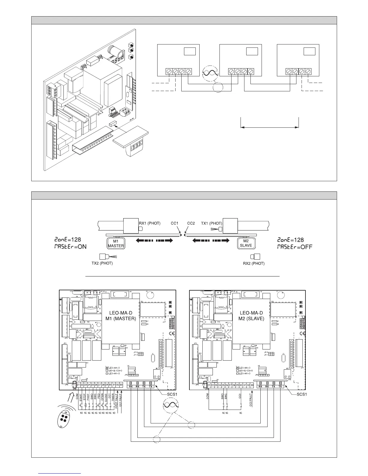
Fig. 6
Fig. 5
SCS1
SCS1
SCS1
Max. 250m
TX1
TX2
RX1
RX2
TX1
TX2
RX1
RX2
TX1
TX2
RX1
RX2
SCS1

Related product manuals