EasyManua.ls Logo

Bilt Backyard Arcadia - Page 42

Default Icon
70 pages
Print Icon
To Next Page IconTo Next Page
To Next Page IconTo Next Page
To Previous Page IconTo Previous Page
To Previous Page IconTo Previous Page
Loading...
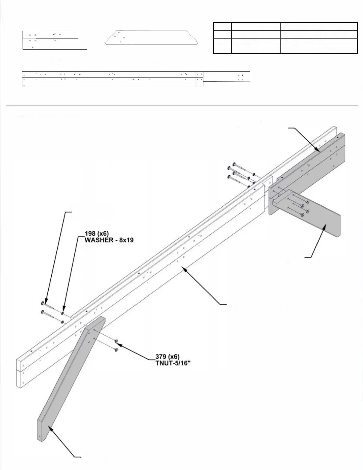
STEP 198 - GAZEBO ASSEMBLY
  
H
  





   
. . ·.






 



4



 



42
4


4
42