EasyManua.ls Logo

Blyss NE15FB - Page 55

Blyss NE15FB
198 pages
Print Icon
To Next Page IconTo Next Page
To Next Page IconTo Next Page
To Previous Page IconTo Previous Page
To Previous Page IconTo Previous Page
Loading...
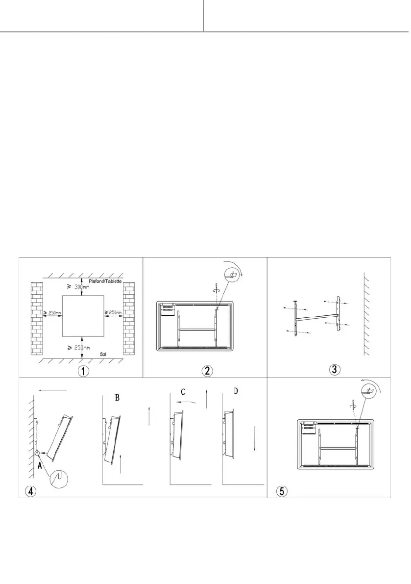
4. Przyłożyć grzejnik do wspornika (rysunek 4):
A: Dopasować grzejnik do 2 zaczepów dolnych
skierowanych w dół.
B: Pociągnąć grzejnik do góry, jednocześnie
przytrzymywać 2 zaczepy dolne.
C: Dopasować grzejnik do 2 zaczepów górnych
skierowanych w górę.
D: Pociągnąć grzejnik w dół.
5. Wsunąć metalową płytkę w otwór i dokręcić śrubę,
aby zablokować wspornik montażowy (rysunek 5).
Czynności przed użytkowaniem
08PL

Related product manuals