EasyManua.ls Logo

Bompani BO342BA/E - Page 22

Bompani BO342BA/E
Print Icon
To Next Page IconTo Next Page
To Next Page IconTo Next Page
To Previous Page IconTo Previous Page
To Previous Page IconTo Previous Page
Loading...
22
DISTANZE DI SICUREZZA
Distanza di sicurezza verso il basso
Per garantire la corretta aerazione è necessario mantenere una distanza minima tra l’elettrodomestico e
un forno, un piano intermedio o un cassetto.
La distanza minima tra il bordo inferiore del piano di cottura e
- il bordo superiore di un forno deve essere di 15 mm.
- il bordo superiore di un ripiano intermedio deve essere di 15 mm.
- il fondo di un cassetto deve essere di 75 mm.
Ripianto intermedio
Il montaggio di un ripiano intermedio sotto un piano di cottura non è necessario ma è consentito.
Per posare un cavo di alimentazione elettrica, predisporre sul retro una fessura di 10 mm.
Per consentire una migliore aerazione del piano di cottura si consiglia di lasciare una fessura di 20 mm.
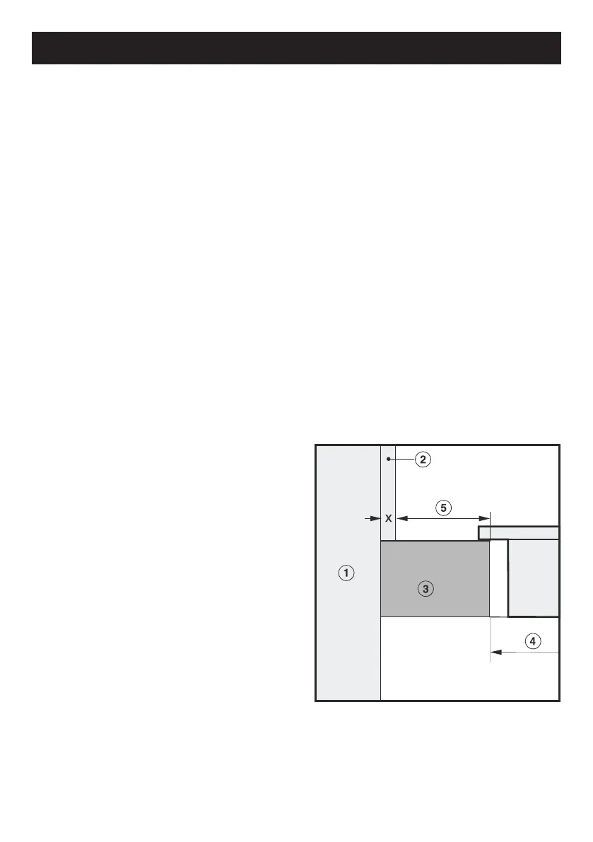
Distanza di sicurezza dal rivestimento della nicchia
Se si applica un rivestimento sulla nicchia occorre rispettare una distanza minima tra l’intaglio del piano di
lavoro e il rivestimento poiché le temperature elevate possono modificare o danneggiare i materiali.
- Se il rivestimento è in materiale infiammabile (p.es. legno) la distanza minima tra intaglio del piano di
lavoro e rivestimento deve essere di 50 mm.
- Se il rivestimento è in materiale non infiammabile (p.es. metallo, pietra naturale, piastrelle in ceramica)
la distanza minima tra intaglio del piano di lavoro e rivestimento deve essere di 50 mm meno lo
spessore del rivestimento.
Esempio: spessore del rivestimento 15 mm
50 mm - 15 mm = distanza minima 35 mm
Piani cottura con cornice/sfaccettati
1) Muro
2) Rivestimento nicchia
misura x = spessore del rivestimento
3) Piano di lavoro
4) Intaglio nel piano di lavoro
5) Distanza minima
per materiali inammabili 50 mm
per materiali non inammabili 50 mm - misura x