EasyManua.ls Logo

Bosch DHD3614UC - Page 14

Bosch DHD3614UC
56 pages
Print Icon
To Next Page IconTo Next Page
To Next Page IconTo Next Page
To Previous Page IconTo Previous Page
To Previous Page IconTo Previous Page
Loading...
14
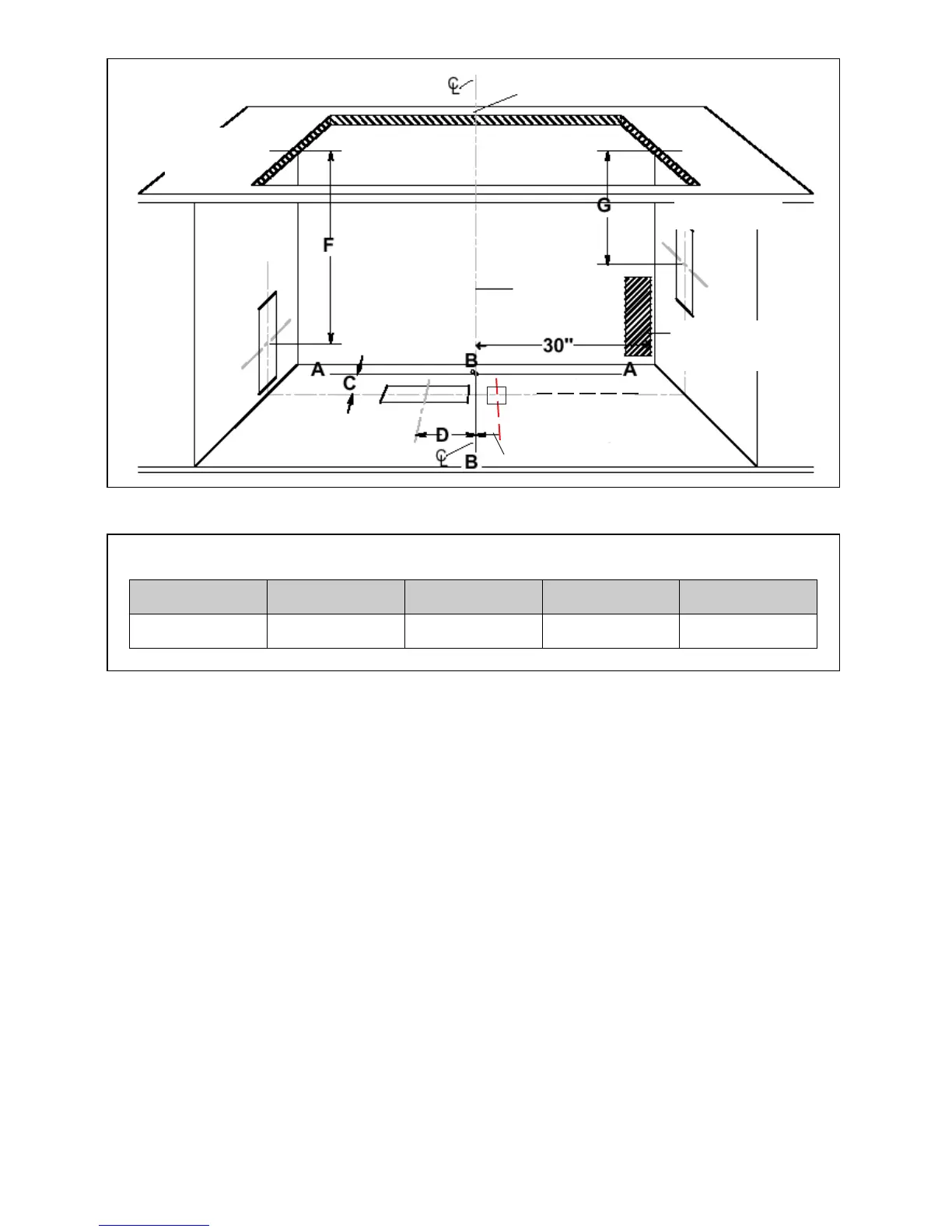
Countertop
Surface
Point "P" (Center of Rear Cut-line)
Cabinet Back
Cabinet Bottom Shelf
Left Side
Note: Centerlines of
Rectangular Duct Shown
Plumb line to
intersection A-A
& B-B
Receptacle
Location
Right Side
E
Adjustable
Within Range
Fig. 9
C
6 3/8” 14 1/2” 1 7/8” 15 1/2” 9 3/4”
DEFG
Cabinet Cutout Dimensions for Blower:
Table 4
Step 3: Prepare Duct Cutouts in
Cabinet
A. Refer to Figure 9. Drop a plumb-line from
Point ”P” at the rear center of the
countertop cutout. Mark this point on the
bottom of the cabinet below. Construct
two reference lines through this point:
one should be parallel to the cabinet
front and directly below the rear counter-
top cutout (Line A-A), and the other (Line
B-B) should be at right angles to A-A.
B. Using these reference lines as a base for
the measurements shown in Table 4,
layout the necessary cabinet cutouts
needed to implement the planned
ductwork route. Where a range of
measurements is noted, choose a
measurement that allows best clearance
from wall studs, floor joists, utilities, or
other obstructions.
Step 3: Prepare Duct Cutouts in
Step 3: Cabinet
C. Temporarily set intake and cooktop in
place and attach integral blower (or duct
transition fitting if a remote blower is
installed). Refer to steps 6 and 7. Verify
that the duct cutouts as marked will
match the hardware installation. Adjust
the duct cutout as necessary to match
hardware installation.
D. Remove temporarily placed hardware
and make cutouts in cabinet to
accommodate ductwork installation.
E. Make all other cabinet modifications
needed to provide proper clearances for
drawers or removable shelving.

Other manuals for Bosch DHD3614UC

Related product manuals