EasyManua.ls Logo

BÖWE P12 - P18 Operating Values

Default Icon
72 pages
Print Icon
To Next Page IconTo Next Page
To Next Page IconTo Next Page
To Previous Page IconTo Previous Page
To Previous Page IconTo Previous Page
Loading...
23
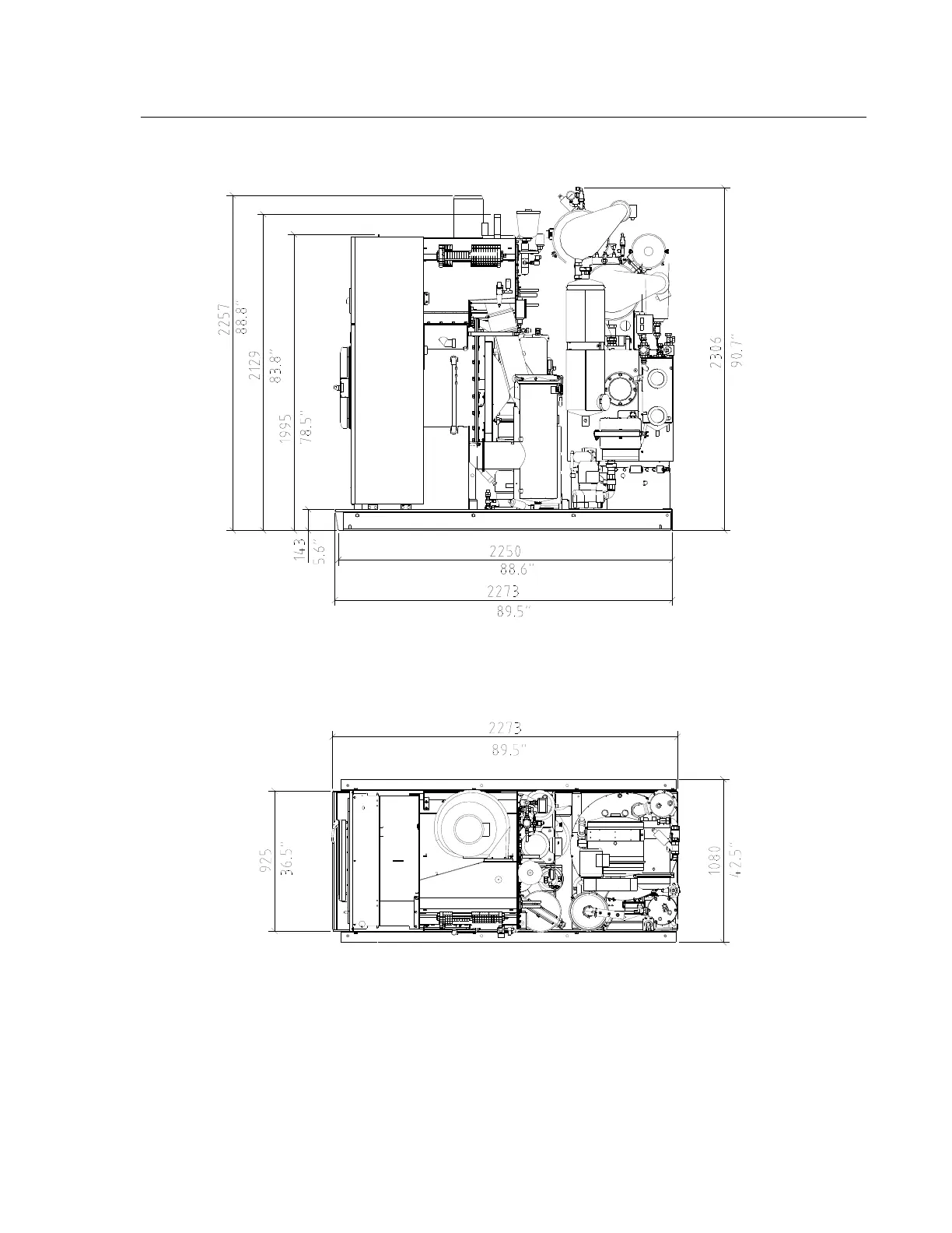
P12-P15-P18
5 Installation 5
Slimline P18
707770-13-A
707770-14-0
* only by second filter
*

Other manuals for BÖWE P12

Related product manuals