EasyManua.ls Logo

Broan F403601 - Installing the Ductwork; Wall Cap Ducting Installation; Roof Cap Ducting Installation

Broan F403601
8 pages
Print Icon
To Next Page IconTo Next Page
To Next Page IconTo Next Page
To Previous Page IconTo Previous Page
To Previous Page IconTo Previous Page
Loading...
4
INSTALANDO LOS
DUCTOS
NOTESE
ESTAS INSTRUCCIONES SEGUIRÁN LOS PLANES
HECHOS EN LA PÁGINA 2. COMIENCE EN LA
PARTE EXTERIOR Y TRAIGA EL DUCTO HACIA
EL EXTRACTOR.
PARA EL MEJOR RENDIMIENTO DE SU EXTRAC-
TOR, USE EL CAMINO MÁS CORTO DE DUCTO Y
UN MÍNIMO DE CODOS.
NUNCA DESCARGUE EL AIRE DEL EXTRACTOR
EN EL ESPACIO DE LA BUHARDILLA PORQUE
UNA ACUMULACIÓN DE GRASA PODRÍA CAUSAR
UN INCENDIO.
USE SOLAMENTE DUCTOS DE METAL (NO USE
DUCTOS DE PLÁSTICO). ENSÁMBLELOS BIEN DE
MANERA QUE EN CASO DE QUE HUBIESE UN
INCENDIO CAUSADO POR GRASA, EL INCENDIO
SE QUEDARÁ CONTENIDO DENTRO DE LOS
DUCTOS DE METAL.
ES UNA BUENA PRÁCTICA EL PONER CINTA EN
TODAS LAS CONEXIONES DEL DUCTO
HACIÉNDOLOS NO SOLAMENTE SEGUROS SI NO
TAMBIÉN A PRUEBA DE ESCAPE DE AIRE.
15.Siga las direcciones apropiadas abajo para el tipo
de ductos que esté instalando:
CASQUETES DE PARED (FIG. 9)
Use una sierra sable para cortar un hueco ligeramente
más grande que el diámetro del ducto de manera que
el ducto se alinee más fácilmente con el extractor.
Instale tiras de sostén en las paredes exteriores que
estén acabadas con superficie exterior de madera,
aluminio o vinilo. Ensamble los ductos y ponga cinta
en todas las uniones. Traiga los ductos de afuera hacia
al extractor. Sujete el casquete de pared a la última
sección de ducto y clave el casquete a la pared. Selle
alrededor de la ceja del casquete con un compuesto
para rellenar. Asegúrese que hay suficiente ducto que
entra a la cocina de manera que el ducto sobrepasará
y entrará dentro el conector de regulador/ducto por lo
menos por 3/4" cuando esté el ducto instalado.
CASQUETES DEL TECHO
Corte un hueco en el techo más grande que el diámetro
del ducto de manera que el ducto se alineará más
fácilmente con el extractor. Recorte el tejado (tablillas
de tejado) alrededor de hueco de manera que quepan
apretadamente alrededor de casquete cuando éste
instalado. Ensamble los ductos y ponga cinta aislante
en todas las uniones. Traiga el ducto hacia abajo, al
extractor. Recorte el ducto paralelo a la inclinación del
techo, dejando 3/4" de ducto que se proyecte más
arriba de techo. Selle la abertura alrededor de ducto
con cemento de techo.
Instale el casquete insertando el filo de atrás de la
ceja del casquete debajo de las tablillas del tejado.
Selle alrededor del casquete con cemento de techo y
selle todas las cabezas de clavos y tablillas que fueron
cortadas o levantadas.
Asegúrese que haya suficiente ducto que se proyecte
dentro la cocina de manera que el ducto sobrepase al
conector de regulador/ducto por 3/4" cuando el extrac-
tor esté en su sitio.
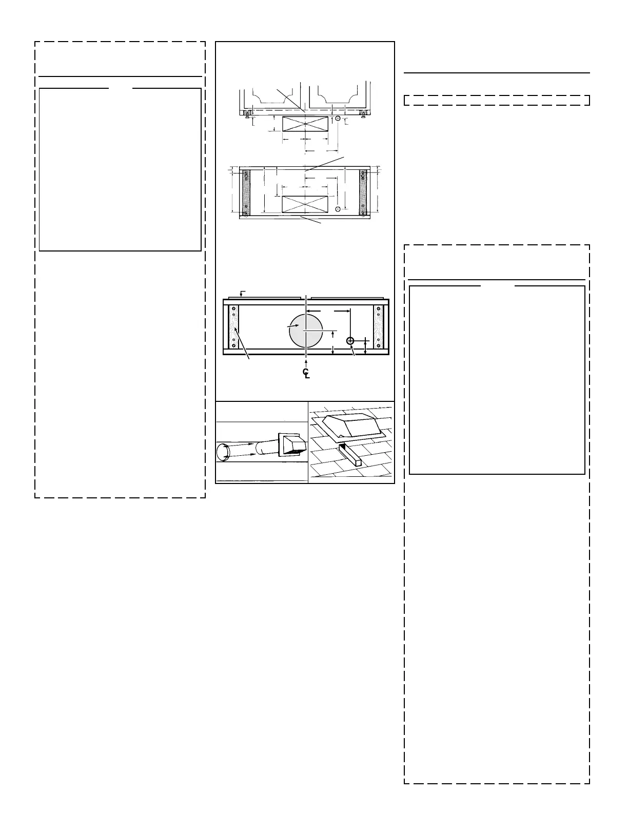
FIG. 8
FRONT OF CABINET
PARTE FRONTAL DEL
GABINETE
VERTICAL DUCTING AND WIRING
(Through Cabinet Bottom)
DUCTOS Y ALAMBRES PARA CONEXION VERTICAL (A
través de la parte inferior del gabinete)
CABINET BOTTOM
PARTE INFERIOR DEL
GABINETE
BACK WALL
PARED TRASERA
FIG. 9
WALL CAP
TAPA DE PARED
INSTALLING THE
DUCTWORK
NOTE
THESE INSTRUCTIONS WILL FOLLOW THE
PLANS MADE ON PAGE 2. START AT THE EX-
TERIOR AND RUN THE DUCT BACK TO THE
RANGE HOOD.
FOR BEST PERFORMANCE OF YOUR RANGE
HOOD, USE THE SHORTEST POSSIBLE DUCT
RUN AND A MINIMUM NUMBER OF ELBOWS.
NEVER VENT A RANGE HOOD INTO AN AT-
TIC SPACE BECAUSE A BUILDUP OF
GREASE WILL BECOME A FIRE HAZARD.
USE ONLY METAL DUCTWORK (DO NOT USE
PLASTIC DUCT). ASSEMBLE SECURELY SO
THAT IN CASE OF A GREASE FIRE ON THE
RANGE, THE FIRE WILL BE CONTAINED IN-
SIDE METAL DUCT WORK.
IT IS A GOOD PRACTICE TO TAPE ALL DUCT
CONNECTIONS, MAKING THEM BOTH SE-
CURE AND AIR TIGHT.
15.Follow appropriate directions below for type of
duct work you are installing:
WALL CAPS (FIG. 9)
Use a saber saw to cut a hole slightly larger than
duct so duct will line up easily with hood. Install
casing strips on outside walls finished in siding.
Assemble the duct work and tape all joints. Run
duct work back to hood. Fasten wall cap to last
section of duct and nail or screw cap to wall. Seal
all around flange on wall cap with caulking com-
pound. Make sure that enough duct runs into the
room so that the duct will overlap the damper/duct
connector by 3/4" when the hood is installed.
ROOF CAPS
Cut hole in roof slightly larger than duct so duct
will line up easily with hood. Trim shingles around
hole so that they will fit snugly around hood of cap
when cap is installed. Assemble the duct work and
tape all joints. Run the duct work down to hood.
Trim duct parallel to roof pitch, leaving 3/4" of duct
projecting above roof. Seal all around duct with
roof cement.
Install roof cap, inserting back edge of cap under
shingles. Seal around cap with roof cement and
seal all nail heads and shingles which were cut or
lifted.
Make sure that enough duct runs into the room so
that the duct will overlap the damper/duct connec-
tor by 3/4" when the hood is put into place.
3/8"
3-7/8"
HORIZONTAL DUCTING AND
WIRING (Through Wall)
DUCTOS Y ALAMBRES PARA CONEXION
HORIZONTAL (A través de la pared)
5-1/4"
5-1/4"
7-1/2"
1/8"
3/4"
1-1/2"
1-1/2"
9"
10-5/8"
6-7/8"
7-1/2"
5-1/4"
5-1/4"
9-7/8"
9"
CABINET FRONT / FRENTE DEL GABINETE
CABINET BOTTOM
FONDO DEL GABINETE
7½"
2"
5"
WOOD SHIMS
(recessed-bottom cabinets only)
CUÑAS DE MADERA
(sólo gabinetes de fondo empotrado)
ELECTRICAL ACCESS HOLE
(in cabinet bottom)
ORIFICIO DE ACCESO PARA
LOS CABLES ELÉCTRICOS
(en el fondo del gabinete)
8" DIA. ACCESS HOLE
ORIFICIO DE ACCESO
8" DE DIÁ.
3-1/4” x 10” DUCT
DUCTO DE 3-1/4” x 10”
7” ROUND DUCT
DUCTO REDONDO DE 7”
PREPARANDO LA UBICACION
DE LA INSTALACION (CONT.)
10.Mida y marque lo siguiente (FIG. 7 & 8):
a) Abertura para la línea eléctrica
b) Abertura para el ducto
11.Perfore cuatro huecos pilotos en las esquinas ya
marcadas de la abertura para el ducto como se
muestra y luego corte un abertura con un serrucho
sable o un serrucho para cerradura.
12.Usese una broca de 1-1/4" para perforar una abertura
para la conexión eléctrica en la pared o gabinete.
13.Sostenga al extractor debajo de la parte inferior del
gabinete y trace las ranuras en forma de hueco de
cerradura en la parte inferior del gabinete donde se
instalarán las tiras de madera.
14.Atornille cuatro de los tornillos de madera de 7/8" para
montar el extractor en el centro exacto de la parte
estrecha de la ranuras en forma de cerradura que se
marcaron debajo del gabinete. Permita que 3/8" de
los tornillos queden afuera, para que luego pueda
instalarse al extractor en su sitio.

Related product manuals