EasyManua.ls Logo

Brother HL-2270DW - Page 171

Brother HL-2270DW
181 pages
To Next Page IconTo Next Page
To Next Page IconTo Next Page
To Previous Page IconTo Previous Page
To Previous Page IconTo Previous Page
Loading...
6-4
Confidential
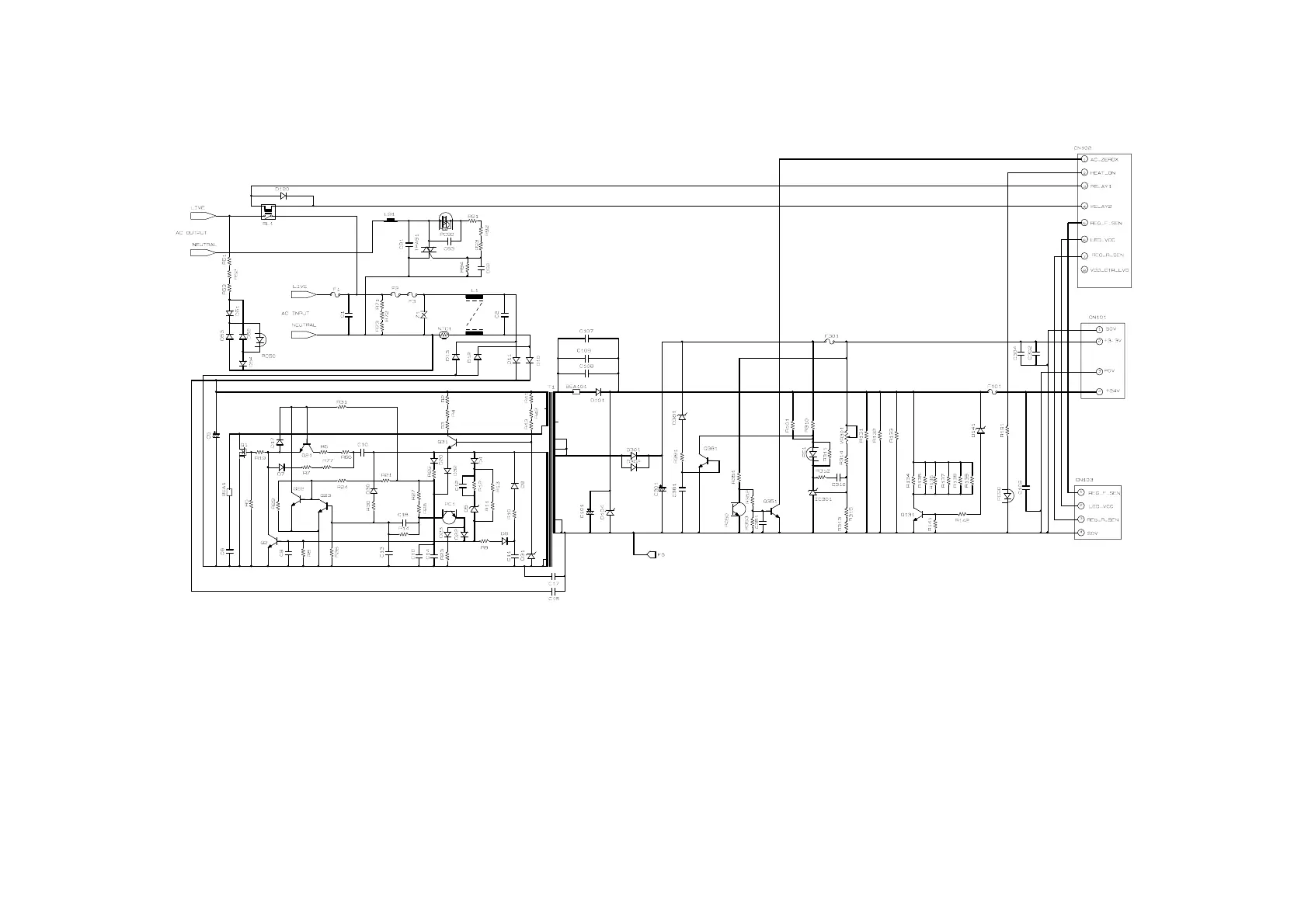
Low Voltage Power Supply PCB Circuit Diagram (115V) MPW3052 (MURATA)

Table of Contents

Other manuals for Brother HL-2270DW

Related product manuals