EasyManua.ls Logo

Bryant 558D - Page 8

Bryant 558D
40 pages
Print Icon
To Next Page IconTo Next Page
To Next Page IconTo Next Page
To Previous Page IconTo Previous Page
To Previous Page IconTo Previous Page
Loading...
The field-supplied disconnect switch box may be mounted on
the unit’s end panel or on the corner post. Mount disconnect
box on the left side of the rating plate when mounting on the
unit’s end panel. Do not mount the disconnect box over the
unit rating plate. When mounting disconnect box on corner
post, secure disconnect box to corner post and condenser coil
top cover. See Fig. 12.
A disconnect box mounting space is available when an op-
tional or accessory condenser coil grille is used. Mount the
disconnect on the sheet metal provided with the condenser
coil grille. The sheet metal is located adjacent to the corner
post on the left side of the power wiring access panel.
Install field wiring as follows:
1. Connect ground lead to chassis ground connection when
using separate ground wire.
2. Install conduit between disconnect and power wiring ac-
cess panel. Insert conduit through power supply knock-
out opening. See Fig. 12.
3. Install power lines to power wiring leads.
4. Pigtails are provided for field power connections and are
located inside the power wiring access panel. See
Fig. 11. Use factory-supplied splices or Underwriters’Labo-
ratories (UL) approved copper connector.
Voltage to compressor terminals during operation must
be within voltage range indicated on unit nameplate (see
Table 2). On 3-phase units, voltages between phases must be
balanced within 2% and the current within 10%. Use the for-
mula shown in the legend for Table 2, Note 2 to determine
the percent of voltage imbalance. Operation on improper line
voltage or excessive phase imbalance constitutes abuse and
may cause damage to electrical components. Such operation
would invalidate any applicable warranty.
Special Procedures for 208-V Operation
DANGER: Make sure that the power supply to the
unit is switched OFF before making any wiring changes.
Electrical shock can cause personal injury or death.
For operation on 208 v, disconnect the transformer primary
orange lead from the contactor. See the unit wiring label. Re-
move the tape and cover from the terminal on the end of the
transformer primary red lead. Save the cover. Connect the
red lead to the contactor terminal from which the orange lead
was disconnected.
Using the cover removed from the red lead, insulate the loose
terminal on the orange lead. Wrap the cover with electrical
tape so that the metal terminal cannot be seen.
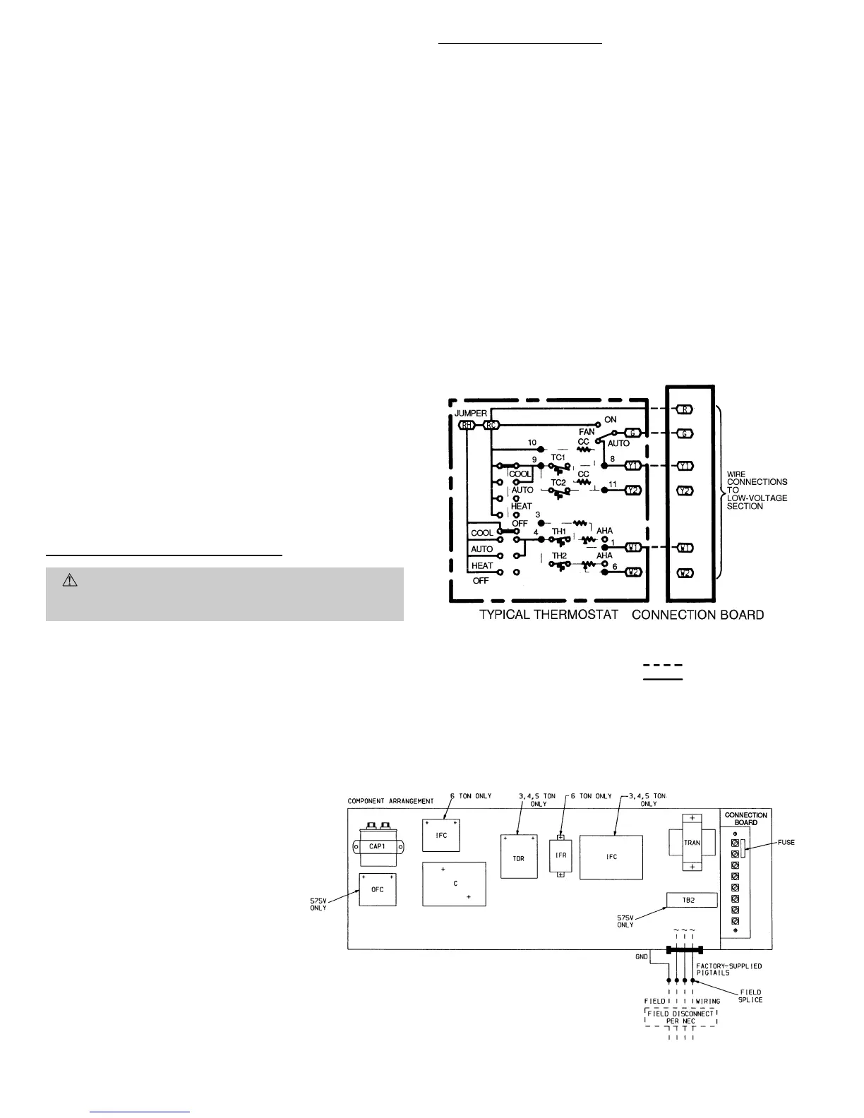
Control Voltage Connection
Install a factory-approved room thermostat. Locate the ther-
mostat on an inside wall in the space to be conditioned where
it will not be subjected to either a cooling or heating source
or direct exposure to sunlight. Mount the thermostat 4 to 5 ft
above the floor. See accessory installation instructions.
NOTE: For wire runs up to 50 ft, use number 18 AWG insu-
lated wire (35 C minimum). For 51 to 75 ft, use number 16
AWG insulated wire (35 C minimum). For 76 to 150 ft, use
number 14AWG insulated wire (35 C minimum).All wire larger
than number 18AWG cannot be connected directly to the ther-
mostat and will require a junction box and splice at the
thermostat.
Feed control wires through the raceway located between the
condenser coil top cover and power wiring access panel. See
Fig. 12. Connect control wires to the low-voltage connections
located inside low-voltage access panel. See Fig. 10, 11, and
13 for connections. The barrier provides the UL required clear-
ance between high- and low-voltage wiring.
NOTE: If thru-the-bottom power connections are used refer
to the accessory installation instructions for information on
power wiring. Refer to Fig. 2 for drilling holes in basepan.
LEGEND
AHA Adjustable Heat Anticipator
CC Cooling Compensator
TC Thermostat-Cooling
TH Thermostat-Heating
Field Wiring
Factory Wiring
NOTES:
1. The Y2 wiring is connected when an economizer is used.
2. Connect W1 when unit is equipped with an accessory 1-module heater
package. The W2 wiring is connected when unit is equipped with an
accessory 2-module heater package.
Fig. 11 Low-Voltage Connections
LEGEND
C—Contactor
CAP Capacitor
GND Ground
IFC Indoor (Evaporator) Fan Contactor
IFR Indoor (Evaporator) Fan Relay
NEC National Electrical Code
OFC Outdoor (Condenser) Fan Contactor
TB Terminal Block
TDR Time-Delay Relay
TRAN Transformer
Fig. 10 Field Wiring Connections
—8—

Other manuals for Bryant 558D

Related product manuals