EasyManua.ls Logo

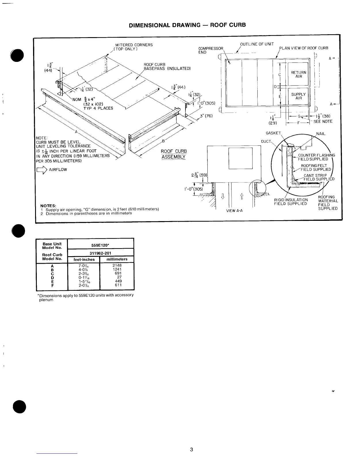
Bryant 559E - Roof Curb Dimensional Drawing

Bryant 559E
8 pages
Print Icon
To Next Page IconTo Next Page
To Next Page IconTo Next Page
To Previous Page IconTo Previous Page
To Previous Page IconTo Previous Page
Loading...

Related product manuals