EasyManua.ls Logo

Bticino 310913 - Page 18

Bticino 310913
60 pages
Print Icon
To Next Page IconTo Next Page
To Next Page IconTo Next Page
To Previous Page IconTo Previous Page
To Previous Page IconTo Previous Page
Loading...
18
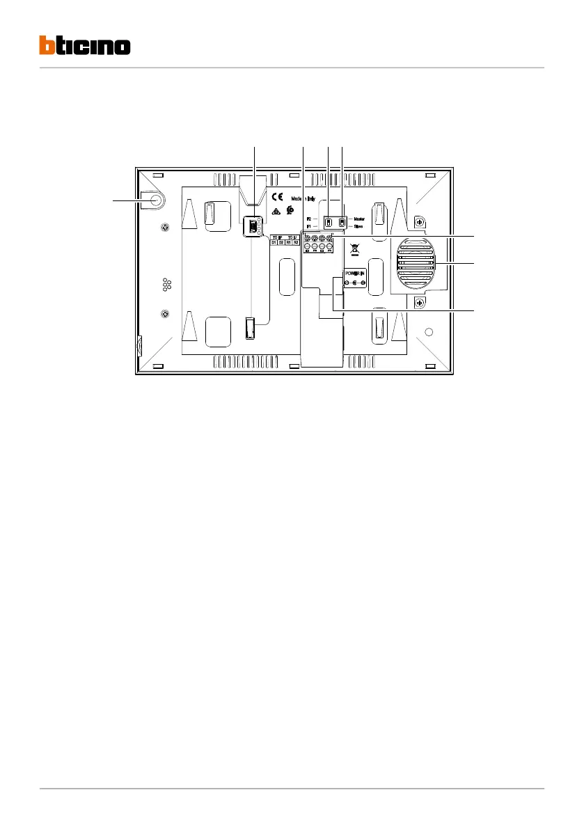
1 - Microfono
2 - Presa mini USB per aggiornamento Firmware
dispositivo
3 - Morsetti di collegamento rimovibili D1 - D2
collegamento posto esterno o posto interno
precedente
4 - Microinterruttore famiglia 1 / famiglia 2
5 - Microinterruttore Master / Slave
6 - Morsetti di collegamento rimovibili
R1 - R2 collegamento posto interno aggiuntivo
7 - Altoparlante
8 - Alimentazione 30 Vdc – 30 W
7
1
2 4 53
8
6
1 - Micrófono
2 - Toma mini USB para actualización del firmware
del dispositivo
3 - Bornes de conexión amovibles
D1 - D2 conexión placa exterior o unidad interior
precedente
4 - Microinterruptor familia 1 / familia 2
5 - Microinterruptor Master / Slave
6 - Bornes de conexión amovibles
R1 - R2 conexión unidad interior adicional
7 - Altavoz
8 - Alimentación 30 Vdc – 30 W
1 - Microphone
2 - Mini USB socket for device Firmware update
3 - D1 - D2 removable connection clamps for
connection of the entrance panel or previous
internal unit
4 - Micro switch for family 1 / family 2
5 - Master / Slave micro switch
6 - R1 - R2 removable connection clamps for
connection of the additional internal unit
7 - Speaker
8 - 30 Vdc – 30 W power supply
1 - Μικρόφωνο
2 - Μίνι βύσμα USB για να ενημερώσετε το
υλικολογισμικό της συσκευής
3 - Αφαιρούμενοι ακροδέκτες σύνδεσης D1 - D2
προηγούμενη σύνδεση εξωτερικής ή εσωτερικής
θέσης
4 - Μικροδιακόπτης οικογένεια 1 / οικογένεια 2
5 - Μικροδιακόπτης Master / Slave
6 - Αφαιρούμενοι ακροδέκτες σύνδεσης R1 - R2
πρόσθετη εσωτερική σύνδεση σταθμού
7 - Ηχείο
8 - 30 Vdc – 30 W τροφοδοτικό 30W

Table of Contents

Related product manuals