EasyManua.ls Logo

Bticino 367221 - Page 8

Bticino 367221
28 pages
Print Icon
To Next Page IconTo Next Page
To Next Page IconTo Next Page
To Previous Page IconTo Previous Page
To Previous Page IconTo Previous Page
Loading...
8
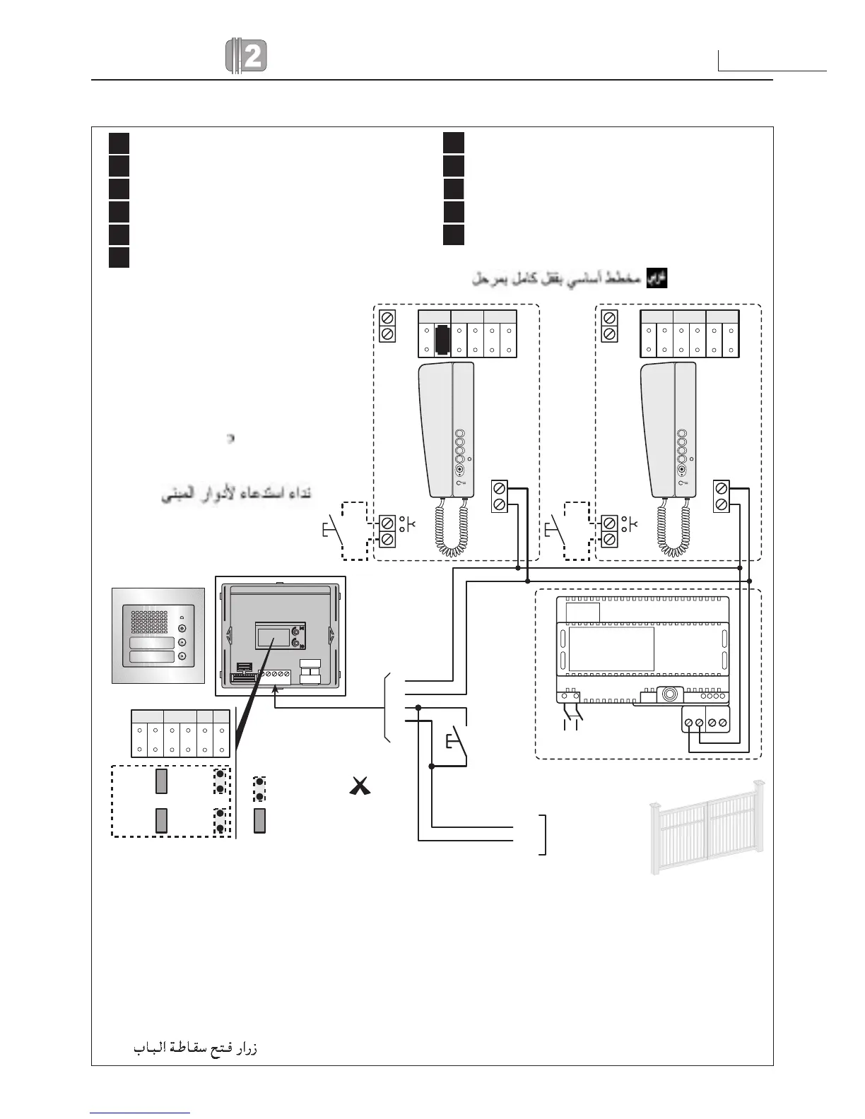
Audio-Kit
1 2
BUS S+ S-PL
12BUS
BUS
ET
1
5
BUS
PL
S+
S-
A
346000
230Va.c.
B1
3
2
1
BUS
ET
1
5
B2
3
2
1
N
P
MOD
N
P
MOD
1
2
1
NO
C
JMP 3
JMP
4
JMP
1
JMP
2
= jumper OUT
= jumper IN
N
P T
S
8A cosϕ = 1
24Vd.c. / 24Va.c.
B1+B2= Chiamata al piano
Etagenruf
Appel à l’étage
Floor call
Llamada al piso
Oproep aan verdieping
Chamada ao piso
Klçsh ston òrofo
Dspjd yf nf;
Katta arama
Wywo∏anie na pi´trze
A= Pulsante apertura serratura
Schalter Türöffner
Poussoir d’ouverture serrure
Door lock pushbutton
Pulsador apertura cerradura
Drukknop opening
Botão para abertura do trinco
Koympì anoìgmatoz kleidariàz
Ryjgrf jnrhsnbz pfvrf
Kapı kilidi açma dü¤mesi
Przycisk otwarcia zamka
Schema base con serratura a relé
Übersichtszeichnung mit einem Schloss mit Relais
Schéma de base avec serrure à relais
Basic diagram
Esquema básico con cerradura de relé
Basisschema met slot met relais
I
NL
F
GB
E
D
GR
P
RU
TR
PL
Esquema de base com fechadura com relé
Hlektrikò diàgramma me kleidarià me relé
<fpjdfz c[tvf c htktqysv pfvrjv
Röle kilitli temel flema
Schemat podstawowy z przekaênikowym
zamykaniem drzwi

Related product manuals