EasyManua.ls Logo

Bticino Audio Kit - Page 10

Bticino Audio Kit
40 pages
Print Icon
To Next Page IconTo Next Page
To Next Page IconTo Next Page
To Previous Page IconTo Previous Page
To Previous Page IconTo Previous Page
Loading...
10
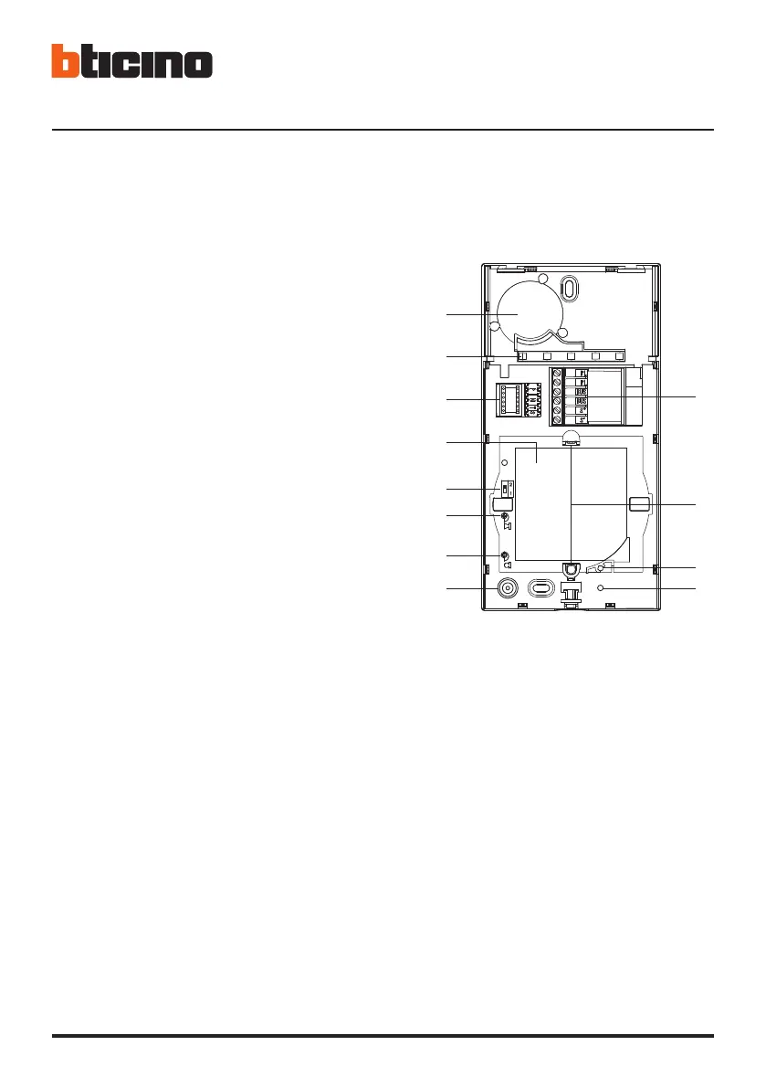
• Posto esterno
• Entrance panel
• Poste extérieur
• Türstation
• Placa exterior
• Externe plaats
• Unidade externa
1
2
3
4
12
11
10
9
8
7
6
5
1 - Morsetti di collegamento
2 - Pulsanti di chiamata
3 - LED connessione attiva
4 - LED indicazione porta aperta
5 - Microfono
6 - Regolazione microfono
7 - Regolazione altoparlante
8 - Switch mono/bifamiliare
9 - Pannello LED per illuminazione pulsante di
chiamata
10 - Sede dei configuratori
11 - Sensore di luminosità per retroilluminazione
notturna
12 - Altoparlante
1 - Bornes de branchement
2 - Boutons d’appel
3 - Voyant connexion active
4 - Voyant indication porte ouverte
5 - Micro
6 - Réglage micro
7 - Réglage haut-parleur
8 - Commutateur mono/bi-familial
9 - Panneau Voyant d’éclairage bouton d’appel
10 - Logement des configurateurs
11 - Capteur de luminosité pour rétro-éclairage
nocturne
12 - Haut-parleur
1 - Connection clamp
2 - Call pushbuttons
3 - Active connection LED
4 - Open door notification LED
5 - Microphone
6 - Microphone adjustment
7 - Loudspeaker adjustment
8 - One-family/two-family switch
9 - LED panel for call pushbutton lighting
10 - Configurator socket
11 - Brightness sensor for night backlighting
12 - Loudspeaker