EasyManua.ls Logo

Bühler technologies P1.1 - Electrical Connection Safety

Bühler technologies P1.1
Print Icon
To Next Page IconTo Next Page
To Next Page IconTo Next Page
To Previous Page IconTo Previous Page
To Previous Page IconTo Previous Page
Loading...
P1.1, P1.1E
A switch or circuit breaker (in accordance with IEC60947-1 and
IEC60947-3) is to be provided. This must be organized to be
easily accessible for the operator. The switch must be labelled
as an isolating device for the unit. It must not be inserted into
a mains power line or interrupt the protective conductor. Fur-
thermore, the switch must separate the sample gas pump
from the live parts for all the poles.
The sample gas pump must be secured against unacceptable
excessive warming by using a suitable overload protection
(motor protection circuit breaker). Sample gas pumps with a
BLDC motor have already integrated protection against ex-
cessive warming in the motor electronics.
Observe the rated current for the protective switch (230V =
0,48A, 115V = 0,84A, 12VDC = 1,55A, 24VDC = 0,8A).
Make sure that mains voltage
and
frequency meet the spe-
cifications of the motor (voltage tolerance ± 5% and frequency
tolerance ±2%.)
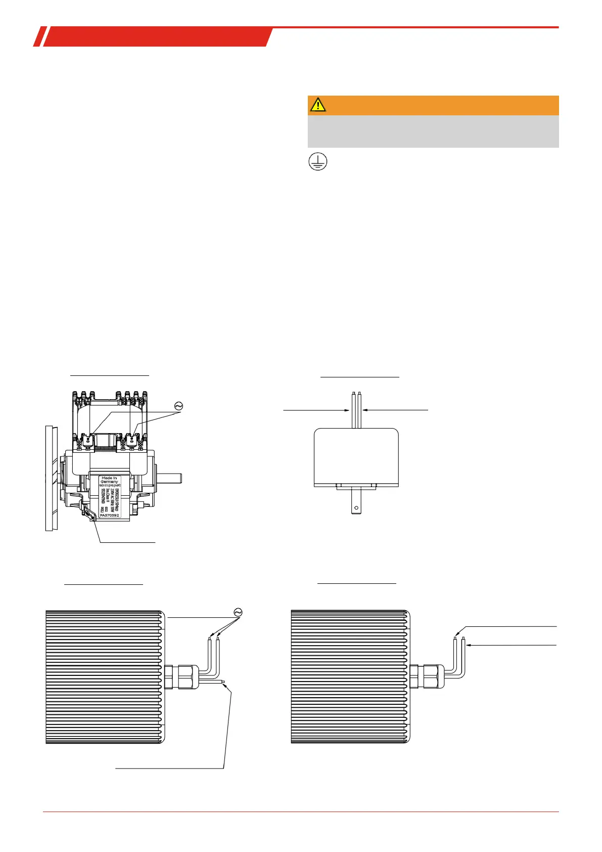
The electrical connection of type P1.1 is made with the help of
flat connectors size 6,3mm.
Sample gas pumps of type P1.1 (12VDC/24VDC) and P1.1E (all
voltages) are delivered as standard with a 3m connecting
cable.
If your sample gas pump has a factory-installed on/off switch
on the housing (only P1.1E), verify it is set to the zero position
before connecting to power.
WARNING
Hazardous electrical voltage
The On/Off switch does not ensure switching off all poles.
It is essential to connect the protective earth conductor
to the marked protection earth terminal. At model P1.1E
(115V/230V) the protective earth has to be connected to the
green/yellow wire of the connection cable (see Fig. Electrical
connection P1.1 pumps).
Select mains and protection earth cross section according to
the rated current.
For the electrical connections especially for the protective con-
ductor use a cable cross-section from minimum 0,75mm
2
.
Obey differing specifications on the type plate. The conditions
at the installation site must meet all specifications on the type
plate.
All parts under voltage must be protected through appropri-
ate measures against contact by persons or foreign body pro-
cedures.
red = + 12 V/24 V
blue = - 12 V/24 V
AC
black = AC
P1.1 115 V/230 V
P1.1E 12 V/24 V
P1.1 12 V/24 V
P1.1E 115 V/230 V
blue = - 12 V/24 V
brown = + 12 V/24 V
green/yellow = protection earth
protection earth
Fig.1: Electrical connection P1.1 pumps
8 Bühler Technologies GmbH BX420020 ◦ 03/2020

Table of Contents

Related product manuals