EasyManua.ls Logo

BullFrog A6 - Page 59

Default Icon
72 pages
Print Icon
To Next Page IconTo Next Page
To Next Page IconTo Next Page
To Previous Page IconTo Previous Page
To Previous Page IconTo Previous Page
Loading...
58
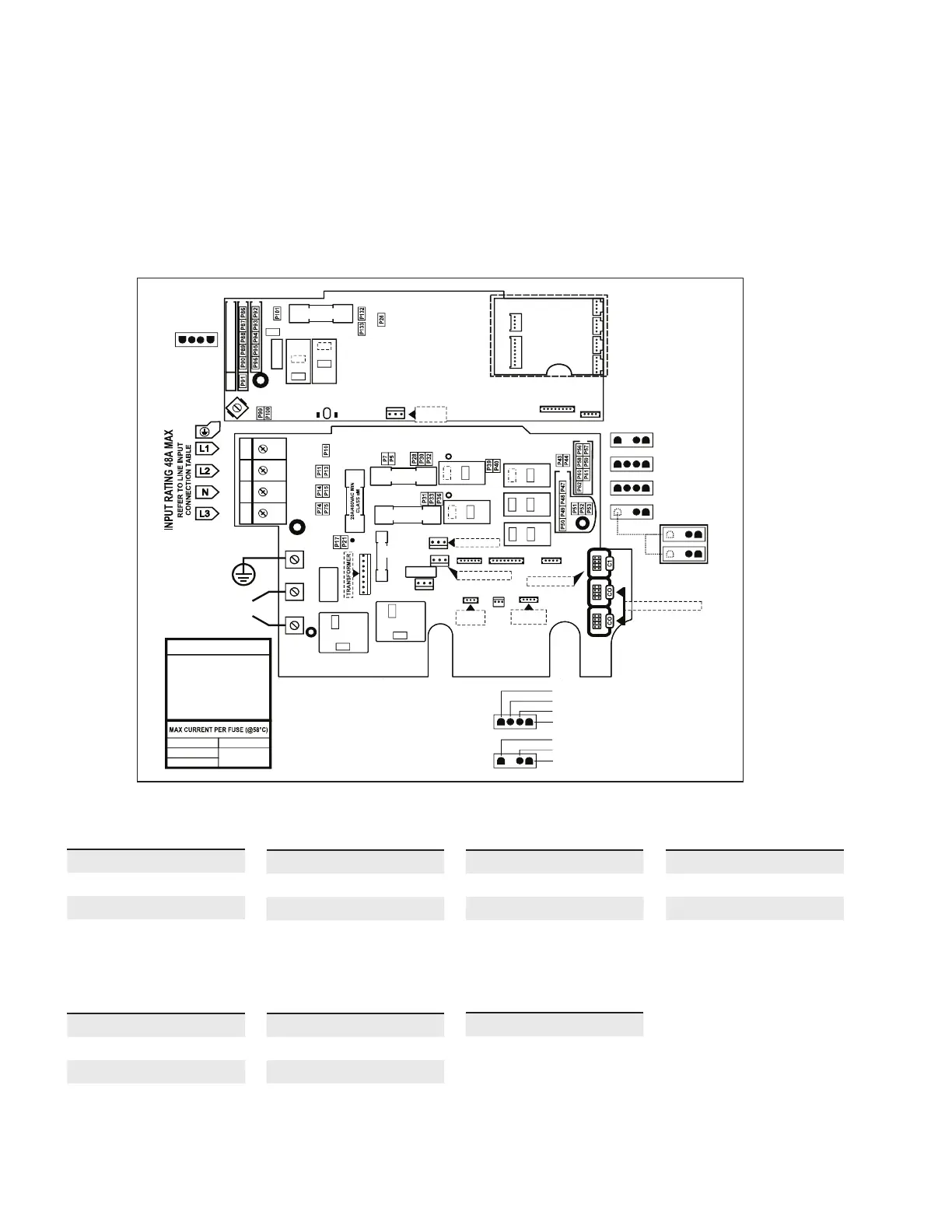
For the connection to the 0.250 inch (6mm) terminals, the high voltage accessories must be provided with female quick
connect terminals, straight and non-insulated for all types of connections, including the ground. Only 230 V accessories
may be connected to the corresponding terminals of the printed circuit of the in.yt. Refer to the following tables for
correct connections. Note that all female terminals must be correctly and completely seated on the printed circuit
terminals for proper current ratings.
Pump 1 (A3)
Voltage 230 V
Green / ground G
Black / low speed K2
Red / high speed K1
White / common N
Direct (A4)
Voltage 230 V
Green / ground G
Black / line K26
White / common N
Light (C2)
Voltage 230 V
Green / ground G
Red / line K22
White / common N
Pump 2 (C2)
Voltage 230 V
Green / ground G
Black / low speed K23
Red / high speed K22
White / common N
Circulation pump (A2)
Voltage 230 V
Green / ground G
Red / line K6
White / common N
Ozonator (A1)
Voltage 230 V
Green / ground G
Black / line K4
White / common N
Light (12 V AC, 1A Max.)
Always on P34
Relay P35
Light (12 V AC, 1A Max.)
Always on P34
Relay P35
A3
A4
A1
A2
C2
- USE ONLY SAME TYPE
AND RATING OF FUSE
- UTILISER SEULEMENT
LE MÊME TYPE DE
FUSIBLE, DU MÊME
COURANT NOMINAL
WARNING
OPTIONAL
PP1 SPLITTER
F2 : 20A MAX
F3 : 20A MAX
F1 : 20A MAX
F21 : 20A MAX
HEATER
CONNEXION
HEATER
GROUND
HIGH SPEED (RED)
LOW SPEED (BLACK)
COMMON (WHITE)
GROUND (GREEN)
LIVE (BLACK)
COMMON (WHITE)
GROUND (GREEN)
P4
P3
P5
P6
P7
P8
P113
P112
P108
F21
20A/400VAC MIN
CLASS aM
K22
P
Y G
P97
K23
P
P34
K21
P98
X
P116
RELAY
SUPPLY
K1
K3
K2
K4
K6
K5
K9
K10
P37
P34
P6
P2
P3
P4
P8
P29
P41
P45
P35
F2
20A/400VAC MIN
CLASS aM
20A/400VAC MIN
CLASS aM
F3
F1
F4
1
2
3
4
250mA/250VAC
3AG SLOW-BLO
P
P
P
P
P
C
C
P22
P76
K8
P
P
COMMUNICATION LINKS
COMMUNICATION LINKS
MAIN KEYPAD
G
N
P55
P19
LIGHT, SWITCHED
P83
LIGHT, DIRECT
P66
P38
HL & TEMP.
PROBE
P42
IN.FLO
SENSOR
(yt7)
IMPORTANT: See electrical connection and jumper set up on page 47-49 for 1, 2, 3 phase connections.
NOTE: e model A9L will operate with various electrical congurations, however, certain set ups may result in operation
limitations. Setups that use three 16A circuits or two 20A circuit are preferred. Alternatively a setup using two 16A circuits can
be used with the A9L, however some minor performance dierences will occur, contact your dealer for details.

Other manuals for BullFrog A6

Related product manuals