EasyManua.ls Logo

Bunn JDF-2 - Page 30

Bunn JDF-2
32 pages
Print Icon
To Next Page IconTo Next Page
To Next Page IconTo Next Page
To Previous Page IconTo Previous Page
To Previous Page IconTo Previous Page
Loading...
30
38310 010406
J3-1
J3-2
J1-1
J1-5
J1-10
C
O
N
T
R
O
L
P
C
B
O
A
R
D
J1-18
J7-1
J7-5
J7-10
J7-16
J8-1
J8-8
J6-1
J6-6
J6-12
SOL
#2 DISPENSE
RED/BLK
WHI/ORN
SOL
#1 DISPENSE
#2 RINSE &
DISPENSE LIMIT
#1 RINSE &
DISPENSE LIMIT
RED/BLK
WHI/VIO
WHI/VIO
ORN
WHI/ORN
J5-1
J5-5
J5-10
J5-15
J5-19
VIO
J4-1
J4-5
J4-10
J4-14
J9-1
J9-6
1
8
1 12
VIO
WHI/ORN
WHI/VIO
GRY
RED
WHT/VIO
WHI/VIO
GRY
WHI/ORN
RED
RED
ORN
VIO
ORN
RED
RED
GRY
WHI/VIO
WHI/VIO
VIO
ORN
GRY
GRN
BLK
BLK
WHI/VIO
WHI/ORN
WHI/ORN
WHI/ORN
RED/BLK RED/BLK
VIO
ORN
VIO
ORN
VIO
ORN
RED
GRY
BLU
YEL
WHI/ORN
WHI/VIO
WHI/ORN
WHI/VIO
VIO
ORN
RED
GRY
WHI/VIO
WHI/ORN
PUMP
#1
PUMP
#2
GRN
RED
BLK
GRN
RED
BLK
#1 REFILL
SENSOR
#2 REFILL
SENSOR
DISPENSE
RINSE
DISPENSE
RINSE
1 1
WHI/ORN
WHI/VIO
GRY
GRY
RED
RED
1 1
WHI/ORN
SPEED
SENSOR #2
RED
BLK
GRN
SPEED
SENSOR #1
RED
BLK
GRN
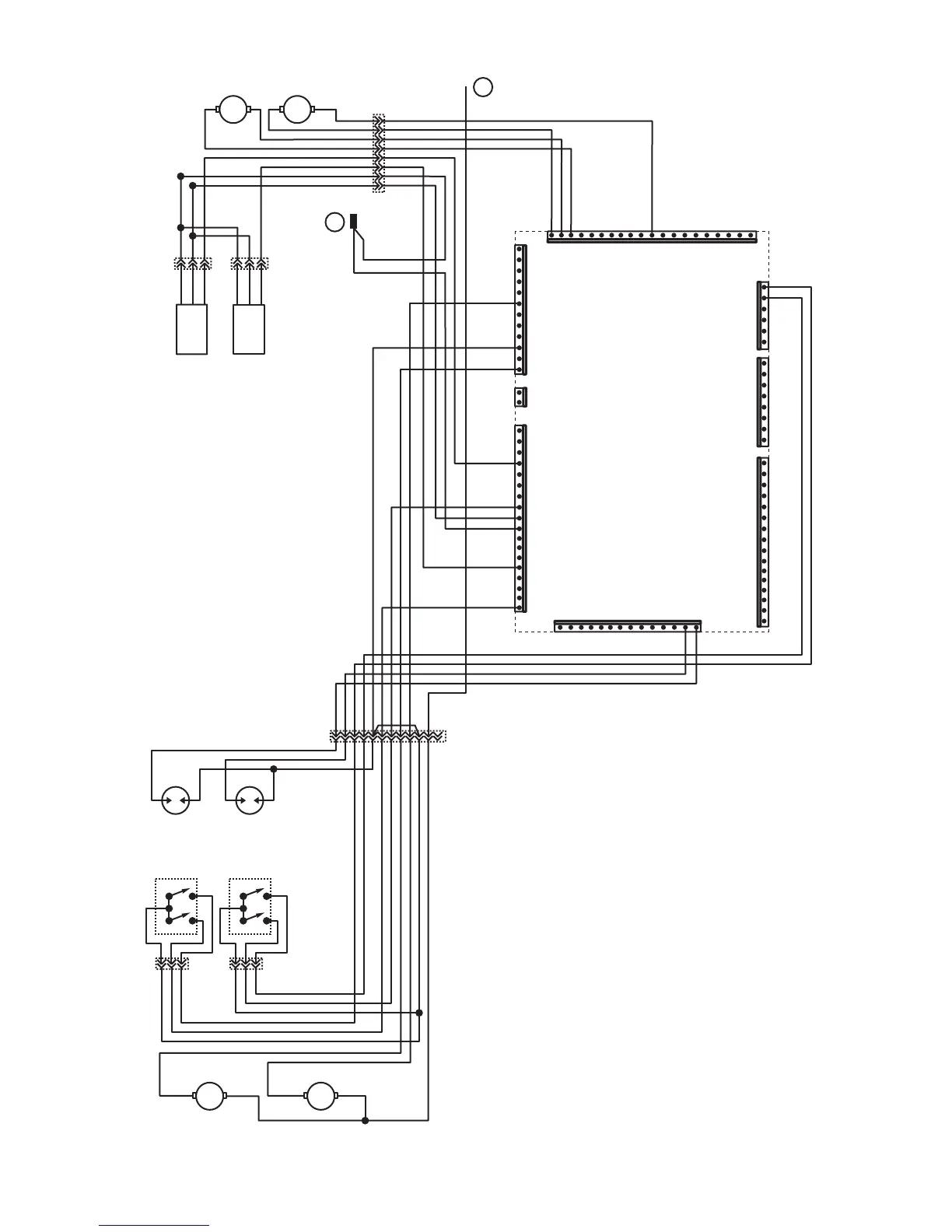
SCHEMATIC WIRING DIAGRAM
JDF-2 DISPENSE DECK CIRCUIT
+
24 VDC
30-120 VDC
24 VDC INPUT,
0/5 VDC SWITCHING OUTPUT
24 VDC
A
B