EasyManua.ls Logo

Cafe CGE29DP2TCS1 - Refrigerator Installation Clearances and Dimensions; Required Installation Clearances

Cafe CGE29DP2TCS1
133 pages
Print Icon
To Next Page IconTo Next Page
To Next Page IconTo Next Page
To Previous Page IconTo Previous Page
To Previous Page IconTo Previous Page
Loading...
49-1000712 Rev. 0 21
Installation Instructions
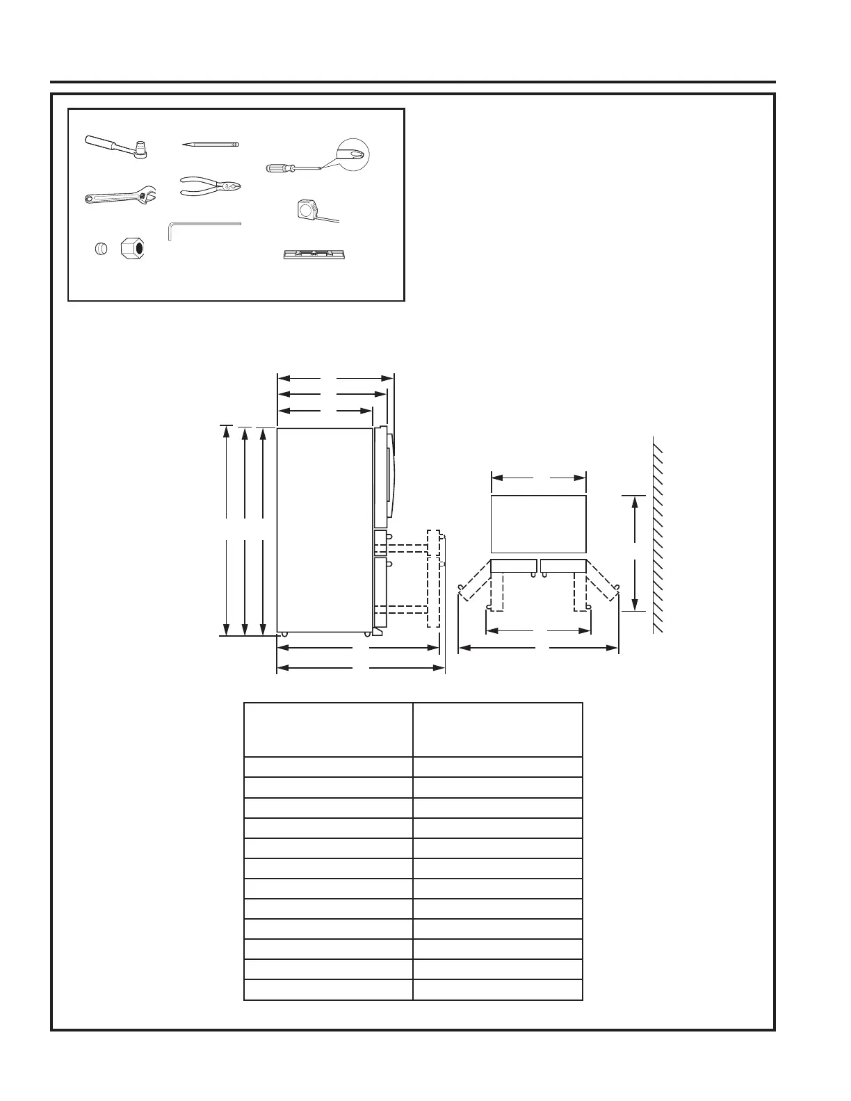
INSTALLATION INSTRUCTIONS
Using the chart below to determine if passageways
can accommodate the width of the refrigerator.
Use a padded hand truck or moving straps to move
this refrigerator. Place the hand truck to the side of
the refrigerator.
We strongly recommend the refrigerator be moved
by two people.
Leave tape, film, and other packaging on the
refrigerator until in it’s final location.
Refer to sections 2 through 5 for handle, door,
and drawer removal if needed. Otherwise, skip to
section 6.
Consider recycling options for your appliance
packaging material.
NOTE: It is recommended that the floor be protected with
a plastic covering throughout the installation process.
NOTE: Not recommended for installation on carpeted
flooring.
TOOLS YOU MAY NEED
Level
Adjustable Wrench
1/4” Outer Diameter
Compression Nut
and Ferrule (sleeve)
Phillips-Head Screwdriver
5/16” or 8mm
Socket Wrench
1/8” (included), 3/16”, and
1/4” Allen Wrenches
Pencil
Tape Measure
Pliers
X
D
H
E
F
Y
CBA
I
J
G
CLEARANCES
Allow the following
clearances for
ease of installation,
proper air circulation
and plumbing and
electrical connections.
Sides 1/8” (3 mm)
Top 1” (25 mm)
Back 2” (50 mm)
Full Depth
unit dimensions
Full Depth
Glass door
unit dimensions
A = 70” (1775mm) A = 70” (1775mm)
B = 69-13/16” (1773mm) B = 69-13/16” (1772mm)
C = 68-5/8” (1743mm) C = 68-5/8” (1743mm)
D = 29-1/2” (749 mm) D = 29-1/2” (749 mm)
E = 34-1/4” (870m) E = 34.0” (864mm)
F = 36-1/2” (927mm) F = 34.0” (864mm)
G = 48-3/8” (1229mm) G = 48-3/8” (1229mm)
H = 35-5/8” (905mm) H = 35-5/8” (905mm)
I = 44-3/8” (1127mm) I = 39-1/2” (1003mm)
J = 60-3/8” (1534mm) J = 59-1/4” (1505mm)
X = 53-17/32” (1360mm) X = 53-9/32” (1353mm)
Y = 55-3/4” (1416mm) Y = 53-9/32” (1353mm)

Related product manuals