EasyManua.ls Logo

Cafe CGE29DP2TCS1 - Page 66

Cafe CGE29DP2TCS1
133 pages
Print Icon
To Next Page IconTo Next Page
To Next Page IconTo Next Page
To Previous Page IconTo Previous Page
To Previous Page IconTo Previous Page
Loading...
49-1000712 Rev. 0 21
Instructions d’installation
INSTRUCTIONS D’INSTALLATION
En utilisant le tableau ci-dessous, déterminez si la largeur
de votre passage peut tenir compte de la profondeur du
réfrigérateur.
8WLOLVH]XQFKDULRWPDQXHOUHPERXUUpRXGHVVDQJOHVGH
déplacement pour déplacer le réfrigérateur. Placez le
réfrigérateur sur le chariot manuel avec un côté contre le
camion.
Nous recommandons vivement que deux personnes
déplacent et terminent cette installation.
Laissez le ruban, la pellicule et autre emballage sur le
réfrigérateur jusqu’à sa destination finale.
Reportez-vous aux sections 2 à 5 pour le retrait de la
poignée, de la porte et du tiroir si nécessaire. Autrement,
sautez à la section 6.
Considérez les options de recyclage pour les matériaux
d’emballage de votre appareil.
REMARQUE : On recommande de protéger le plancher à
l’aide d’un recouvrement plastique durant toute la procédure
d’installation.
REMARQUE : Non recommandé pour installation sur
plancher recouvert de moquette.
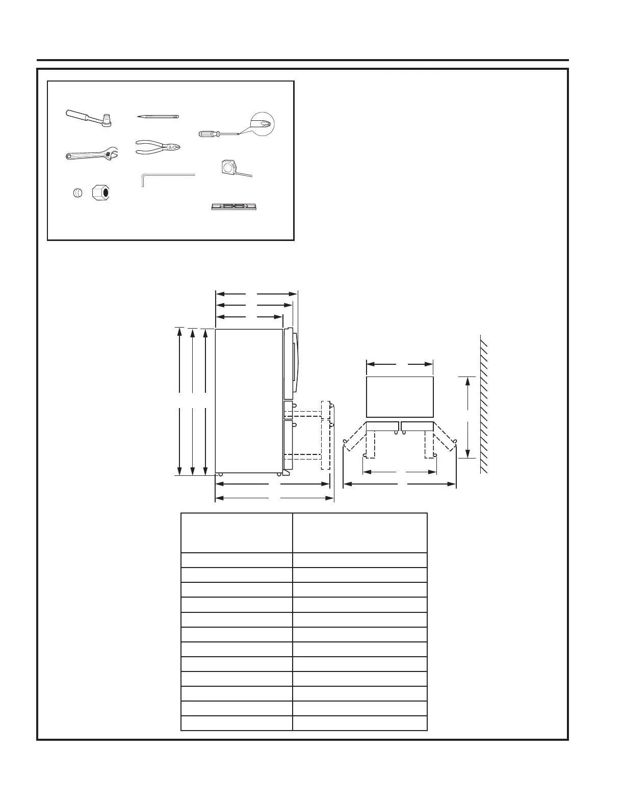
OUTILS DONT VOUS POURRIEZ AVOIR
BESOIN
Level
Clé à molette
Tournevis cruciforme pour écrou
de compression de 1/4 po de
diamètre extérieur et une bague
(manchon)
Tournevis cruciforme de
philips
Clé à douille de
5/16 po ou 8mm
Clés hexagonales 1/8”
(incluse), 3/16” et 1/4”
Crayon
Mètre
Pinces
X
D
H
E
F
Y
CBA
I
J
G
DÉGAGEMENTS
Prévoyez les dégagements
suivants pour faciliter
l’installation, la circulation
d’air et les raccordements
hydrauliques et électriques.
Côtés 1/8 po (3 mm)
Dessus 1 po (25mm)
Arrière 2 po (50 mm)
Dimensions de
l’appareil pleine
profondeur
Dimensions de l’appareil
pleine profondeur avec
porte en verre
A = 70” (1775mm) A = 70” (1775mm)
B = 69-13/16” (1773mm) B = 69-13/16” (1772mm)
C = 68-5/8” (1743mm) C = 68-5/8” (1743mm)
D = 29-1/2” (749 mm) D = 29-1/2” (749 mm)
E = 34-1/4” (870m) E = 34.0” (864mm)
F = 36-1/2” (927mm) F = 34.0” (864mm)
G = 48-3/8” (1229mm) G = 48-3/8” (1229mm)
+ ´PP + ´PP
I = 44-3/8” (1127mm) I = 39-1/2” (1003mm)
J = 60-3/8” (1534mm) J = 59-1/4” (1505mm)
X = 53-17/32” (1360mm) X = 53-9/32” (1353mm)
Y = 55-3/4” (1416mm) Y = 53-9/32” (1353mm)

Related product manuals