EasyManua.ls Logo

Cafe CGE29DP2TS1 - Page 110

Cafe CGE29DP2TS1
133 pages
Print Icon
To Next Page IconTo Next Page
To Next Page IconTo Next Page
To Previous Page IconTo Previous Page
To Previous Page IconTo Previous Page
Loading...
49-1000712 Rev. 0 21
Instrucciones de Instalación
INSTRUCCIONES DE INSTALACIÓN
Usando el siguiente cuadro, determine si el ancho de su
pasillo es suficiente para la profundidad del refrigerador.
Use un carro manual con almohadillas o correas móviles
para transportar el refrigerador. Coloque el refrigerador en
el carro manual, apoyando un costado contra este último.
Recomendamos enfáticamente que dos personas realicen
el traslado y completen la instalación.
Deje la cinta, la película y otros restos de embalaje en el
refrigerador hasta que éste se encuentre en su ubicación
final.
De ser necesario, consulte las secciones 2 a 5 en relación
al retiro de manijas, puertas y cajones. De otro modo,
pase a la sección 6.
Tenga en cuenta las opciones de reciclaje del material de
embalaje de su electrodoméstico.
NOTA: Se recomienda que el piso esté protegido por una
cobertura plástica a través del proceso de instalación.
NOTA: No recomendado para la instalación en pisos
alfombrados.
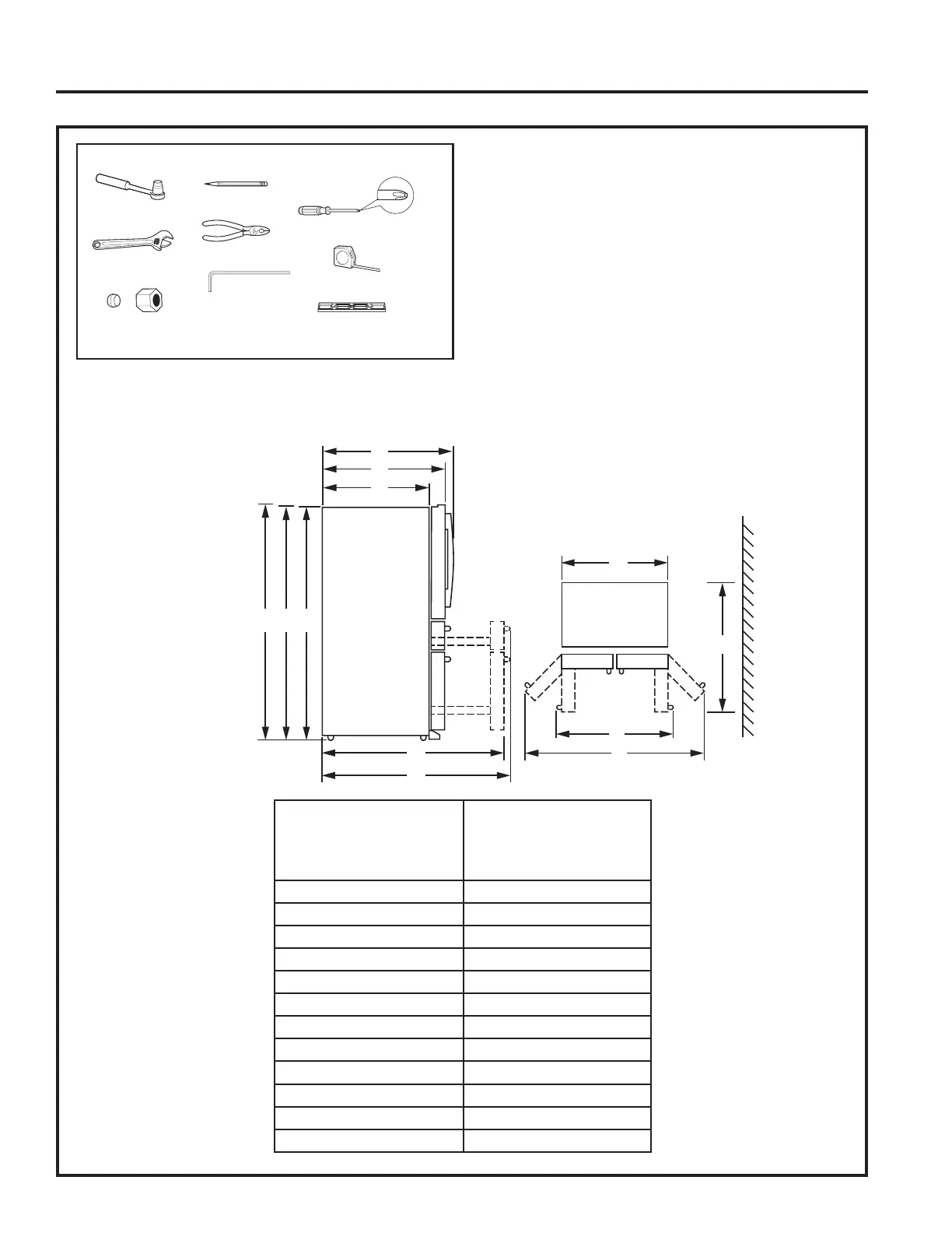
HERRAMIENTAS QUE PUEDE NECESITAR
Nivel
Llave Ajustable
Tuerca de Compresión
de Diámetro Externo
y Abrazadera de Refuerzo
(manga) de ¼”
Destornillador con Cabeza Phillips
Destornillador de 5/16”
o 8 mm
Llaves Allen de 1/8”
(incluida), 3/16” y 1/4”
Lápiz
Cinta Métrica
Pinzas
X
D
H
E
F
Y
CBA
I
J
G
ESPACIO
NECESARIO
Deje el siguiente espacio
para facilitar la instalación,
una adecuada circulación
de aire y plomería y
conexiones eléctricas.
Costados 1/8” (3 mm)
Parte superior 1” (25 mm)
Parte trasera 2” (50 mm)
Dimensiones de la
unidad de Profundidad
Completa
Dimensiones de la
unidad con puerta de
Vidrio de Profundidad
Completa
A = 70” (1775mm) A = 70” (1775mm)
B = 69-13/16” (1773mm) B = 69-13/16” (1772mm)
C = 68-5/8” (1743mm) C = 68-5/8” (1743mm)
D = 29-1/2” (749 mm) D = 29-1/2” (749 mm)
E = 34-1/4” (870m) E = 34.0” (864mm)
F = 36-1/2” (927mm) F = 34.0” (864mm)
G = 48-3/8” (1229mm) G = 48-3/8” (1229mm)
H = 35-5/8” (905mm) H = 35-5/8” (905mm)
I = 44-3/8” (1127mm) I = 39-1/2” (1003mm)
J = 60-3/8” (1534mm) J = 59-1/4” (1505mm)
X = 53-17/32” (1360mm) X = 53-9/32” (1353mm)
Y = 55-3/4” (1416mm) Y = 53-9/32” (1353mm)

Related product manuals