EasyManua.ls Logo

Cafe CWL112P4RW5 - Page 14

Cafe CWL112P4RW5
16 pages
Print Icon
To Next Page IconTo Next Page
To Next Page IconTo Next Page
To Previous Page IconTo Previous Page
To Previous Page IconTo Previous Page
Loading...
6 31-7000166 Rev. 1
C
L
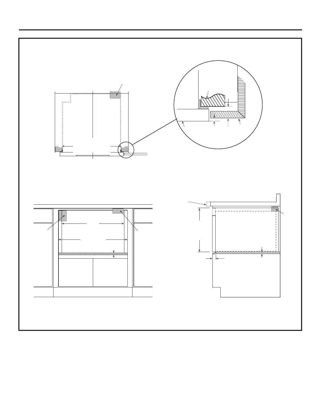
1. Prepare la abertura del gabinete como se muestra en las Figuras 6, 7, 8 y 9.
Montaje al Ras Instrucciones de Instalación
NOTA: La superficie de montaje del ristrel terminado se deberá
volver a apoyar a 1 ½” desde la cara del gabinete (empujando
la cara del cajón 1/8” hacia afuera). Para ¼”, el ristrel se deberá
apoyar 1 3/8”.
Ubicación
preferente
para la salida
eléctrica*
1
/8 
Figura 7
Figura 8 Figura 9
Bloque
Antivolcaduras
Vista Superior
Taco de Montaje
Cara del
Cajón
Cara del
Gabinete
Ancho de la abertura
del taco de montaje
de 22”
Bloque
Antivolcaduras
Sin Horno
Ancho de la abertura del taco de
montaje de 22”
Mín. de 24
3
/16
Máx. de 24
1
/2
Ancho de la abertura al ras
Repisa de
3
/4
Vista Frontal Vista Frontal
Mueva la ubicación del horno hacia
abajo para mostradores largos para
obtener un mejor ángulo de visión.
Bloque
Antivol-
caduras
Repisa de
3
/4
Cara frontal de la
repisa de
1
7
/8
Cara frontal del
gabinete
Altura de la
abertura al
ras de
16
7
/8