EasyManua.ls Logo

CAMERON BALOONS Shadow - Page 104

Default Icon
112 pages
Print Icon
To Next Page IconTo Next Page
To Next Page IconTo Next Page
To Previous Page IconTo Previous Page
To Previous Page IconTo Previous Page
Loading...
 .:8JG:6EEGDEG>6I:HL6<:>CEG:HH6H9:I6>A:9>C'.NHI:BH*E:G6I>C<6C9
(6>CI:C6C8:$CHIGJ8I>DCH>HHJ:96I:9(6G8=
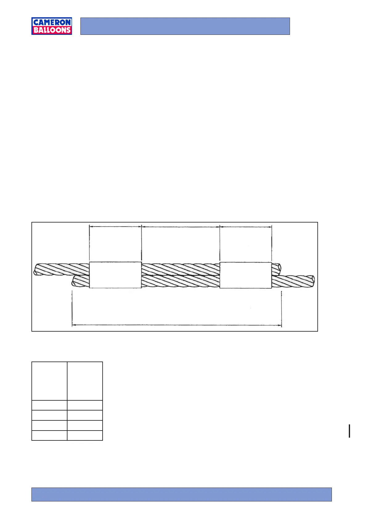
 /=G:69;:GGJA:DCIDI=:C:L.:8I>DCD;GDE:+DH>I>DC6C9A><=IAN=DA9;:GGJA:>C
HL6<:7DG:$CH:GII=:DA9GDE:6C9I=:C:LGDE:>CID;:GGJA:6H>AAJHIG6I:9>C
!><7:ADLL>I=6EGDIGJH>DCD;I=:C:LGDE:;GDBI=:;:GGJA::FJ6AID
7:IL::C=6A;6C9;JAAGDE:9>6B:I:G
+G:HH>C<D;;:GGJA:86CCDL7:8DBEA:I:9-:A:6H:EG:HHJG:>BB:9>6I:ANHL6<:;68:H
B::I-:BDK:I=:;:GGJA:6C98A:6CD;;6CN;A6H=*)*/+- ..!'.#&$)/*
.+'$ 
 +DH>I>DC6C9A><=IAN=DA9;:GGJA:>CHL6<:7DG:$CH:GII=:DA9GDE:>CID;:GGJA:
6H>AAJHIG6I:9>C!><7:ADLL>I=6EGDIGJH>DCD;I=:DA9GDE:;GDBI=:;:GGJA:
:FJ6AID7:IL::C=6A;6C9;JAAGDE:9>6B:I:G
+G:HH>C<D;;:GGJA:86CCDL7:8DBEA:I:9-:A:6H:EG:HHJG:>BB:9>6I:ANHL6<:
;68:HB::I-:BDK:I=:;:GGJA:6C98A:6CD;;6CN;A6H=*)*/+- ..!'.#&
$)/*.+'$ 
/67A:
ISSUE10
MAINTENANCE
M A N U A L
<<1:05D'C-35:3$>;/10A>1
:8:B7:G
+6<:
!><6H@:I2>G:-:E6>G
5
'
'
'($)$(0(
($)$(0(
.& /
)
'**+
)
! --0' 
! --0' 
2>G:
-DE:
>6B:I:G
BB
G:6@>C<
.IG6>C)




B:C9B:CI

Table of Contents