EasyManua.ls Logo

Candy CMDS 5122WN - Page 108

Candy CMDS 5122WN
Print Icon
To Next Page IconTo Next Page
To Next Page IconTo Next Page
To Previous Page IconTo Previous Page
To Previous Page IconTo Previous Page
Loading...
108
Η πιο σωστή τακτική για εξοικονόμηση ενέργειας
απαιτεί την τοποθέτηση συρταριών, δοχείων για τα
τρόφιμα και ραφιών στο προϊόν, παρακαλούμε
ανατρέξτε στις παραπάνω εικόνες.
ΕΝΑΡΞΗ ΧΡΗΣΗΣ
Πριν αρχίσετε τη χρήση του καταψύκτη,
παρακαλούμε ελέγξτε ότι:
1. Το εσωτερικό είναι στεγνό και ο αέρας μπορεί
να κυκλοφορεί ελεύθερα στο πίσω μέρος.
2. Καθαρίστε το εσωτερικό όπως συνιστάται
στην ενότητα «ΠΡΟΣΟΧΗ» (τα ηλεκτρικά μέρη
του ψυγείου μπορούν να σκουπιστούν μόνο
με στεγνό πανί).
3. Μην ενεργοποιήσετε πριν περάσουν 4 ώρες
από τη μετακίνηση του ψυγείου/καταψύκτη.
Το ψυκτικό υγρό χρειάζεται χρόνο για να
επανέλθει στη θέση του. Εάν η συσκευή
απενεργοποιηθεί οποιαδήποτε στιγμή,
περιμένετε 30 λεπτά πριν την ενεργοποιήσετε
ξανά για να επιτρέψετε στο ψυκτικό υγρό να
επανέλθει στη θέση του.
4. Πριν συνδέσετε το ψυγείο στην παροχή
ρεύματος, παρακαλούμε να ελέγξετε το
διακόπτη του θερμοστάτη στο εσωτερικό του
ψυγείου. Ο περιστρεφόμενος διακόπτης του
θερμοστάτη βρίσκεται μέσα στο θάλαμο του
ψυγείου.
5. Περιστρέψτε το διακόπτη του θερμοστάτη στη
θέση «3» και ενεργοποιήστε την παροχή
ρεύματος. Ο συμπιεστής και το φως μέσα στο
ψυγείο θα αρχίσουν να λειτουργούν.
6. Πριν αποθηκεύσετε τρόφιμα στο ψυγείο,
ενεργοποιήστε το ψυγείο και περιμένετε
24 ώρες, για να βεβαιωθείτε ότι λειτουργεί
σωστά και για να επιτρέψετε στο
ψυγείο/καταψύκτη να επιτύχει τη σωστή
θερμοκρασία.
7. Ανοίξτε την πόρτα μετά από 30 λεπτά, εάν η
θερμοκρασία μέσα στο ψυγείο έχει εμφανώς
μειωθεί, δείχνει ότι το σύστημα ψύξης
λειτουργεί σωστά. Όταν το ψυγείο λειτουργεί
για κάποιο χρονικό διάστημα, ο ρυθμιστής
θερμοκρασίας θα ρυθμίσει αυτόματα τη
θερμοκρασία μέσα στα όρια που ανοίγει.
ΛΕΙΤΟΥΡΓΙΑ ΔΙΠΟΡΤΟΥ
Ρύθμιση θερμοκρασίας
Έχετε υπόψη σας αυτά τα σημεία:
Η θερμοκρασία στο θάλαμο του ψυγείου και
του καταψύκτη ελέγχεται από τον ρυθμιστή
θερμοκρασίας που είναι εγκατεστημένος στο
εσωτερικό τοίχωμα του θαλάμου ψύξης. Σας
συνιστούμε να χρησιμοποιήσετε έναν
θερμοστάτη καταψύκτη για να βεβαιωθείτε
ότι η θερμοκρασία είναι κάτω από -18°C πριν
τοποθετήσετε οποιοδήποτε τρόφιμο. Αυτό
μπορεί να χρειαστεί 2-3 ώρες.
Οι ενδείξεις επάνω στο διακόπτη είναι οι
βαθμίδες της θερμοκρασίας, ΟΧΙ οι ακριβείς
βαθμοί θερμοκρασίας. Το “0” είναι το “OFF
και το “7” αντιπροσωπεύει τη χαμηλότερη
θερμοκρασία.
Παρακαλούμε ξεκινήστε με το διακόπτη
τοποθετημένο στη θέση “4”. Χρησιμοποιήστε
ένα κατάλληλο θερμόμετρο για να ελέγξετε τη
θερμοκρασία μετά από 2 ώρες. Η
θερμοκρασία του ψυγείου πρέπει να
ρυθμίζεται μεταξύ +2°C και +5° και του
καταψύκτη θα κυμαίνεται μεταξύ -18 και -
25°C σε ένα τυπικό κύκλο. Για να μειώσετε τη
θερμοκρασία του ψυγείου περιστρέψτε το
διακόπτη προς το “6” και ελέγξτε μετά από
μία ώρα.
ΣΗΜΕΙΩΣΗ: Η κατάψυξη/συντήρηση μπορεί να
μην λειτουργεί στην σωστή θερμοκρασία εάν
είναι σε ένα ιδιαίτερα θερμό ή ψυχρό δωμάτιο ή
εάν ανοίγετε πολύ συχνά την πόρτα της
κατάψυξης/συντήρησης
ΣΕ ΧΡΗΣΗ
Η συσκευή μπορεί να μην λειτουργεί σωστά
(πιθανότητα ξεπαγώματος των περιεχομένων ή η
θερμοκρασία γίνεται πολύ ζεστή μέσα στον θάλαμο
κατεψυγμένων τροφίμων) όταν παραμένει για μία
μεγάλη χρονική περίοδο κάτω από το ψυχρό άκρο
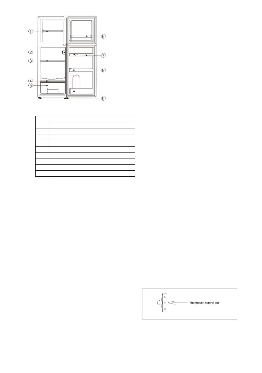
No
Περιγραφή
1
Ράφι καταψύκτη
2
Θερμοστάτης
3
Ράφια ψυγείου
4
Τραγανή κάλυψη φρούτων και λαχανικών
5
Τραγανή φρούτων και λαχανικών
6
Μπαλκόνι πορτών καταψύκτη
7
Δίσκος αυγών
8
Μπαλκόνια πορτών ψυγείου
9
Ισοπέδωση ποδιών

Related product manuals