EasyManua.ls Logo

Candy CMDS 5122WN - Page 159

Candy CMDS 5122WN
Print Icon
To Next Page IconTo Next Page
To Next Page IconTo Next Page
To Previous Page IconTo Previous Page
To Previous Page IconTo Previous Page
Loading...
159
TA I BRUK
Før du begynner å bruke fryseren:
1. Forsikre deg om at innsiden er tørr, og at
luften kan sirkulere fritt på baksiden.
2. Rengjør innsiden slik det anbefales i avsnittet
om vedlikehold (elektriske deler skal kun
tørkes av en med en klut).
3. La kjøleskapet/fryseren stå i 4 timer etter
transport før du slår det/den på. Kjølevæsken
må få tid til å stabilisere seg. Hvis enheten på
noe tidspunkt slås av, venter du i 30 minutter
før du slår den på igjen. Dette gir kjølevæsken
tid til å stabilisere seg.
4. Før du kobler kjøleskapet til strømforsyningen.
Termostatkontrollene befinner seg i
kjøleskapet.
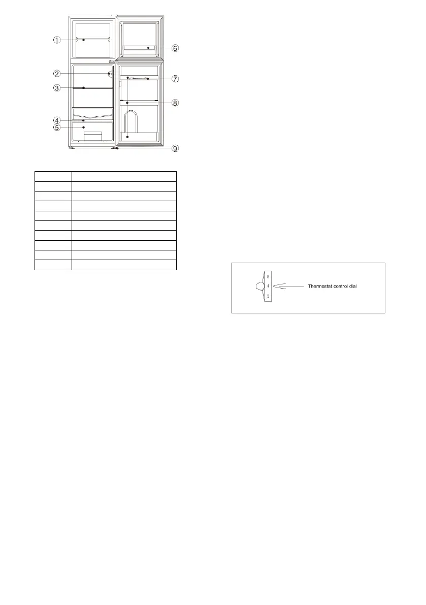
5. Vri termostatknappen til «3», og slå på
strømmen. Kompressoren og lyset i
kjøleskapet slår seg på.
6. Fra du slår på kjøleskapet, lar du det gå 24
timer til du fyller det med mat.
Kjøleskapet/fryseren får dermed kjølt seg ned
til riktig temperatur, og du får forsikret deg om
at alt fungerer slik det skal.
7. Åpne døren etter 30 minutter hvis
temperaturen i kjøleskapet har falt merkbart.
Dette viser at kjølesystemet fungerer riktig.
Etter at kjøleskapet har vært i bruk en stund,
åpnes temperaturkontrollen automatisk.
BRUK AV DE TO DØRENE
Justere temperaturen
Følg denne fremgangsmåten:
Temperaturen i kjøleskapet og fryserdelen
styres av temperaturkontrollen som er
installert på veggen inni kjøleskapet. Før du
begynner å sette inn mat, anbefaler vi på det
sterkeste at du bruker en frysertermostat for å
kontrollere at temperaturen er under -18 °C.
Det kan ta 23 timer å få temperaturen så lav.
Merkene på knappen er
temperaturinnstillinger og IKKE de nøyaktige
temperaturgradene. «0» er «AV» og «7» er
laveste temperaturinnstilling
Start med å stille knappen til «4». Kontroller
temperaturen etter 2 timer ved hjelp av et
egnet termometer. Kjøleskapstemperaturen
bør stilles til mellom +2 °C og +5 °C, og
frysertemperaturen vil variere fra -18 °C til -25
°C i løpet av en vanlig syklus. Hvis du vil stille
ned kjøleskapstemperaturen, vrir du knappen
til «6» og sjekker etter én time.
MERK: Det er ikke sikkert at kjøleskapet/fryseren
klarer å holde riktig temperatur hvis det er
ekstremt varmt/kaldt i rommet, eller hvis
kjøleskaps-/fryserdøren åpnes for ofte.
I BRUK
Hvis enheten har for lav omgivelsestemperatur rundt
seg over lengre tid, kan det gå ut over ytelsen (det er
fare for at innhold tiner eller at temperaturen i
fryseren blir for høy).
Ettersom enheten tilhører klimaklasse ST, skal
romtemperaturen være mellom 16°C og 38°C.
Den interne temperaturen kan påvirkes av
hvor kjøleskapet er plassert,
omgivelsestemperaturen og hvor ofte døren
åpnes. Temperaturkontrollen vil derfor kanskje
måtte justeres for å ta høyde for disse
faktorene.
Kullsyreholdige drikker skal ikke oppbevares i
fryser eller skap/rom med lav temperatur, og
enkelte produkter skal ikke konsumeres i for
kald stand.
Matvarer skal ikke lagres lengre enn det
matvareprodusenten anbefaler.
Med manuell avriming, vedlikehold eller
rengjøring av enhet kan frosne matvarer få en
temperaturøkning som forkorter
holdbarhetstiden.
Det anbefales å pakke frossen mat i flere lag på
glasshyllene.
Hvis enheten får et lengre driftsstans (pga.
strømbrudd eller feil på kjølesystemet), må du
No
Beskrivelse
1
Fryserhylle
2
Termostat
3
Kjøleskapshyller
4
Frukt- og grønnsakskrydder
5
Frukt- og grønnsaksspray
6
Frysedør balkong
7
Eggbrett
8
Kjøleskap dør balkonger
9
Utjevnende føtter

Related product manuals