EasyManua.ls Logo

Candy CMDS 5122WN - Page 210

Candy CMDS 5122WN
Print Icon
To Next Page IconTo Next Page
To Next Page IconTo Next Page
To Previous Page IconTo Previous Page
To Previous Page IconTo Previous Page
Loading...
210
Najbardziej energooszczędna konfiguracja wymaga
umieszczenia szuflad, pudełek na żywność i półek w
produkcie, patrz powyższe rysunki.
ROZPOCZĘCIE UŻYTKOWANIA
Przed rozpoczęciem użytkowania zamrażarki należy:
1. Sprawdzić, czy wnętrze jest suche, a z tyłu
urządzenia możliwy jest swobodny obieg
powietrza.
2. Należy czyścić wnętrze urządzenia zgodnie ze
wskazówkami podanymi w części
„PIELĘGNACJA” (elektryczne części lodówki
można wycierać wyłącznie za pomocą suchej
ściereczki).
3. Nie należy włączać lodówki/zamrażarki do 4
godzin po przeniesieniu. Osiadanie płynu
chłodzącego wymaga czasu. Po wyłączeniu
urządzenia w dowolnym momencie należy
odczekać 30 minut przed ponownym
włączeniem, aby płyn chłodzący mógł osiąść.
4. Przed podłączeniem lodówki do zasilania
należy sprawdzić pokrętło regulacji termostatu
znajdujące się wewnątrz lodówki.
5. Przekręcić pokrętło termostatu do pozycji „3” i
włączyć zasilanie. Sprężarka i światło wewnątrz
lodówki zaczną działać.
6. Przed rozpoczęciem przechowywania żywności
włączyć lodówkę i odczekać 24 godziny, aby
upewnić się, że działa ona prawidłowo i aby
umożliwić lodówce/zamrażarce osiągnięcie
wymaganej temperatury.
7. Otworzyć drzwi 30 minut później jeżeli
temperatura w lodówce wyraźnie spadnie,
będzie to oznaczało, że układ lodówki działa
poprawnie. Po pewnym okresie pracy lodówki
regulator temperatury automatycznie ustawi
temperaturę w odpowiednim zakresie.
DZIAŁANIE MODELU Z DWOJGIEM
DRZWICZEK
Regulacja temperatury
Należy przestrzegać następujących zaleceń:
Temperatura w komorze lodówki i
zamrażarki jest ustawiana przez regulator
temperatury mieszczący się na
wewnętrznej ścianie komory lodówki. Przed
rozpoczęciem przechowywania żywności
zalecamy użycie termostatu zamrażarki w
celu zapewnienia, że temperatura wynosi
poniżej −18°C. Może to zająć 23 godziny.
Oznaczenia na pokrętle są przedziałami
temperatury, a nie dokładnymi stopniami
miary temperatury. „0” oznacza stan
wyłączenia, a „7” oznacza najniższą
temperaturę.
Należy rozpocząć od ustawienia pokrętła w
pozycji „4”. Użyć odpowiedniego
termometru, aby sprawdzić temperaturę po
upływie 2 godzin. Temperaturę lodówki
należy ustawić w przedziale od +2°C do
+5°C, a temperatura zamrażarki będzie się
zmieniać w zakresie od −18°C do −25°C w
ramach typowego cyklu. Aby zmniejszyć
temperaturę lodówki, należy obrócić
pokrętło do pozycji „6” i sprawdzić
temperaturę po godzinie.
UWAGA: Chłodziarko-zamrażarka może nie
działać, zapewniając prawidłową temperaturę,
jeśli znajduje się w szczególnie ciepłym lub
chłodnym pomieszczeniu bądź jeśli jej drzwiczki
będą zbyt często otwierane.
PODCZAS UŻYCIA
Urządzenie może nie działać w prawidłowy sposób
(możliwość rozmrażania zawartości lub generowanie
zbyt wysokiej temperatury w komorze zamrażarki),
jeśli zostanie umieszczone na dłuższy czas w miejscu,
w którym panuje temperatura wykraczająca poza
zakres niskich temperatur, dla którego to urządzenie
chłodzące zostało zaprojektowane.
Klasa klimatyczna urządzenia to ST, a
temperatura pomieszczenia powinna wynos
od 16 do 38.
Na temperatury wewnętrzne mogą mieć
wpływ takie czynniki, jak umiejscowienie
urządzenia chłodzącego, temperatura
otoczenia oraz częstotliwość otwierania
No
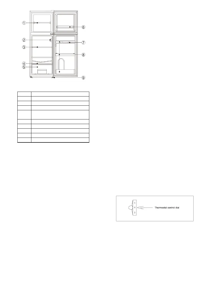
Opis
1
Półka zamrażarki
2
Termostat
3
Półki lodówki
4
Osłona pojemnika na owoce i
warzywa
5
Pojemnik na owoce i warzywa
6
Balkon z drzwiami zamrażarki
7
Taca na jajka
8
Balkony drzwi lodówki
9
Nóżki poziomujące

Related product manuals