EasyManua.ls Logo

Carrier 30RBP 400 - 30 Rbm;Rbp 430-520

Carrier 30RBP 400
70 pages
To Next Page IconTo Next Page
To Next Page IconTo Next Page
To Previous Page IconTo Previous Page
To Previous Page IconTo Previous Page
Loading...
13


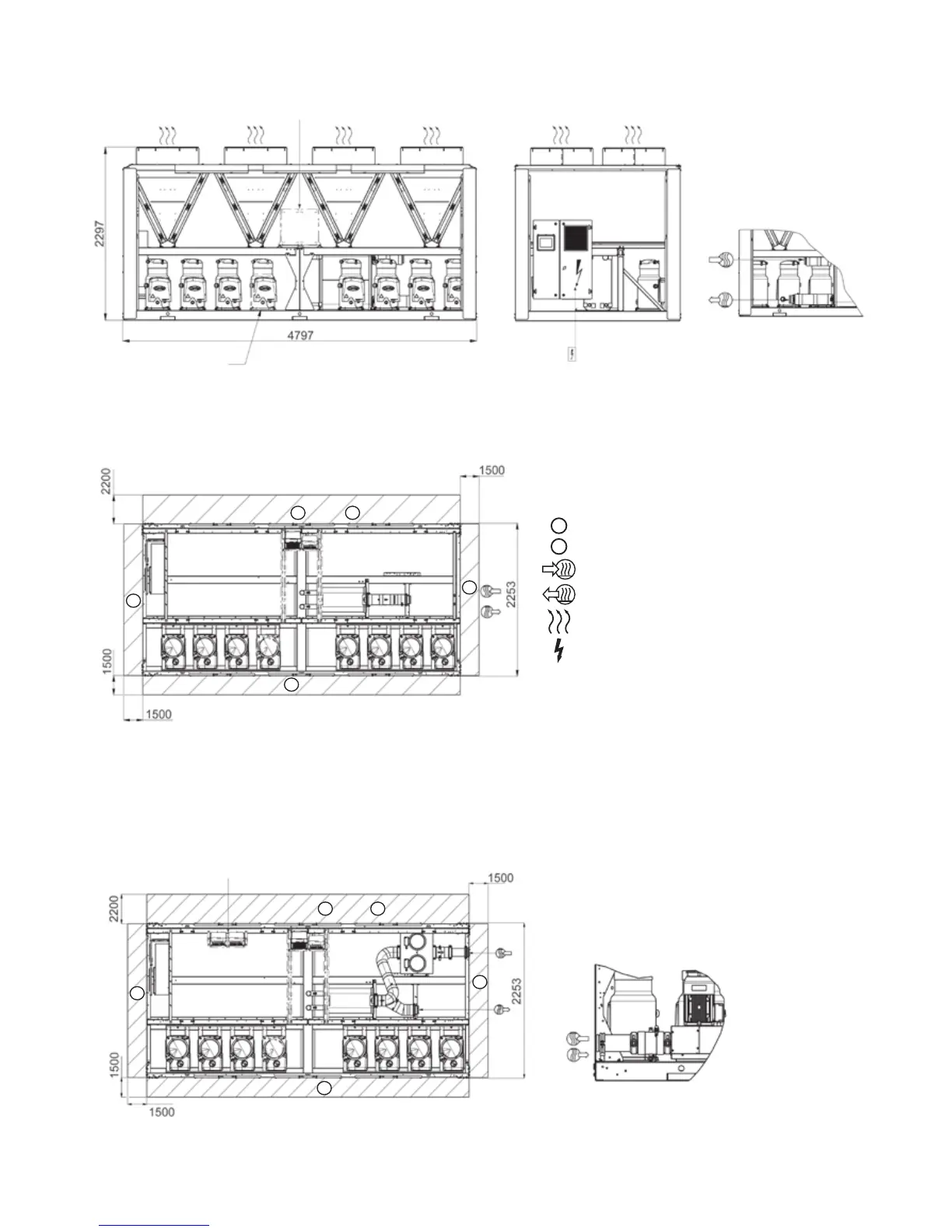
30RBP only
Power connection
Size 520
Option 116V/116W
1 2
1 2
1
1
1
1
1
1


All dimensions are in mm.
1
Clearances required for maintenance and air ow
2
Clearance recommended for coil removal
Water inlet
Water outlet
Air outlet, do not obstruct
Control box
NOTE: Non-contractual drawings.
When designing a system, refer to the certied dimensional drawings
provided with the unit or available on request.
For the location of xing points, weight distribution and coordinates of
the centre of gravity, refer to the certied dimensional drawings.

Table of Contents

Related product manuals