EasyManua.ls Logo

Carrier 38CJR018-723 - Outdoor Unit Construction View

Carrier 38CJR018-723
82 pages
To Next Page IconTo Next Page
To Next Page IconTo Next Page
To Previous Page IconTo Previous Page
To Previous Page IconTo Previous Page
Loading...
9
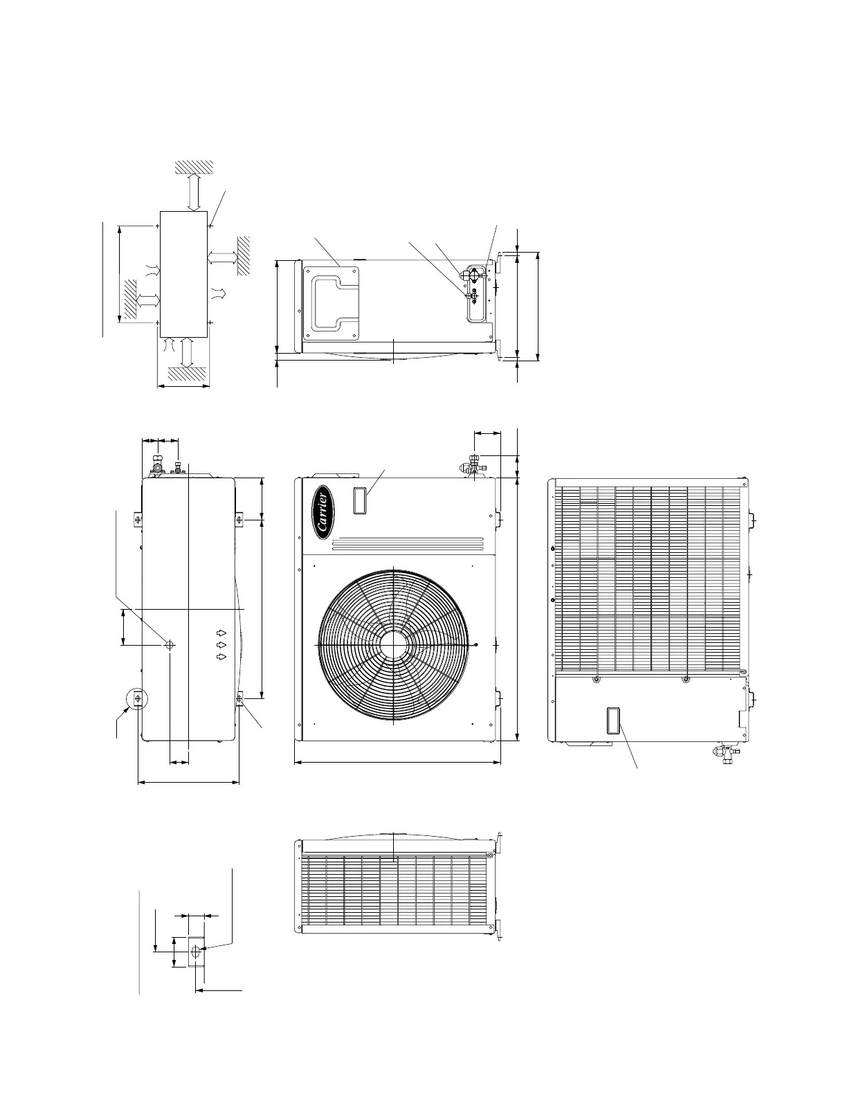
2-3.Outdoor Unit (38CJR024-723, 38TAR024X-723, 38TAR018-723,38HNR024-713)
120
63.8
340
600
27
50
690
880
74
140
88
310
340
340 (pitch)
12
12
364
A
12x18 hole
A Detail Drawing
25 Drain outlet
52
Handle
Installation dimension
600
100 or
more
100 or
more
600 or
more
600 or
more
Air outlet
Air inlet
Electric
Parts cover
Liquid side
(Flare 6.35)
Gas side
(Flare 15.88)
Service Port
600
340
23
68
Handle
4-12x18
for 8 10
anchor bolt
4-12x18 holes
(for 8 10 anchor bolt)
FILE NO. SVM-05010

Table of Contents

Related product manuals