EasyManua.ls Logo

Carrier 38CJR018-723 - Outdoor Unit Construction View

Carrier 38CJR018-723
82 pages
To Next Page IconTo Next Page
To Next Page IconTo Next Page
To Previous Page IconTo Previous Page
To Previous Page IconTo Previous Page
Loading...
10
FILE NO. SVM-05010
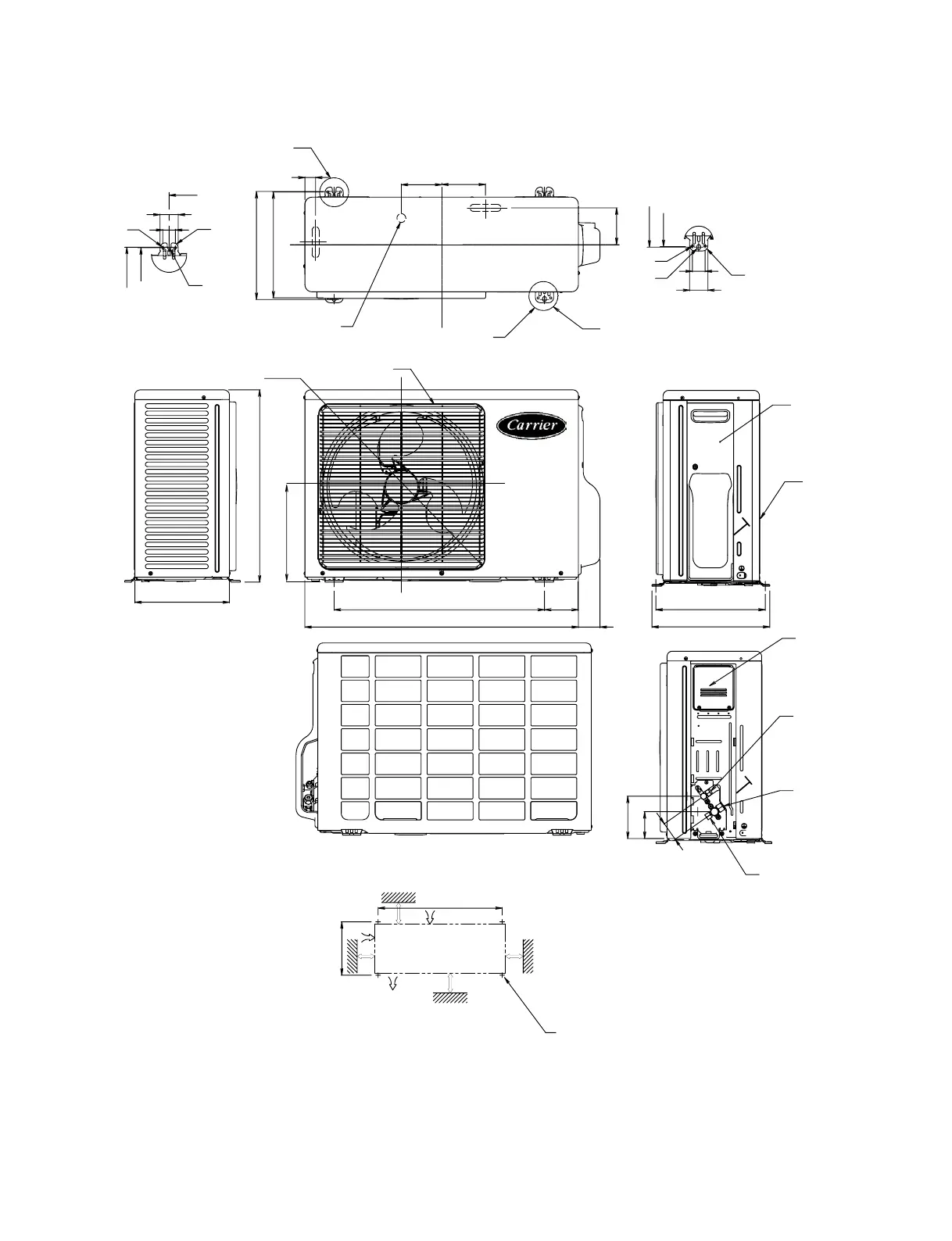
2-4. Outdoor Unit (38CJR018-723)
310
310
302
102
310
302
302
530
265
600
A Detail Drawing (Back Leg)
A
B Detail Drawing (Front Leg)
52
R15
32.5
115 125
R5.5
30 Drain outlet
FAN GUARD
36
6 Hole
2-11x14 Hole
(For 8-10 anchor bolt)
436
4x11 Long holes (For 8-10 anchor bolt)
11x14 Hole
6 Hole
36
52
310
330
R15
270
600 90
780 62
COVER PV
Electrical
part cover
Liquid side
(Flare 6.35)
Gas side
(Flare 12.7)
13 Series
Service port
600 or more
100 or more
600 or more
100 or more
325
600
Air inlet
Air outlet
Installation dimension
120
75
5
4
B
Z
Z View

Table of Contents

Related product manuals