EasyManua.ls Logo

Carrier 38CJR018-723 - Outdoor Unit Electrical Parts

Carrier 38CJR018-723
82 pages
To Next Page IconTo Next Page
To Next Page IconTo Next Page
To Previous Page IconTo Previous Page
To Previous Page IconTo Previous Page
Loading...
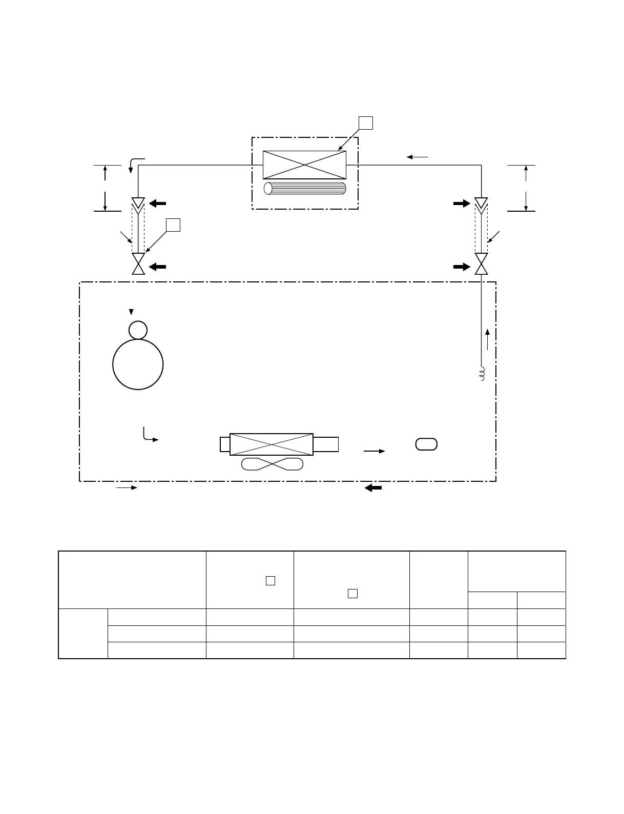
21
Evaporator
Indoor unit
Cross flow fan
Cooling
Condenser
Propeller fan
Outdoor unit
Cooling
O.D.:15.88 mm O.D.:6.35 mm
Cooling
Gas container connection (Reinstall etc.)
Packed valve
(
6.35)
Packed valve
(
15.88)
0.39 m
(Connecting pipe)
15.88
0.49 m
(Connecting pipe)
6.35
T
P
Refrigerant
R22 1.70 kg
Mark ( ) means check points of Gas Leak
Capillary tube
2.4 x 1500 s
Note : Measure the heat exchanger temperature at the center of U-bend. (By means of TC sensor.)
Ambient temp.
conditions DB/WB
(°C)
Indoor Outdoor
Standard 0.4 11.0 High 27/19 35/24
Cooling High temperature 0.5 12.0 High 32/23 43/26*
Low temperature 0.3 1.0 Low 21/15 21/15
Fan speed
(indoor)
50 Hz
Standard
pressure
P
(MPaG)
5. REFRIGERATION CYCLE DIAGRAM
5-1. 42CJR024-723 / 38CJR024-723, 42TAR024X-723 / 38TAR024X-723
Surface temp. of heat
exchanger interchanging
pipe
T
(°C)
FILE NO. SVM-05010
Dryer
Compressor
PH400X3CS-4KT1

Table of Contents

Related product manuals