EasyManua.ls Logo

Carrier 38CJR018-723 - Construction Views; Indoor Unit Construction View

Carrier 38CJR018-723
82 pages
To Next Page IconTo Next Page
To Next Page IconTo Next Page
To Previous Page IconTo Previous Page
To Previous Page IconTo Previous Page
Loading...
7
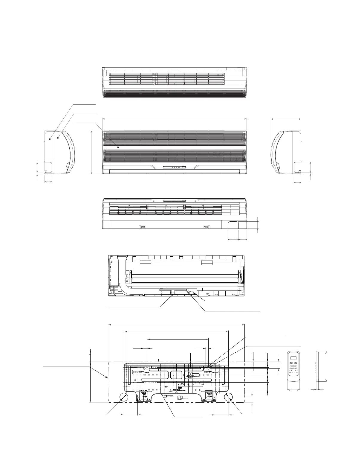
2. CONSTRUCTION VIEWS
2-1. Indoor Unit (42CJR024-723, 42TAR024X-723, 42TAR018-723)
55 or more
100
40
48
450
20
20
48
100
75 65
50
998
51
208
850
298
775
50
998
298
10
763.5
5555
55
41
29
Knock out system Knock out system
Connecting pipe (0.39 m)
(Flare 15.88)
Drain hose (0.54 m)
Connecting pipe (0.49 m)
(Flare 6.35)
(For stud bolt 6)
(For stud bolt 8 10)
65
Installation
Plate outline
Minimum distance
to ceiling
Outline of indoor unit
65
Wireless remote control
54
16
135
Back body
Front panel
Grille inlet
FILE NO. SVM-05010

Table of Contents

Related product manuals